Conseil en immobilier d'entreprise, Cushman & Wakefield est un acteur incontournable au rayonnement international. Cushman & Wakefield offre des solutions dans toutes les étapes que comporte un p ...
En savoir plus



186 m²
Bureau à vendre - 186 m²
Villeurbanne (69100)
Dernière mise à jour : Il y a 3 jours
ATELIER LOFT BUREAUX A VENDRE VILLEURBANNE
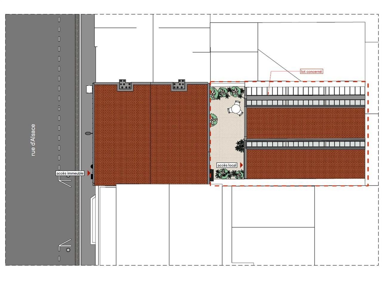
Cushman & Wakefield LYON propose à Villeurbanne, aux portes du 6? arrondissement de Lyon, ce lieu unique type LOFT de 186 m², ancien atelier de peintre, vendu brut avec mezzanine existante.
Niché sur cour au sein d'un immeuble mixte, ce bien séduit par son authenticité et son caractère industriel, avec sa toiture verrière de type shed qui inonde les espaces de lumière naturelle et crée une atmosphère inspirante.
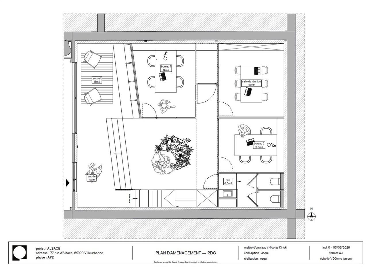
La configuration actuelle, avec mezzanine et hauteur sous plafond généreuse, offre de nombreuses possibilités d'aménagement, que ce soit pour des bureaux originaux, un showroom, un atelier créatif ou tout autre projet professionnel sur-mesure.
Un devis travaux est disponible et correspond parfaitement aux perspectives d'aménagement, facilitant la projection dans la transformation de ces locaux selon vos besoins. Le bien conserve toute sa patine d'atelier, avec des volumes ouverts et des lignes architecturales qui racontent son histoire, tout en permettant d'imaginer un espace moderne et fonctionnel. Son emplacement stratégique, à deux pas de Lyon 6?, assure un accès facile aux transports, commerces et services, tout en bénéficiant du calme d'une cour intérieure.
Cette opportunité rare combine caractère, lumière et potentiel d'investissement. Que vous soyez entrepreneur, créatif ou investisseur, ces bureaux offrent un cadre atypique où l'histoire industrielle se marie parfaitement avec les exigences contemporaines. Transformez cet ancien atelier en un espace à votre image, lumineux, spacieux et vivant, au coeur d'un secteur dynamique et recherché
Régime Fiscal : Droits d'enregistrement
Honoraires : 3 % HT du prix de vente HD à la charge de l'acquéreur
Prestations :
Accessibilité:
SNCF Lyon Part-Dieu (SNCF) à proximité (Métro ligne B et Tram T1-T3-T4)
Bus Ligne C3 à proximité immédiate
Les informations sur les risques auxquels ce bien est exposé sont disponibles sur le site Géorisques : www.georisques.gouv.fr
Cushman & Wakefield LYON propose à Villeurbanne, aux portes du 6? arrondissement de Lyon, ce lieu unique type LOFT de 186 m², ancien atelier de peintre, vendu brut avec mezzanine existante.
Niché sur cour au sein d'un immeuble mixte, ce bien séduit par son authenticité et son caractère industriel, avec sa toiture verrière de type shed qui inonde les espaces de lumière naturelle et crée une atmosphère inspirante.
La configuration actuelle, avec mezzanine et hauteur sous plafond généreuse, offre de nombreuses possibilités d'aménagement, que ce soit pour des bureaux originaux, un showroom, un atelier créatif ou tout autre projet professionnel sur-mesure.
Un devis travaux est disponible et correspond parfaitement aux perspectives d'aménagement, facilitant la projection dans la transformation de ces locaux selon vos besoins. Le bien conserve toute sa patine d'atelier, avec des volumes ouverts et des lignes architecturales qui racontent son histoire, tout en permettant d'imaginer un espace moderne et fonctionnel. Son emplacement stratégique, à deux pas de Lyon 6?, assure un accès facile aux transports, commerces et services, tout en bénéficiant du calme d'une cour intérieure.
Cette opportunité rare combine caractère, lumière et potentiel d'investissement. Que vous soyez entrepreneur, créatif ou investisseur, ces bureaux offrent un cadre atypique où l'histoire industrielle se marie parfaitement avec les exigences contemporaines. Transformez cet ancien atelier en un espace à votre image, lumineux, spacieux et vivant, au coeur d'un secteur dynamique et recherché
| Étage | Type | Surfaces | Dispo | Prix(m²) | Charges | Honoraires | Fiscal |
|---|---|---|---|---|---|---|---|
| RdC | Bureaux | 186,5 | n.c. | n.c. | 3 % HT du prix de vente HD à la charge de l'acquéreur | Droits d'enregistrement |
Régime Fiscal : Droits d'enregistrement
Honoraires : 3 % HT du prix de vente HD à la charge de l'acquéreur
Prestations :
- Projet de réhabilitation d'un ancien atelier industriel en bureaux
- Local / atelier de 186m² ( sol + mezzanine )
- Brut de béton avec arrivée d'eau et compteur électrique
- Etanchéité et remplacement des verrières effectué
- Travaux de rénovation et assainissement de la cour (votés en AG)
- Surface RDC : 186,5 m²
Accessibilité:
SNCF Lyon Part-Dieu (SNCF) à proximité (Métro ligne B et Tram T1-T3-T4)
Bus Ligne C3 à proximité immédiate
Les informations sur les risques auxquels ce bien est exposé sont disponibles sur le site Géorisques : www.georisques.gouv.fr
Voir plus
Afficher les consommations énergétiques
Localisation et transport aux alentours
Favoris
Exporter
Appeler
Contacter
Signaler cette annonce










