Présente à Dijon depuis plus de 30 ans, l''équipe de BNP Paribas Real Estate a une solide connaissance du marché local et de son évolution. Elle se spécialise dans l''accompagnement des entreprises ...
En savoir plus

Activité/Entrepôt à vendre - 938 m²
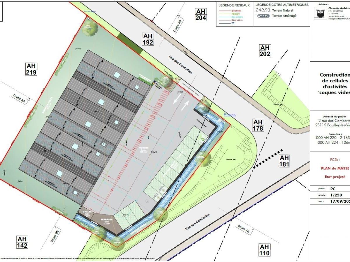
A VENDRE Cellules à partir de 168 m² POUILLEY-LES-VIGNES
Btiment d'activité neuf - 5 Cellules - Livraison 2ème semestre 2027.
Ce programme propose 5 cellules pour les artisans et les petites et moyennes entreprises cherchant un emplacement dans le Grand Besancon.
Situé sur un terrain clos avec espaces verts, ce btiment neuf propose des cellules livrées brut de béton (dalle quartzée), fluides en attente et compteurs individuels.
Une hauteur libre de 7 mètres, un accès de plain-pied par porte motorisée.
13 places de parkings dont 1 place de parking pour les personnes à mobilité réduite, pré équipement pour véhicules électriques ainsi que stationnements vélos.
Le site met l'accent sur la végétalisation, la récupération des eaux de pluie, des espaces extérieurs aménagés.
Installation de panneaux photovoltaques en toiture.
Un emplacement stratégique et accessible
L'implantation à Pouilley-les-Vignes permet de travailler au calme tout en restant proche des grands axes :
Besancon à 23 minutes
Accès autoroutier : l'échangeur de l'A36 (Besancon ouest) se trouve à 8 minutes, ce qui facilite les liaisons vers Dole, Dijon ou Montbéliard.
Les services de proximité immédiate
Pouilley-les-Vignes offre tous les services nécessaires à moins de 2 minutes à pied, tels que restauration, commerces, agences bancaires, etc...
Disponibilité: 01/10/2027Honoraires: 3% HT du prix HT/HD. à la signature de l'acte
| Fiche technique du bien | |
|---|---|
| Charpente | Bois |
| Murs | Bardage double peau |
| Sols du bâtiment | dalle béton avec surcharge au sol 2T/m² |
| Hauteur sous poutre | 7,00 mètre(s) |
| Porte(s) d'accès plain-pied | porte sectionnelle 3,50 x 3,50 m |
| Eclairage intérieur | LED |
| Puissance électrique | Tarif Bleu 36KVa pour chaque cellule |
Surfaces divisibles : 10
| Surface | PrixHD/HH/m² | Étage / Batiment | Infos complémentaires |
| 136 m² | N.C | RDC | Cellule 01 |
| 140 m² | N.C | RDC | Cellule 02 |
| 141 m² | N.C | RDC | Cellule 03 |
| 124 m² | N.C | RDC | Cellule 04 |
| 152 m² | N.C | RDC | Cellule 05 |
| 54 m² | N.C | R+1 | Cellule 05 |
| 44 m² | N.C | R+1 | Cellule 04 |
| 50 m² | N.C | R+1 | Cellule 03 |
| 49 m² | N.C | R+1 | Cellule 02 |
| 49 m² | N.C | R+1 | Cellule 01 |
