Le cabinet Oxxi - Arthur Loyd 77-91 est Concessionnaire du réseau Arthur Loyd, 1er réseau français de Conseil en Immobilier d’Entreprises. Véritable spécialiste de l’immobilier professionnel, l’age ...
En savoir plus

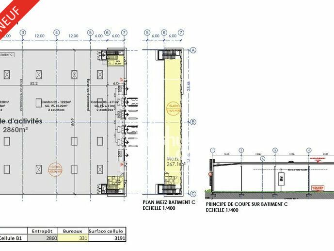
3 191 m²
Activité/Entrepôt à vendre - 3191 m²
Mormant (77720)
Dernière mise à jour : Hier
Grande cellule neuve à saisir
Les informations sur les risques auxquels ce bien est exposé sont disponibles sur le site Géorisques : www.georisques.gouv.fr
Toiture équipée de panneaux photovoltaques
D619
Gare de Mormant, Ligne P
Disponibilité : nous consulter
Prix de vente : 4467400 HD HH
Arthur Loyd 77-91 vous propose de devenir acquéreur de ce grand actif neuf d'environ 3 191 m², dédiée à l'activité industrielle et aux bureaux, idéalement concue pour les PME/PMI.
Ce programme est pensé pour répondre aux besoins spécifiques des entreprises en pleine croissance.
Pour plus d'informations ou pour planifier une visite, contactez Louis au 01.88.608.608
Honoraires de commercialisation à la charge de l'Acquéreur : nous consulter.
Les informations sur les risques auxquels ce bien est exposé sont disponibles sur le site Géorisques : www.georisques.gouv.fr
Toiture équipée de panneaux photovoltaques
D619
Gare de Mormant, Ligne P
Disponibilité : nous consulter
Prix de vente : 4467400 HD HH
| batiment - lot | entrepôt | bureaux | surface totale |
| cellule c1 | 2 860 m² | 331 m² | 3 191 m² |
Voir plus
Afficher les consommations énergétiques
Favoris
Exporter
Appeler
Contacter
Signaler cette annonce






