Prolocaux est un acteur de l'immobilier d'entreprise spécialisé dans la location, la vente et l'acquisition de biens professionnels en région.Présents depuis 2015 en Normandie, dans les Hauts-de-Fr ...
En savoir plus

155 m² divisible dès 66 m²
Local commercial à vendre - 155 m²
Dozulé (14430)
Dernière mise à jour : Il y a 8 jours
À VENDRE – Local commercial en VEFA – Dozulé
Les informations sur les risques auxquels ce bien est exposé sont disponibles sur le site Géorisques : www.georisques.gouv.fr
Agent commercial PROLOCAUX - inscrit au RSAC de Rouen sour le numéro 994 377 547
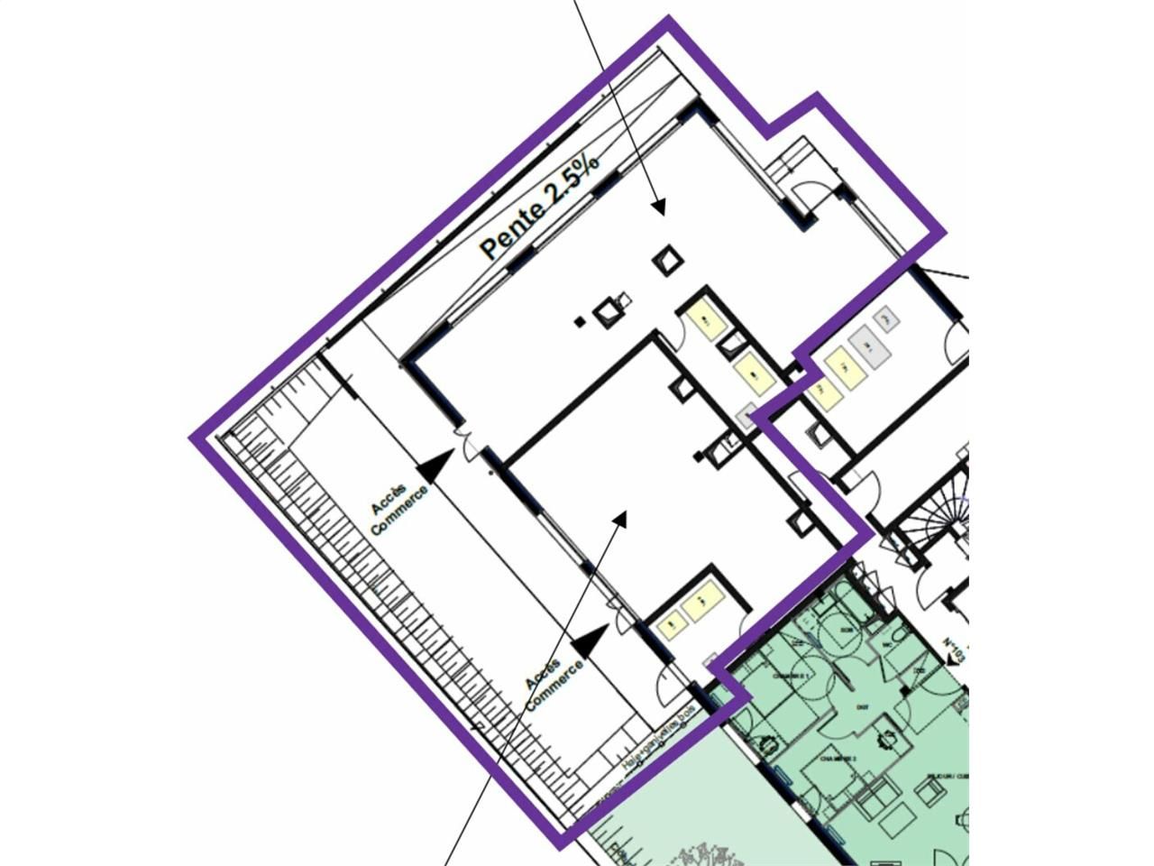
A vendre en VEFA, local commercial d'environ 155 m² divisible à partir de 66 m².
• Locaux livrés bruts
• Fluides en attente
• Vitrines en attente
• Accès indépendants
• Locaux ordures ménagères dédiés
• Espaces extérieurs privatifs
• 4 stationnements extérieurs (possibilité de plus)
• Construction neuve
• Livraison prévisionnelle : 2ème trimestre 2027
Disponibilité : 2ème trimestre 2027
Prix de vente : 299000 € NET VENDEUR
Honoraires à la charge de l'acquéreur : 8 % HT
Au sein d'un programme neuf en cours de construction, deux cellules commerciales vendues en VEFA, situées dans un environnement en développement à proximité immédiate des axes principaux.
Surface totale possible d'environ 155 m², divisible à partir de 66 m².
Deux surfaces disponibles : 89 m² et 66 m².
Il est encore possible de fusionner les deux locaux pour former un seul espace en modifiant l'implantation du local vélos.
Chaque cellule bénéficie d'un espace extérieur privatif, offrant un véritable prolongement d'exploitation.
Ces locaux vous sont proposés à la vente par Prolocaux
Les informations sur les risques auxquels ce bien est exposé sont disponibles sur le site Géorisques : www.georisques.gouv.fr
Agent commercial PROLOCAUX - inscrit au RSAC de Rouen sour le numéro 994 377 547
A vendre en VEFA, local commercial d'environ 155 m² divisible à partir de 66 m².
• Locaux livrés bruts
• Fluides en attente
• Vitrines en attente
• Accès indépendants
• Locaux ordures ménagères dédiés
• Espaces extérieurs privatifs
• 4 stationnements extérieurs (possibilité de plus)
• Construction neuve
• Livraison prévisionnelle : 2ème trimestre 2027
Disponibilité : 2ème trimestre 2027
Prix de vente : 299000 € NET VENDEUR
Honoraires à la charge de l'acquéreur : 8 % HT
Voir plus
Afficher les consommations énergétiques
Favoris
Exporter
Appeler
Contacter
Signaler cette annonce

