BNP Paribas Real Estate Lille, qui revendique plus de 40 ans de présence sur le marché lillois, est composé d''une équipe expérimentée aux expertises diversifiées. Elle est principalement composée ...
En savoir plus

Activité/Entrepôt à vendre - 4497 m²
A VENDRE Entrepôts divisibles sur site réhabilité Wasquehal
Situé à Wasquehal, au sein d'un site entièrement réhabilité, cet ensemble immobilier propose plusieurs entrepôts modulables et divisibles destinés à accueillir des activités artisanales ou commerciales légères.
Profitez d'un cadre moderne, fonctionnel et accessible, à proximité immédiate des grands axes routiers (A22, A1, boulevard du Breucq) et des transports en commun.
Surface totale : 4 497 m², divisibles selon vos besoins (lots à partir de 102 m²).
Btiments rénovés avec isolation performante et bardage neuf.
Hauteur libre : environ 6 à 8 mètres selon les lots.
Portes sectionnelles et accès poids lourds.
Parkings privatifs et espaces de manoeuvre.
Disponibilité début 2026.
Site industriel revalorisé et modernisé, au sein d'un environnement économique dynamique.
Excellente visibilité et accessibilité depuis les grands axes lillois.
Proximité de la zone d'activités du Grand Cottignies et du centre de Wasquehal.
Cadre urbain soigné, idéal pour des entreprises recherchant une image qualitative.
Honoraires: 5% HT du prix HT/HD. à la signature de l'acte
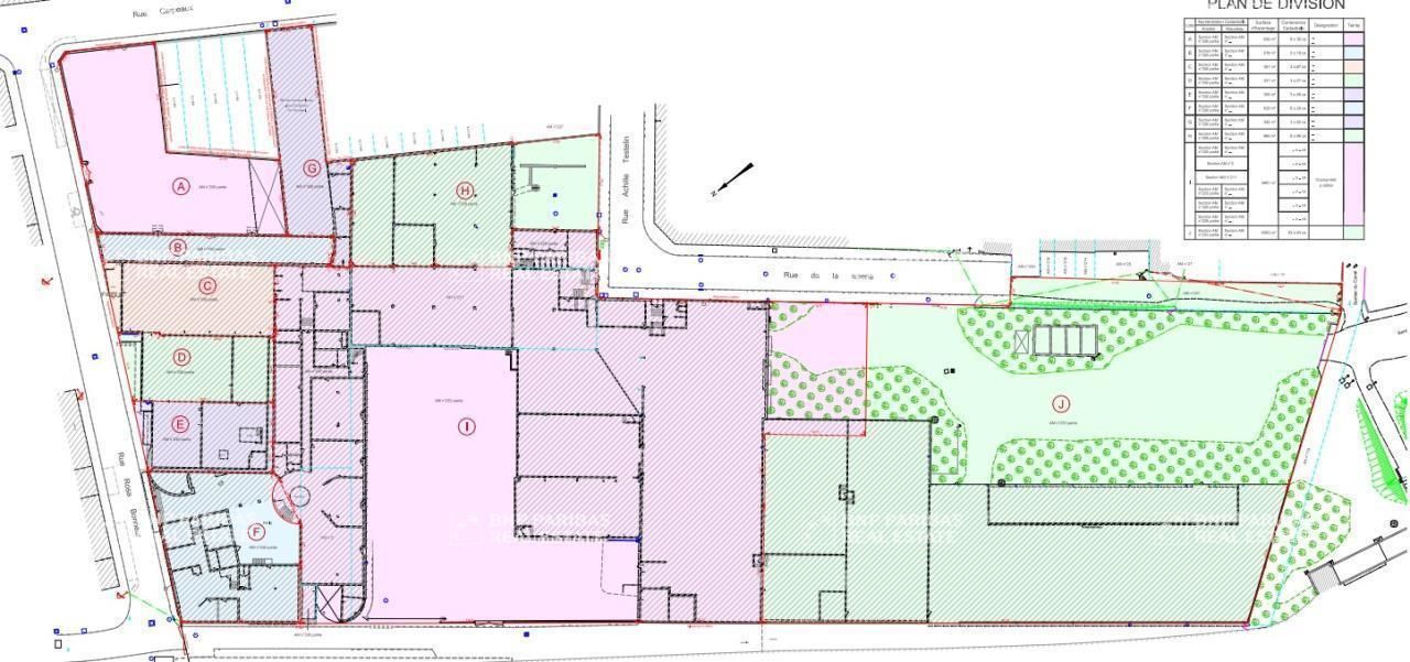
Surfaces divisibles : 11
| Surface | PrixHD/HH/m² | Étage / Batiment | Infos complémentaires |
| 387 m² | N.C | RDC | LOT C |
| 327 m² | N.C | RDC | LOT D |
| 306 m² | N.C | RDC | LOT E |
| 738 m² | N.C | RDC | LOT 1 |
| 208 m² | N.C | RDC | LOT 2 |
| 102 m² | N.C | RDC | LOT 3 |
| 383 m² | N.C | RDC | LOT 4 |
| 336 m² | N.C | RDC | LOT 5 |
| 474 m² | N.C | RDC | LOT 6 |
| 440 m² | N.C | RDC | LOT 7 |
| 796 m² | N.C | RDC | LOT 8 |


