Située dans le 3ème arrondissement de Lyon au 15 rue des Cuirassiers, notre agence compte environ 35 collaborateurs expérimentés pour vous accompagner tout au long de la mise en œuvre de votre proj ...
En savoir plus

4 266 m²
Activité/Entrepôt à vendre - 4266 m²
Civrieux-d'Azergues (69380)
Dernière mise à jour : Il y a 2 jours
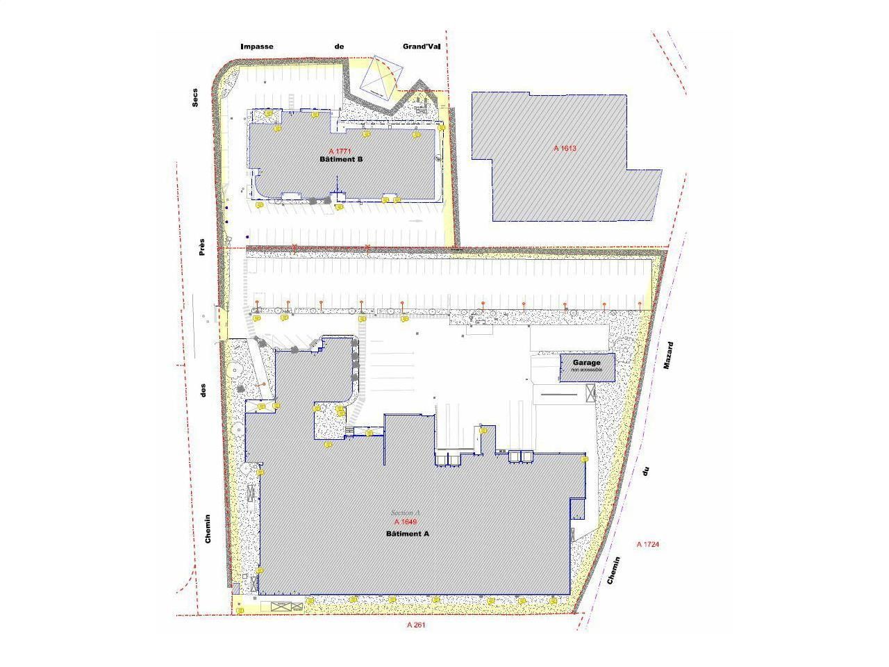
CIVRIEUX-D'AZERGUES (69) Nous vous proposons à la vente un ensemble immobilier se composant d'un batiment sur 2 niveaux, à usage d'entrepôt, réfrigéré pour une capacité de stockage de 4 266 m² accompagné de quais de chargement et de bureaux ainsi qu'un batiment à usage de garage. Et d'un second batiment sur 3 niveaux, à usage de bureaux. L'ensemble des surfaces de bureaux étant de 4 272 m². Terrain de 16 963 m²
Situé aux portes des grandes agglomérations, l'entrepôt est idéalement situé : à seulement 18km des portes de Lyon et 16km de celles de Villefranche-Sur-Saône.
Disponibilité: ImmédiateHonoraires: 2.5% HT du prix HT/HD. à la signature de l'acte
| Fiche technique du bien | |
|---|---|
| TER | Gare Civrieux d'Azergues : 1.6 km |
| Desserte routière | A89 : 5 km / A6 : 7 km (Raccordement rapide avec échangeur N°33) |
| Desserte routière | D385 : 450 mètres |
| Aéroport | Luxembourg : 34 km |
| Gare | Part Dieu 21 km |
| Etat de l'immeuble | Seconde main |
| Etat des locaux | Très bon état |
| Parking(s) | Emplacement de stationnement |
| Hall d'accueil | Oui |
| Bureau(x) cloisonné(s) | Oui |
| Faux plafond | Oui |
| Sanitaire(s) | Oui |
| Autre élément bureau | Convecteur electrique |
| Sols du bâtiment | Béton |
| Hauteur libre | 8,00 mètre(s) |
| Porte(s) d'accès plain-pied | 1 |
| Porte(s) d'accès à quai | 4 |
| Aire de manoeuvre | de 27 à 34 mètres |
| Eclairage intérieur | Néon |
| Equipements | Froid Positif |
| Racks | Entrepôt racké (sol +3) |
| Locaux sociaux | Vestiaires cafétéria, sanitaire, douche |
Voir plus
Afficher les consommations énergétiques
Favoris
Exporter
Appeler
Contacter
Signaler cette annonce










