Conseil en immobilier d'entreprise, Cushman & Wakefield est un acteur incontournable au rayonnement international. Cushman & Wakefield offre des solutions dans toutes les étapes que comporte un p ...
En savoir plus



5 748 m²
Activité/Entrepôt à vendre - 5748 m²
Civrieux-d'Azergues (69380)
Dernière mise à jour : Il y a 3 jours
Plateforme logistique à Civrieux-d''Azergues -
8 538 m² disponibles immédiatement
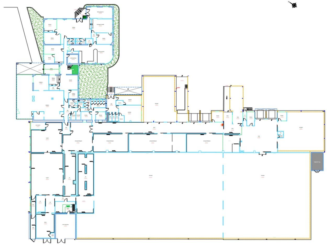
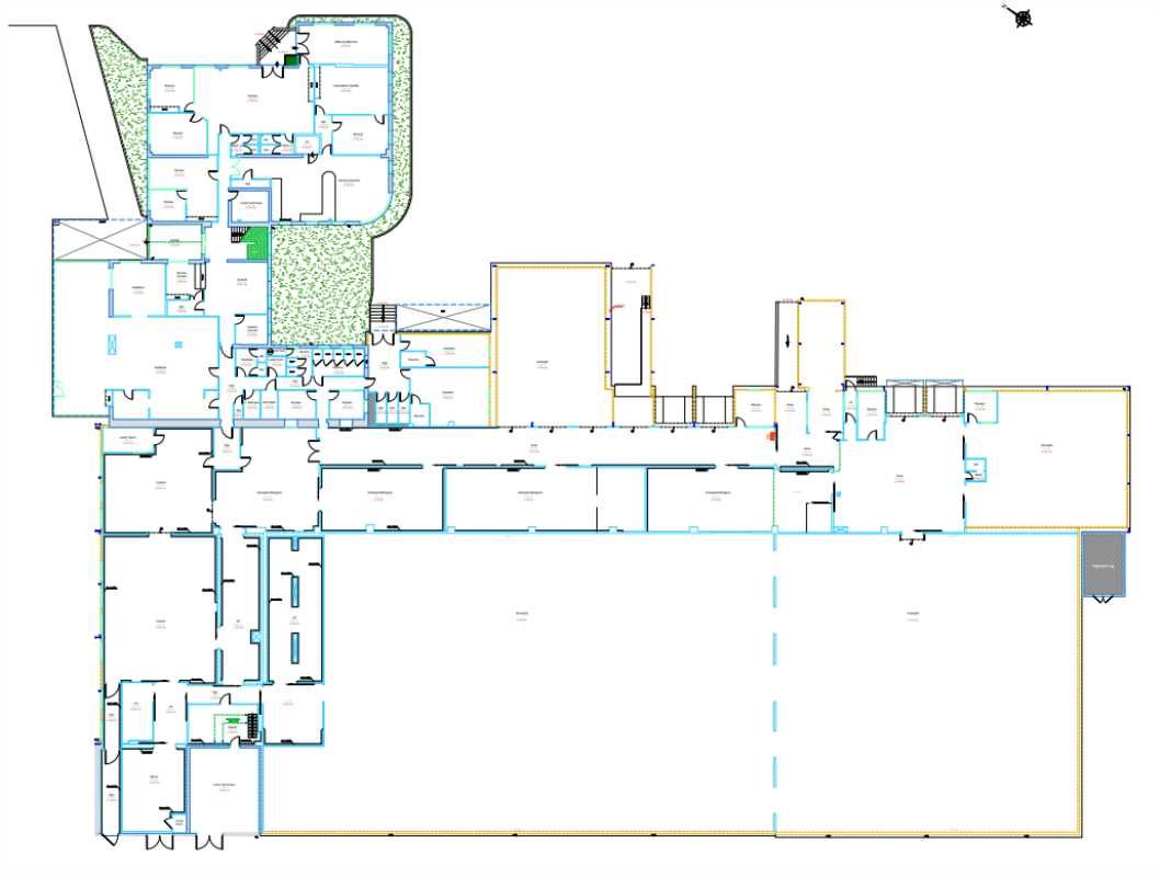
Cushman & Wakefield vous propose un actif logistique de 8 538 m² , situé
un actif logistique de 8 538 m² , situé au coeur de la Zone Industrielle Les
Prés Secs II , à Civrieux-d'Azergues, à proximité immédiate de l' autoroute
A6 .
Implanté sur un terrain de 16 963 m²bénéficie, le site bénéficie d'un
accès fonctionnel et d'une hauteur maximale de 12 m , idéale pour
optimiser le stockage vertical. La surface en rez-de-chaussée est de 4
266 m²., avec un aménagement global propice à une exploitation
logistique ou industrielle.
Construit en 1992 , l'ensemble est libre de toute occupation, offrant ainsi
une opportunité clé en main pour une acquisition ou une localisation. Cet entrepôt s'intègre dans un environnement professionnel actif , dans un
secteur bien desservi de la région Rhône-Alpes.
Régime Fiscal : Droits d'enregistrement
Honoraires : 2.5 % HT du prix de vente HD à la charge de l'acquéreur
Prestations :
Accessibilité:
Accès routier A6 à proximité
Les informations sur les risques auxquels ce bien est exposé sont disponibles sur le site Géorisques : www.georisques.gouv.fr
8 538 m² disponibles immédiatement
Cushman & Wakefield vous propose un actif logistique de 8 538 m² , situé
un actif logistique de 8 538 m² , situé au coeur de la Zone Industrielle Les
Prés Secs II , à Civrieux-d'Azergues, à proximité immédiate de l' autoroute
A6 .
Implanté sur un terrain de 16 963 m²bénéficie, le site bénéficie d'un
accès fonctionnel et d'une hauteur maximale de 12 m , idéale pour
optimiser le stockage vertical. La surface en rez-de-chaussée est de 4
266 m²., avec un aménagement global propice à une exploitation
logistique ou industrielle.
Construit en 1992 , l'ensemble est libre de toute occupation, offrant ainsi
une opportunité clé en main pour une acquisition ou une localisation. Cet entrepôt s'intègre dans un environnement professionnel actif , dans un
secteur bien desservi de la région Rhône-Alpes.
| Étage | Type | Surfaces | Dispo | Prix(m²) | Charges | Honoraires | Fiscal |
|---|---|---|---|---|---|---|---|
| Bureaux | 956 | n.c. | n.c. | 2.5 % HT du prix de vente HD à la charge de l'acquéreur | Droits d'enregistrement | ||
| RdC | Entrepôts | 4792 | n.c. | n.c. | 2.5 % HT du prix de vente HD à la charge de l'acquéreur | Droits d'enregistrement |
Régime Fiscal : Droits d'enregistrement
Honoraires : 2.5 % HT du prix de vente HD à la charge de l'acquéreur
Prestations :
- Terrain clos d'environ 12 477m²
- Entrepôt frigorifique
- Espace activités/entrepôt : ambient, froid positif et négatif
- Immeuble indépendant
- Surface RDC : 4792 m²
Accessibilité:
Accès routier A6 à proximité
Les informations sur les risques auxquels ce bien est exposé sont disponibles sur le site Géorisques : www.georisques.gouv.fr
Voir plus
Afficher les consommations énergétiques
Favoris
Exporter
Appeler
Contacter
Signaler cette annonce










