Conseil en immobilier d'entreprise, Cushman & Wakefield est un acteur incontournable au rayonnement international. Cushman & Wakefield offre des solutions dans toutes les étapes que comporte un p ...
En savoir plus



1 941 m² divisible dès 135 m²
Bureau à vendre - 1941 m²
Villeurbanne (69100)
Dernière mise à jour : Il y a 5 mois
Bureaux à Vendre Vileurbanne!
Vous souhaitez implanter votre entreprise au coeur de Villeurbanne, dans un environnement moderne et dynamique ? Cushman & Wakefield vous propose de découvrir une opportunité rare au 200 Cours Émile Zola, au sein du quartier emblématique des Gratte-Ciel. Ce programme neuf de bureaux offre une surface totale d'environ 1 940 m², divisible dès 135 m², permettant d'accompagner aussi bien un mono-utilisateur qu'un projet multi-occupants selon vos besoins.
Élevé en R+7 et bénéficiant d'une architecture contemporaine, l'immeuble est conçu conformément à la réglementation énergétique RE2020. Les plateaux sont livrés soit prêts à l'emploi (terminés hors cloisonnement), soit en version brute pour laisser libre cours à votre aménagement intérieur.
Plusieurs niveaux bénéficient de terrasses privatives apportant un environnement de travail qualitatif, ouvert et lumineux, propice au bien-être de vos collaborateurs.
Situé à proximité immédiate des grands axes et des transports en commun, avec un accès rapide à la Part-Dieu en seulement 9 minutes, ce projet bénéficie d'une excellente desserte, facilitant les déplacements quotidiens de vos équipes.
Notre équipe se tient à votre disposition pour organiser une présentation du projet et vous accompagner dans la définition de votre implantation idéale.
Régime Fiscal : Droits d'enregistrement
Honoraires : 2,5 % HT du prix de vente HD à la charge de l'acquéreur
Prestations :
Accessibilité:
Métro Perrache (ligne M)
Métro Vaulx-en-Velin La Soie (ligne A)
Bus Lignes 27-69
SNCF Part-Dieu à 9 mn en transport
Les informations sur les risques auxquels ce bien est exposé sont disponibles sur le site Géorisques : www.georisques.gouv.fr
Vous souhaitez implanter votre entreprise au coeur de Villeurbanne, dans un environnement moderne et dynamique ? Cushman & Wakefield vous propose de découvrir une opportunité rare au 200 Cours Émile Zola, au sein du quartier emblématique des Gratte-Ciel. Ce programme neuf de bureaux offre une surface totale d'environ 1 940 m², divisible dès 135 m², permettant d'accompagner aussi bien un mono-utilisateur qu'un projet multi-occupants selon vos besoins.
Élevé en R+7 et bénéficiant d'une architecture contemporaine, l'immeuble est conçu conformément à la réglementation énergétique RE2020. Les plateaux sont livrés soit prêts à l'emploi (terminés hors cloisonnement), soit en version brute pour laisser libre cours à votre aménagement intérieur.
Plusieurs niveaux bénéficient de terrasses privatives apportant un environnement de travail qualitatif, ouvert et lumineux, propice au bien-être de vos collaborateurs.
Situé à proximité immédiate des grands axes et des transports en commun, avec un accès rapide à la Part-Dieu en seulement 9 minutes, ce projet bénéficie d'une excellente desserte, facilitant les déplacements quotidiens de vos équipes.
Notre équipe se tient à votre disposition pour organiser une présentation du projet et vous accompagner dans la définition de votre implantation idéale.
| Étage | Type | Surfaces | Dispo | Prix(m²) | Charges | Honoraires | Fiscal |
|---|---|---|---|---|---|---|---|
| R+7 | Bureaux | 225 | 4650 /m² HD.HT | n.c. | 2,5 % HT du prix de vente HD à la charge de l'acquéreur | Droits d'enregistrement | |
| R+6 | Bureaux | 228,2 | 4650 /m² HD.HT | n.c. | 2,5 % HT du prix de vente HD à la charge de l'acquéreur | Droits d'enregistrement | |
| R+5 | Bureaux | 228,2 | 4650 /m² HD.HT | n.c. | 2,5 % HT du prix de vente HD à la charge de l'acquéreur | Droits d'enregistrement | |
| R+4 | Bureaux | 271,6 | 4650 /m² HD.HT | n.c. | 2,5 % HT du prix de vente HD à la charge de l'acquéreur | Droits d'enregistrement | |
| R+3 | Bureaux | 272,1 | 4650 /m² HD.HT | n.c. | 2,5 % HT du prix de vente HD à la charge de l'acquéreur | Droits d'enregistrement | |
| R+2 | Bureaux | 290,3 | 4650 /m² HD.HT | n.c. | 2,5 % HT du prix de vente HD à la charge de l'acquéreur | Droits d'enregistrement | |
| R+1 | Bureaux | 290,3 | 4650 /m² HD.HT | n.c. | 2,5 % HT du prix de vente HD à la charge de l'acquéreur | Droits d'enregistrement | |
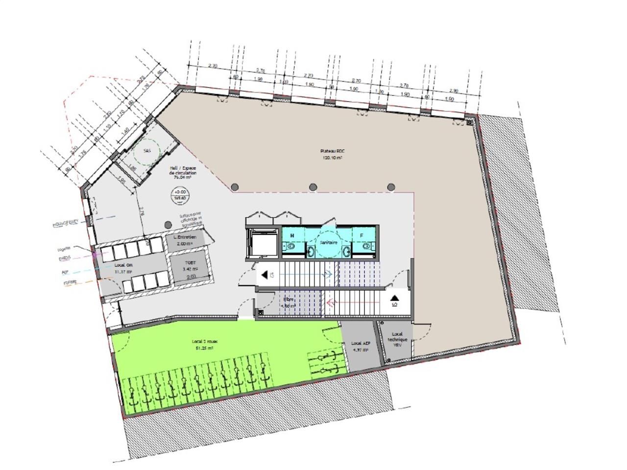
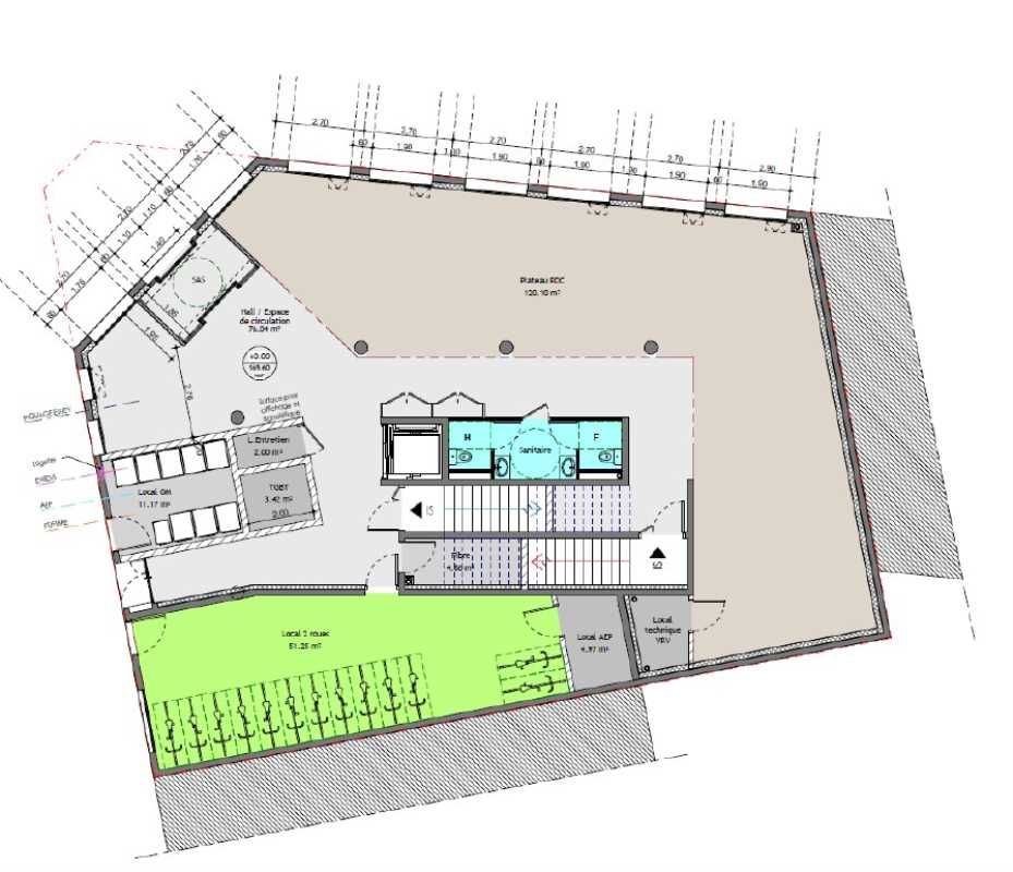
| RdC | Bureaux | 135,1 | 4650 /m² HD.HT | n.c. | 2,5 % HT du prix de vente HD à la charge de l'acquéreur | Droits d'enregistrement |
Régime Fiscal : Droits d'enregistrement
Honoraires : 2,5 % HT du prix de vente HD à la charge de l'acquéreur
Prestations :
- Immeuble de bureaux édifié en R+8 (RDC + 7 étages), sans sous sol
- 1 ascenseur
- Menuiseries extérieures en aluminium
- Projet soumis à la réglementation thermique RE2020
- Production de chauffage et de rafraichissementpar lot avec des groupes DRV et des unités gainables :
- Pompe à chaleur réversible tubes par lot
- Unités intérieures gainables
- 1 local dédié aux 2 roues
- Possibilité de livraison :
- Lots livrés terminés : sans cloisons intérieurs
- Lots livrés brut : sans revêtement de sols, sans peinture ni revêtements muraux, sans faux-plafonds, sans luminaires
- Surface RDC : 135,1 m²
Accessibilité:
Métro Perrache (ligne M)
Métro Vaulx-en-Velin La Soie (ligne A)
Bus Lignes 27-69
SNCF Part-Dieu à 9 mn en transport
Les informations sur les risques auxquels ce bien est exposé sont disponibles sur le site Géorisques : www.georisques.gouv.fr
Voir plus
Afficher les consommations énergétiques
Localisation et transport aux alentours
Favoris
Exporter
Appeler
Contacter
Signaler cette annonce










