Avec près de 80 implantations en France, Arthur Loyd est le premier réseau National de professionnels de Conseil en Immobilier d’Entreprise. Nous vous accompagnons dans vos projets sur l’ensemble d ...
En savoir plus

170 m²
Bureau à vendre - 170 m²
Vernon (27200)
Dernière mise à jour : Il y a 2 jours
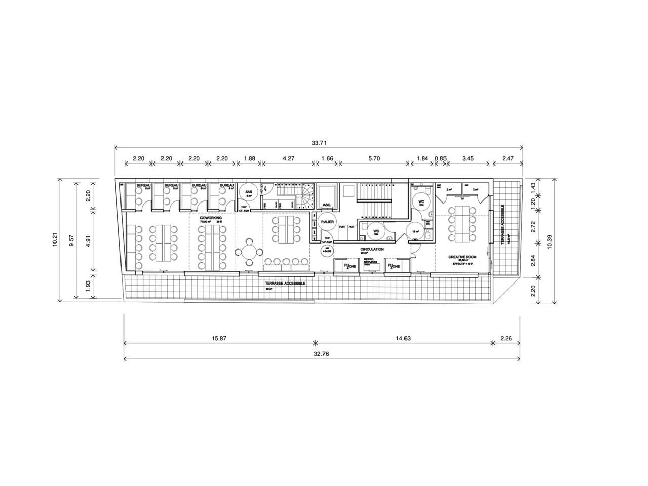
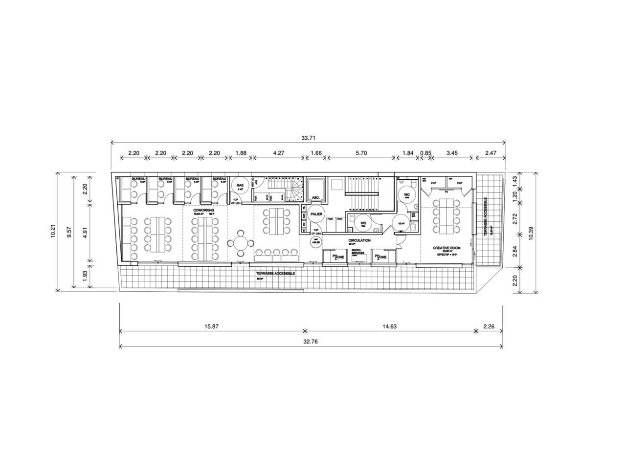
Situé à proximité du centre ville et de la gare, 1 plateau de bureaux de 167 m2 avec terrasse disponible à l'acquisition
Impôt Foncier : 2370 €/env HT/an
Régime Fiscal : Droits de mutation
Honoraires : 6%HT du montant net vendeur à la charge de l'acquéreur
Prestations :
Accessibilité:
Bus Gare SNCF de Vernon-Montigny (BUS-74, BUS-71), Vernon - Giverny (BUS)
Les informations sur les risques auxquels ce bien est exposé sont disponibles sur le site Géorisques : www.georisques.gouv.fr
| Étage | Type | Surfaces | Dispo | Prix(m²) | Charges | Honoraires | Fiscal |
|---|---|---|---|---|---|---|---|
| 3 | Bureaux | 170 | Immédiate | n.c. | n.c. | 6%HT du montant net vendeur à la charge de l'acquéreur | Droits de mutation |
Impôt Foncier : 2370 €/env HT/an
Régime Fiscal : Droits de mutation
Honoraires : 6%HT du montant net vendeur à la charge de l'acquéreur
Prestations :
- Situé au dernier étage d'un immeuble récent élevé en R+3, un plateau de bureaux aménagé d'une superficie d'env 167 m2, avec terrasse et composé de:
- 1 open space de 75 m2
- 5 box de 5m2 chacun
- 2 phone box
- 1 salle de réunion avec rangements de 37,50 m2 , terrasse de 16,50 m2
- sanitaires H/F de 15 m2
- terrasse 60 m2
- Ascenseur
- PMR
- L'ensemble est situé a proximité du centre ville et de la gare
Accessibilité:
Bus Gare SNCF de Vernon-Montigny (BUS-74, BUS-71), Vernon - Giverny (BUS)
Les informations sur les risques auxquels ce bien est exposé sont disponibles sur le site Géorisques : www.georisques.gouv.fr
Voir plus
Afficher les consommations énergétiques
Localisation et transport aux alentours
- Vernon121m (2min à pied)J
Favoris
Exporter
Appeler
Contacter
Signaler cette annonce







