Prolocaux est un acteur de l'immobilier d'entreprise spécialisé dans la location, la vente et l'acquisition de biens professionnels en région.Présents depuis 2015 en Normandie, dans les Hauts-de-Fr ...
En savoir plus

224 m²
Bureau à vendre - 224 m²
Vernon (27200)
Dernière mise à jour : Il y a 2 jours
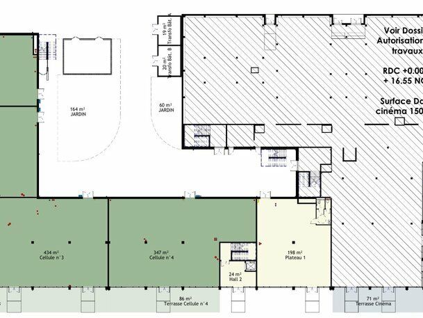
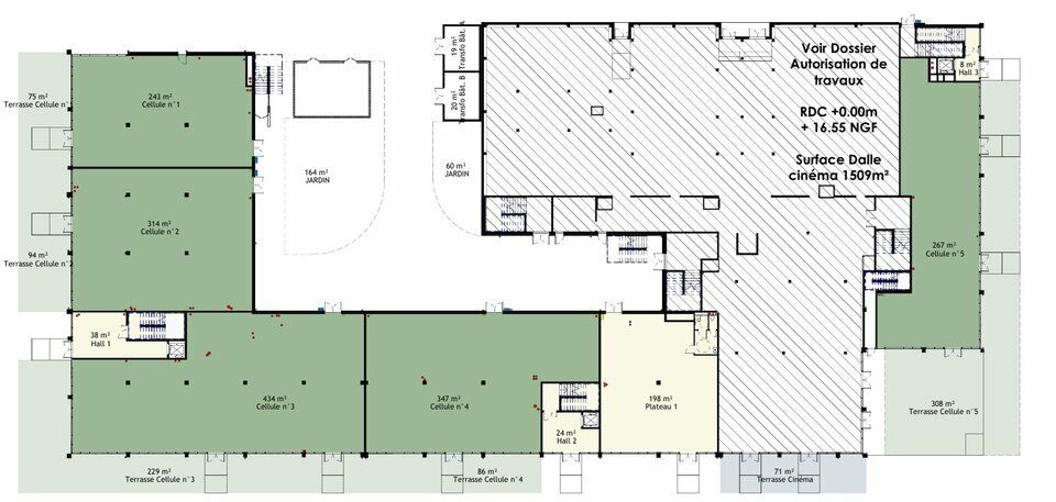
Plateau de bureau de 224m² environ à vendre!
Les informations sur les risques auxquels ce bien est exposé sont disponibles sur le site Géorisques : www.georisques.gouv.fr
Sofia OLIVEIRA, agent commercial PROLOCAUX - inscrite au RSAC d'EVREUX sour le numéro 838 485 571
Bureaux de 224m² au RDC
Bureaux livrés aménagés hors cloisonnement.
Disponibilité : FIN 2026
Prix de vente : 481600
Honoraires à la charge de l'acquéreur : 5 % HT
A vendre plateau de bureaux au coeur d'un projet d'envergure!
Localisation idéale au rez-de-chaussée, dans un futur complexe dynamique mêlant culture, gastronomie et affaires.
Plateau de bureaux d'une surface de 224m² au prix attractif de 2150/m².
Le bien s'insère dans un projet global ambitieux comprenant:
-3700m² de bureaux
-2400m² de restaurants
-4000m² de cinéma
-2800m² d'hôtel
Un environnement stimulant et attractif, idéal pour recevoir vos clients, implanter votre entreprise, ou investir dans un secteur en pleine transformation.
Les informations sur les risques auxquels ce bien est exposé sont disponibles sur le site Géorisques : www.georisques.gouv.fr
Sofia OLIVEIRA, agent commercial PROLOCAUX - inscrite au RSAC d'EVREUX sour le numéro 838 485 571
Bureaux de 224m² au RDC
Bureaux livrés aménagés hors cloisonnement.
Disponibilité : FIN 2026
Prix de vente : 481600
Honoraires à la charge de l'acquéreur : 5 % HT
Voir plus
Afficher les consommations énergétiques
Localisation et transport aux alentours
Favoris
Exporter
Appeler
Contacter
Signaler cette annonce







