

394 m²
Bureau à vendre - 394 m²
Paris 8 (75008)
Dernière mise à jour : Il y a 2 jours
CBRE vous propose des bureaux à vendre situés dans le 8ème arrondissement de Paris.
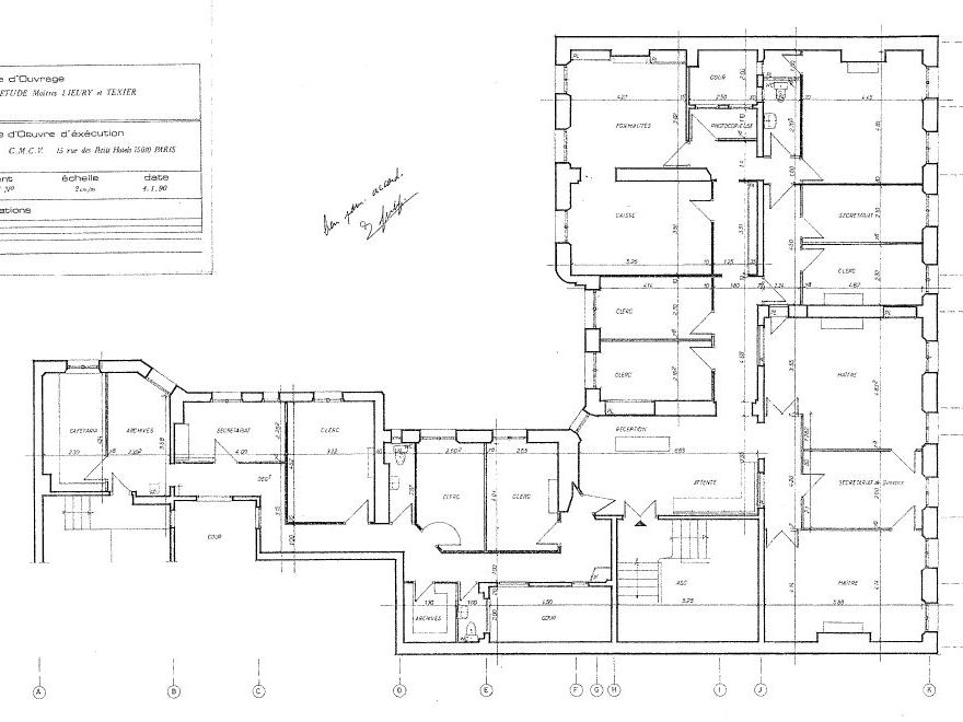
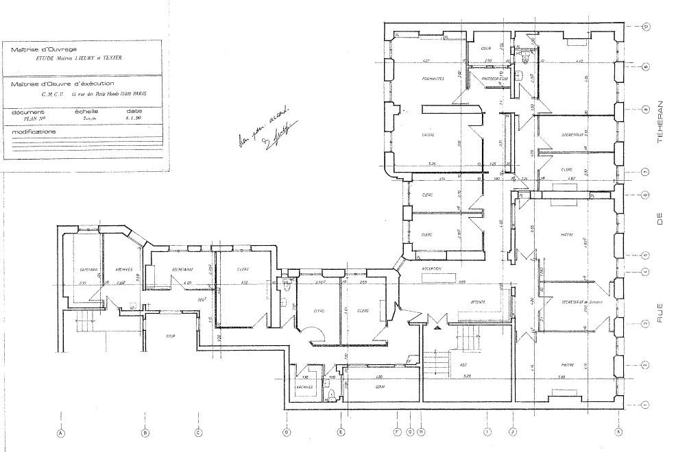
Idéalement située dans un immeuble de caractère, cette surface traversante se distingue par une très belle hauteur sous plafond, des parquets élégants, des moulures raffinées et plusieurs cheminées d'époque. Cet espace offre un cadre de travail unique alliant charme et fonctionnalité.
Régime Fiscal : Droits d'enregistrement
Honoraires : A la charge de l'acquéreur
Prestations :
Accessibilité:
Bus LA BOETIE - PERCIER (52, 83, 93), HAUSSMANN - MIROMESNIL (22, 28, 32, 43, 80, 84)
Metro Miromesnil (9, 13)
RER CHARLES DE GAULLE ETOILE (A)
Transilien Paris Saint-Lazare (J, L)
Les informations sur les risques auxquels ce bien est exposé sont disponibles sur le site Géorisques : www.georisques.gouv.fr
Idéalement située dans un immeuble de caractère, cette surface traversante se distingue par une très belle hauteur sous plafond, des parquets élégants, des moulures raffinées et plusieurs cheminées d'époque. Cet espace offre un cadre de travail unique alliant charme et fonctionnalité.
| Étage | Type | Surfaces | Dispo | Prix(m²) | Charges | Honoraires | Fiscal |
|---|---|---|---|---|---|---|---|
| SS | Bureaux | 26 | Immédiate | n.c. | n.c. | A la charge de l'acquéreur | Droits d'enregistrement |
| RDC | Bureaux | 28,8 | Immédiate | n.c. | n.c. | A la charge de l'acquéreur | Droits d'enregistrement |
| 3 | Bureaux | 338,8 | Immédiate | n.c. | n.c. | A la charge de l'acquéreur | Droits d'enregistrement |
Régime Fiscal : Droits d'enregistrement
Honoraires : A la charge de l'acquéreur
Prestations :
- Immeuble Haussmannien
- Très belle hauteur sous plafond
- Parquet
- Moulures
- Cheminées
- Surface traversante
- 1 place de parking dans la cour en sus
- Ravalement intérieur et extérieur + toiture de moins de 3 ans
- Surface et affectation : en cours de validation
- Surface RDC : 28,8 m²
Accessibilité:
Bus LA BOETIE - PERCIER (52, 83, 93), HAUSSMANN - MIROMESNIL (22, 28, 32, 43, 80, 84)
Metro Miromesnil (9, 13)
RER CHARLES DE GAULLE ETOILE (A)
Transilien Paris Saint-Lazare (J, L)
Les informations sur les risques auxquels ce bien est exposé sont disponibles sur le site Géorisques : www.georisques.gouv.fr
Voir plus
Afficher les consommations énergétiques
Favoris
Exporter
Appeler
Contacter
Signaler cette annonce










