



217 m²
Bureau à vendre - 217 m²
Paris 20 (75020)
Dernière mise à jour : Il y a 2 jours
En exclusivité, CBRE vous propose à la vente, un local commercial en rez-de-chaussée avec accès ERP 5, PMR et entrée indépendante sur rue d'environ 216 m² situé dans le 20ème arrondissement de Paris, à proximité de la Porte de Bagnolet, des métros Saint Fargeau, Pelleport et Porte de Bagnolet. A proximité également de deux stations du Tram 3b et de l'accès à l'autoroute A3, direction Lille.
Impôt Foncier : 36 €/m²/an
Régime Fiscal : Droits d'enregistrement
Honoraires : 5% HT du prix de vente HD à la charge de l'acquéreur
Prestations :
Accessibilité:
Bus PORTE DE MENILMONTANT (ROISSYB)
Metro Saint-Fargeau (3B)
Tramway SEVERINE (T3b)
Les informations sur les risques auxquels ce bien est exposé sont disponibles sur le site Géorisques : www.georisques.gouv.fr
| Étage | Type | Surfaces | Dispo | Prix(m²) | Charges | Honoraires | Fiscal |
|---|---|---|---|---|---|---|---|
| RDC | Bureaux | 96,8 | Immédiate | n.c. | n.c. | 5% HT du prix de vente HD à la charge de l'acquéreur | Droits d'enregistrement |
| RDC | Bureaux | 120 | Immédiate | n.c. | n.c. | 5% HT du prix de vente HD à la charge de l'acquéreur | Droits d'enregistrement |
Impôt Foncier : 36 €/m²/an
Régime Fiscal : Droits d'enregistrement
Honoraires : 5% HT du prix de vente HD à la charge de l'acquéreur
Prestations :
- ERP : 5eme categ (Tout)
- Accès PMR
- ERP 5
- Chauffage électrique
- Clim à Eau
- RJ45
- 1 parking : 15 000 euros/U
- 2 caves en s/sol
- Double vitrage, vitres anti-effractions
- Réseau Wi-Fi + RJ45 toutes salles (fibre optique)
- Secteur calme + proche transports (Tram, Métro L3)
- Copropriété calme, très bien entretenue (gardien habitant dans copro) + corpo sécurisée.
- Climatisation neuve (changée en oct 2024)
- Chauffages neufs (changés en oct 2024)
- Travaux (clim + chauffage) rénové en octobre 2024 par le propriétaire
- Peinture refaite
- Eclairage LED rénové
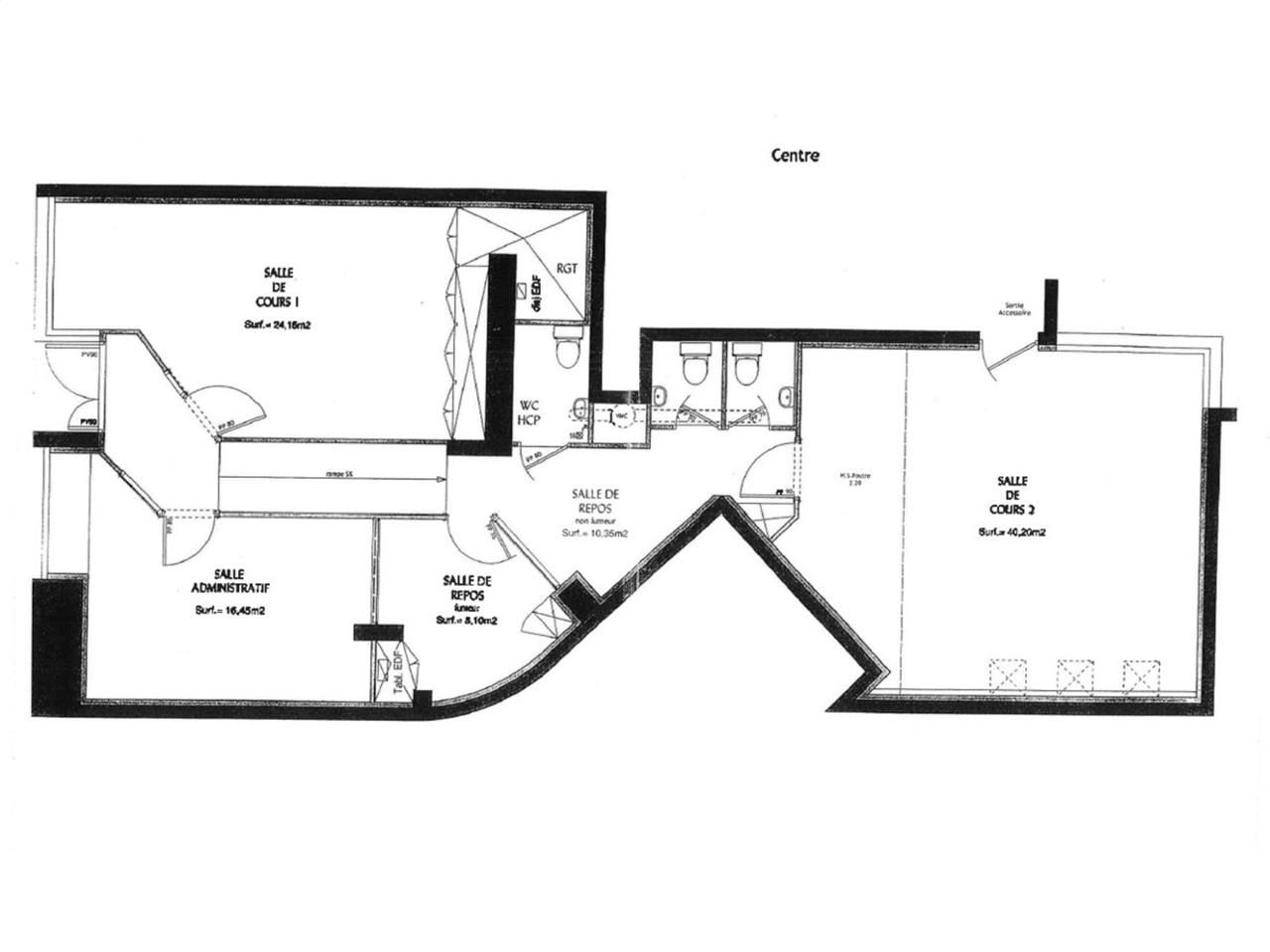
- Surface RDC : 216,8 m²
Accessibilité:
Bus PORTE DE MENILMONTANT (ROISSYB)
Metro Saint-Fargeau (3B)
Tramway SEVERINE (T3b)
Les informations sur les risques auxquels ce bien est exposé sont disponibles sur le site Géorisques : www.georisques.gouv.fr
Voir plus
Afficher les consommations énergétiques
Favoris
Exporter
Appeler
Contacter
Signaler cette annonce










