Alex Bolton, société de conseil en immobilier d’entreprise est spécialisée dans la transaction locative et la vente d’immeubles de bureaux.Dotée d’une équipe de collaborateurs expérimentés, la soci ...
En savoir plus

1 018 m²
Bureau à vendre - 1018 m²
Paris 18 (75018)
Publiée : Il y a 3 jours
A quelques pas de la mythique Halle Saint Pierre et de la Gare du Nord, cette ancienne fabrique de cycles et de boutons, conçue par les Ateliers Eiffel au début du XXème siècle, vous séduira par son architecture épurée et sa vaste verrière dominant l'atrium. Entièrement rénovée et réhabilitée en 2020, cette manufacture de 1 030,6 m² (bureaux et commerces) offre des espaces modulables adaptés à de multiples usages dans un cadre exceptionnel. Avec un triple accès et une extraction, ces locaux pourront être utilisés aussi bien en bureaux qu'en activité de réception de public (ERP & PMR). A visiter !
Régime Fiscal : Droit d'enregistrement
Honoraires : A la charge de l'acquéreur
Prestations :
Accessibilité:
Bus Département - Marx Dormoy (38, N43, 35), Doudeauville (302)
Métro Marx Dormoy (12), Château Rouge (4), La Chapelle (2)
RER Gare du Nord (D, B), Magenta (E)
Transilien Gare du Nord (TER), Gare de l'Est (TER), Paris Gare du Nord (TER)
Transilien Gare du Nord (H, K)
Les informations sur les risques auxquels ce bien est exposé sont disponibles sur le site Géorisques : www.georisques.gouv.fr
| Étage | Type | Surfaces | Dispo | Prix(m²) | Charges | Honoraires | Fiscal |
|---|---|---|---|---|---|---|---|
| 1 | Bureaux | 125 | Immédiate | n.c. | n.c. | A la charge de l'acquéreur | Droit d'enregistrement |
| RDC | Bureaux | 100 | Immédiate | n.c. | n.c. | A la charge de l'acquéreur | Droit d'enregistrement |
| 2 | Bureaux | 164 | Immédiate | n.c. | n.c. | A la charge de l'acquéreur | Droit d'enregistrement |
| 1 | Bureaux | 156 | Immédiate | n.c. | n.c. | A la charge de l'acquéreur | Droit d'enregistrement |
| RDC | Bureaux | 270 | Immédiate | n.c. | n.c. | A la charge de l'acquéreur | Droit d'enregistrement |
| SS | Bureaux | 203 | Immédiate | n.c. | n.c. | A la charge de l'acquéreur | Droit d'enregistrement |
Régime Fiscal : Droit d'enregistrement
Honoraires : A la charge de l'acquéreur
Prestations :
- RDC :
- Restaurant MAMA KOSSA
- Le Lab des Commerçants
- 1 patio / accueil
- 1 atrium
- R+1 :
- 2 salles de réunion
- 3 bureaux fermés
- 1 espace cuisine et bar
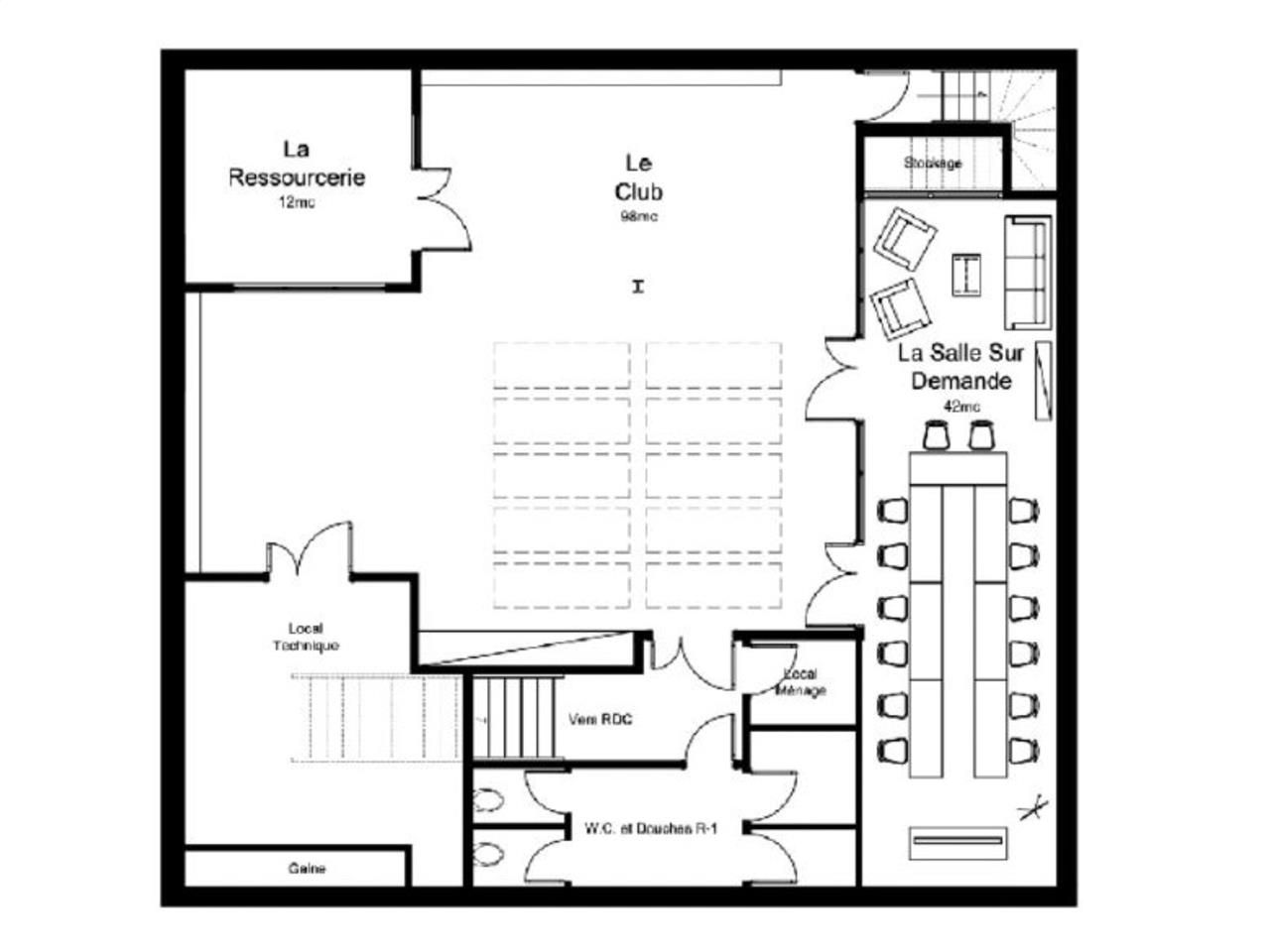
- SOUS-SOL :
- 1 salle de sport
- 1 grande salle de réunion / formation
- 1 salle bien-être / médecin douce
- Terrasse de 17 m² au R+1
Accessibilité:
Bus Département - Marx Dormoy (38, N43, 35), Doudeauville (302)
Métro Marx Dormoy (12), Château Rouge (4), La Chapelle (2)
RER Gare du Nord (D, B), Magenta (E)
Transilien Gare du Nord (TER), Gare de l'Est (TER), Paris Gare du Nord (TER)
Transilien Gare du Nord (H, K)
Les informations sur les risques auxquels ce bien est exposé sont disponibles sur le site Géorisques : www.georisques.gouv.fr
Voir plus
Afficher les consommations énergétiques
Localisation et transport aux alentours
Favoris
Exporter
Appeler
Contacter
Signaler cette annonce
