Créée en mai 2012, Wellstone est une société de conseil en immobilier d'entreprise qui accompagne ses clients propriétaires, investisseurs et utilisateurs dans leurs différents projets immobiliers ...
En savoir plus

196 m²
Bureau à vendre - 196 m²
Paris 17 (75017)
Dernière mise à jour : Il y a 2 jours
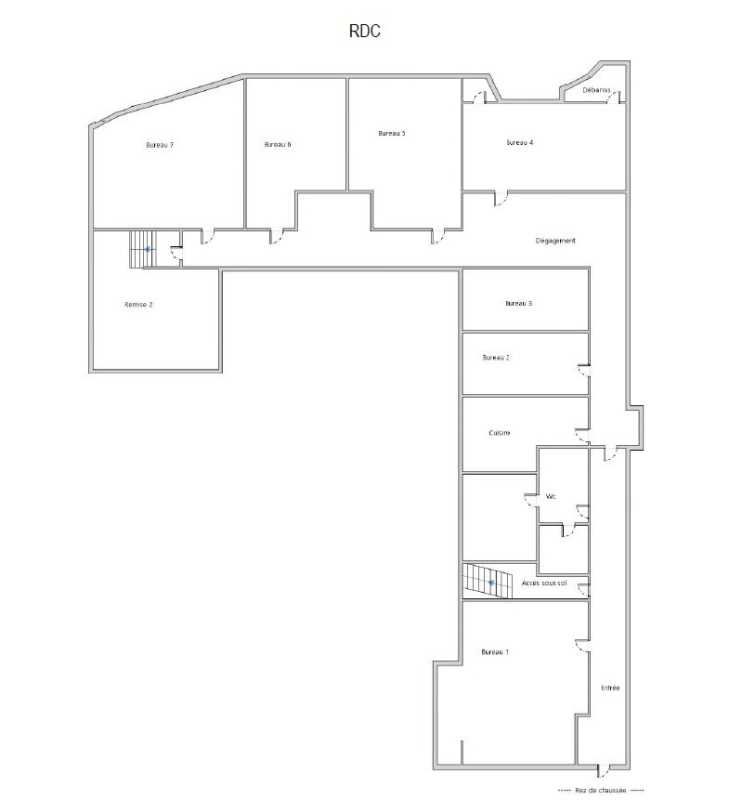
Wellstone vous propose dans une des rues les plus prestigieuses et calmes du 17e, proche du métro et de la gare Pereire, une surface à la vente située en RDC de 176m² et 20m² en sous-sol. Les locaux bénéficient d'un double accès sur rue et via les parties communes. La luminosité sur la partie arrière est assurée par des skydomes. Son plan très modulable et sans contrainte porteuse permet de s'adapter à une grande variété d'activités !
Impôt Foncier : 37,4 €/m²/an
Régime Fiscal : Droit d'enregistrement
Honoraires : A la charge de l'acquéreur
Taxe Bureau : 25,77 €/m²/an
Prestations :
Accessibilité:
Metro Péreire (3, C)
Metro Wagram (3)
Les informations sur les risques auxquels ce bien est exposé sont disponibles sur le site Géorisques : www.georisques.gouv.fr
| Étage | Type | Surfaces | Dispo | Prix(m²) | Charges | Honoraires | Fiscal |
|---|---|---|---|---|---|---|---|
| RDC | Bureaux | 176 | Après accord | n.c. | 40,82 m²/an HT | A la charge de l'acquéreur | Droit d'enregistrement |
| 1SS | Bureaux | 20 | Après accord | n.c. | 40,82 m²/an HT | A la charge de l'acquéreur | Droit d'enregistrement |
Impôt Foncier : 37,4 €/m²/an
Régime Fiscal : Droit d'enregistrement
Honoraires : A la charge de l'acquéreur
Taxe Bureau : 25,77 €/m²/an
Prestations :
- Locaux de standing en parfait état dans un immeuble récent
- Surface organisée en 1 accueil, 7 bureaux, 1 cuisine, 2 WC (H/F) avec accès PMR - double vasque , 1 remise et 2 petits locaux techniques, 1 sous-sol sain relié par un escalier intérieur
- Les bureaux en partie arrière sont éclairés par skydomes
- Cloisonnement amovible
- Câblage informatique refait à neuf avec baie informatique
- Installation électrique refaite à neuf
- Accès indépendant en RDC sur rue et accès possible via les parties communes de l'immeuble
- Équipement mobilier restant à disposition
- Surface RDC : 176 m²
Accessibilité:
Metro Péreire (3, C)
Metro Wagram (3)
Les informations sur les risques auxquels ce bien est exposé sont disponibles sur le site Géorisques : www.georisques.gouv.fr
Voir plus
Afficher les consommations énergétiques
Localisation et transport aux alentours
Favoris
Exporter
Appeler
Contacter
Signaler cette annonce
