Nous sommes Immprove, une grande équipe de plus de 200 experts en immobilier d’entreprise, implantés localement avec plus de 20 agences sur tout le territoire.Depuis 2009, notre proximité, notre ét ...
En savoir plus



334 m²
Bureau à vendre - 334 m²
Paris 15 (75015)
Dernière mise à jour : Il y a 6 jours
À proximité du métro Convention, IMMPROVE propose à la vente une surface de bureaux présentant une forte luminosité et une organisation interne rationnelle. Les espaces, facilement modulables, permettent d'envisager des configurations variées selon les usages. La possibilité d'ERP confère au bien une polyvalence appréciable, notamment pour des centres de formation ou des professions libérales recherchant un local adaptable et immédiatement fonctionnel.
Impôt Foncier : 12,12 €// m² / an
Régime Fiscal : Droits d'enregistrement
Honoraires : 5% HT du prix de vente HD à la charge de l'acquéreur
Prestations :
Accessibilité:
SNCF Gare Montparnasse (N)
Métro Plaisance (13)
Métro Vaugirard (12)
Bus Brancion - Vouillé (62,89,95)
Bus Vercingétorix - Rouvier (59)
Bus Alleray (88)
Route Vercingétorix (N63)
Les informations sur les risques auxquels ce bien est exposé sont disponibles sur le site Géorisques : www.georisques.gouv.fr
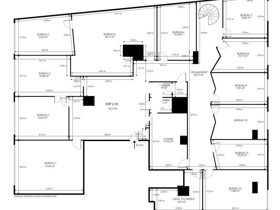
| Étage | Type | Surfaces | Dispo | Prix(m²) | Charges | Honoraires | Fiscal |
|---|---|---|---|---|---|---|---|
| RDC | Bureaux | 252 | Immédiate | 4488,02 m² HD | 35 m²/an HT | 5% HT du prix de vente HD à la charge de l'acquéreur | Droits d'enregistrement |
| 1SS | Bureaux | 82 | Immédiate | 4488,02 m² HD | 35 m²/an HT | 5% HT du prix de vente HD à la charge de l'acquéreur | Droits d'enregistrement |
Impôt Foncier : 12,12 €// m² / an
Régime Fiscal : Droits d'enregistrement
Honoraires : 5% HT du prix de vente HD à la charge de l'acquéreur
Prestations :
- Accès Personnes Mobilités Réduites
- Possibilité ERP
- Double accès
- Accès privatif sur rue
- Etat d'usage des locaux
- Surface cloisonnée traversante
- Faux plafond
- Parquet
- Convecteurs électriques
- Câblage RJ45
- 3 Empl. en S/Sol
- Surface RDC : 252 m²
Accessibilité:
SNCF Gare Montparnasse (N)
Métro Plaisance (13)
Métro Vaugirard (12)
Bus Brancion - Vouillé (62,89,95)
Bus Vercingétorix - Rouvier (59)
Bus Alleray (88)
Route Vercingétorix (N63)
Les informations sur les risques auxquels ce bien est exposé sont disponibles sur le site Géorisques : www.georisques.gouv.fr
Voir plus
Afficher les consommations énergétiques
Favoris
Exporter
Appeler
Contacter
Signaler cette annonce









