Créée en mai 2012, Wellstone est une société de conseil en immobilier d'entreprise qui accompagne ses clients propriétaires, investisseurs et utilisateurs dans leurs différents projets immobiliers ...
En savoir plus

220 m²
Bureau à vendre - 220 m²
Paris 11 (75011)
Dernière mise à jour : Il y a 3 jours
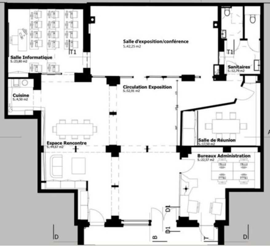
Dans un immeuble ancien de bon standing, nous vous proposons des bureaux à la vente à proximité de la place Voltaire.
Régime Fiscal : Droit d'enregistrement
Taxe Bureau : 21,7 €/m²/an
Prestations :
Accessibilité:
Metro Voltaire (9)
Les informations sur les risques auxquels ce bien est exposé sont disponibles sur le site Géorisques : www.georisques.gouv.fr
| Étage | Type | Surfaces | Dispo | Prix(m²) | Charges | Honoraires | Fiscal |
|---|---|---|---|---|---|---|---|
| RDC | Bureaux | 220 | Immédiate | 10500 m² HD | n.c. | Droit d'enregistrement |
Régime Fiscal : Droit d'enregistrement
Taxe Bureau : 21,7 €/m²/an
Prestations :
- ERP : 5ème catégorie
- Parties communes de bon standing
- Locaux rénovés
- Surface organisée en espaces ouverts et 1 kitchenette
- Verrière
- Accès indépendant
- Surface RDC : 220 m²
Accessibilité:
Metro Voltaire (9)
Les informations sur les risques auxquels ce bien est exposé sont disponibles sur le site Géorisques : www.georisques.gouv.fr
Voir plus
Afficher les consommations énergétiques
Localisation et transport aux alentours
- Voltaire193m (3min à pied)9
- Rue Saint-Maur544m (8min à pied)3
Favoris
Exporter
Appeler
Contacter
Signaler cette annonce
