Nous sommes Immprove, une grande équipe de plus de 200 experts en immobilier d’entreprise, implantés localement avec plus de 20 agences sur tout le territoire.Depuis 2009, notre proximité, notre ét ...
En savoir plus

3 601 m² divisible dès 161 m²
OPEN PARK - Bureau à vendre - 3601 m²
Toussieu (69780)
Dernière mise à jour : Il y a 2 mois
Programme neuf
Immeuble OPEN PARK
Immprove vous propose au coeur du OPEN PARK à Toussieu (69780), une opportunité exceptionnelle d'acquisition de bureaux et locaux commerciaux neufs. Ce programme immobilier mixte, aux prestations haut de gamme, propose des espaces modulables de 3 601 m², divisible à partir de 161 m², permettant ainsi une adaptation parfaite aux besoins spécifiques de votre entreprise.
Profitez de la possibilité de regrouper plusieurs lots pour optimiser votre espace de travail et offrir à votre entreprise un cadre sur mesure, alliant modernité et fonctionnalité. Ne manquez pas cette occasion unique de valoriser votre activité dans un environnement d'exception.
Régime Fiscal : TVA (20%)
Honoraires : 3 % HT du prix de vente HT à la charge de l'acquéreur, payables à la signature de l'acte
Prestations :
Accessibilité:
Aéroport Aéroport Lyon Saint Exupéry à 12 km
Autoroute A43 à 10 km
Autoroute A46 à 6 km
Route D318 (Route d'Heyrieux) en façade
Les informations sur les risques auxquels ce bien est exposé sont disponibles sur le site Géorisques : www.georisques.gouv.fr
Immeuble OPEN PARK
Immprove vous propose au coeur du OPEN PARK à Toussieu (69780), une opportunité exceptionnelle d'acquisition de bureaux et locaux commerciaux neufs. Ce programme immobilier mixte, aux prestations haut de gamme, propose des espaces modulables de 3 601 m², divisible à partir de 161 m², permettant ainsi une adaptation parfaite aux besoins spécifiques de votre entreprise.
Profitez de la possibilité de regrouper plusieurs lots pour optimiser votre espace de travail et offrir à votre entreprise un cadre sur mesure, alliant modernité et fonctionnalité. Ne manquez pas cette occasion unique de valoriser votre activité dans un environnement d'exception.
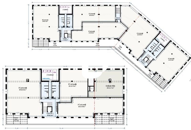
| Étage | Type | Surfaces | Dispo | Prix(m²) | Charges | Honoraires | Fiscal |
|---|---|---|---|---|---|---|---|
| 1 | Bureaux | 290 | Immédiate | 2370 m² HD | n.c. | 3 % HT du prix de vente HT à la charge de l'acquéreur, payables à la signature de l'acte | TVA (20%) |
| 1 | Bureaux | 214 | Immédiate | 2370 m² HD | n.c. | 3 % HT du prix de vente HT à la charge de l'acquéreur, payables à la signature de l'acte | TVA (20%) |
| 1 | Bureaux | 214 | Immédiate | 2370 m² HD | n.c. | 3 % HT du prix de vente HT à la charge de l'acquéreur, payables à la signature de l'acte | TVA (20%) |
| 1 | Bureaux | 205 | Immédiate | 2370 m² HD | n.c. | 3 % HT du prix de vente HT à la charge de l'acquéreur, payables à la signature de l'acte | TVA (20%) |
| 1 | Bureaux | 186 | Immédiate | 2370 m² HD | n.c. | 3 % HT du prix de vente HT à la charge de l'acquéreur, payables à la signature de l'acte | TVA (20%) |
| RDC | Locaux Commerciaux | 713 | Immédiate | 2500 m² HD | n.c. | 3 % HT du prix de vente HT à la charge de l'acquéreur, payables à la signature de l'acte | TVA (20%) |
| RDC | Locaux Commerciaux | 397 | Immédiate | 2530 m² HD | n.c. | 3 % HT du prix de vente HT à la charge de l'acquéreur, payables à la signature de l'acte | TVA (20%) |
| RDC | Locaux Commerciaux | 396 | Immédiate | 2530 m² HD | n.c. | 3 % HT du prix de vente HT à la charge de l'acquéreur, payables à la signature de l'acte | TVA (20%) |
| RDC/R+1 | Locaux Commerciaux | 333 | Immédiate | 2570 m² HD | n.c. | 3 % HT du prix de vente HT à la charge de l'acquéreur, payables à la signature de l'acte | TVA (20%) |
| RDC | Locaux Commerciaux | 280 | Immédiate | 2570 m² HD | n.c. | 3 % HT du prix de vente HT à la charge de l'acquéreur, payables à la signature de l'acte | TVA (20%) |
| RDC | Locaux Commerciaux | 212 | Immédiate | 2570 m² HD | n.c. | 3 % HT du prix de vente HT à la charge de l'acquéreur, payables à la signature de l'acte | TVA (20%) |
| RDC | Locaux Commerciaux | 161 | Immédiate | 2570 m² HD | n.c. | 3 % HT du prix de vente HT à la charge de l'acquéreur, payables à la signature de l'acte | TVA (20%) |
Régime Fiscal : TVA (20%)
Honoraires : 3 % HT du prix de vente HT à la charge de l'acquéreur, payables à la signature de l'acte
Prestations :
- Plateaux très lumineux
- Espaces ouverts
- Climatisation réversible
- Câblage informatique
- Surface RDC : 2159 m²
Accessibilité:
Aéroport Aéroport Lyon Saint Exupéry à 12 km
Autoroute A43 à 10 km
Autoroute A46 à 6 km
Route D318 (Route d'Heyrieux) en façade
Les informations sur les risques auxquels ce bien est exposé sont disponibles sur le site Géorisques : www.georisques.gouv.fr
Voir plus
Afficher les consommations énergétiques
Localisation et transport aux alentours
Favoris
Exporter
Appeler
Contacter
Signaler cette annonce

