L’Immobilière d’Entreprise Quimper se positionne comme un acteur de proximité dédié à l’immobilier professionnel en Sud Finistère. L’agence conseille et accompagne ses clients dans la structuration ...
En savoir plus
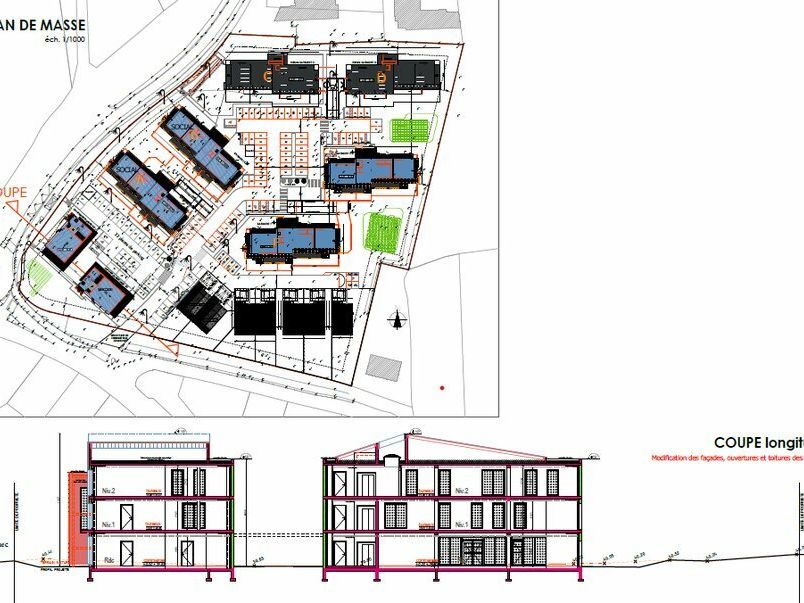
1 192 m² divisible dès 100 m²
Bureau à vendre - 1192 m²
Quimper (29000)
Dernière mise à jour : Il y a 2 mois
ensemble immobilier neuf
Les informations sur les risques auxquels ce bien est exposé sont disponibles sur le site Géorisques : www.georisques.gouv.fr
Disponibilité : Immédiate
Prix de vente : 2200 / m2
Honoraires à la charge de l'acquéreur : 7 % HT
Secteur dynamique pour ce programme neuf, bureaux et habitation. Deux immeubles de bureaux sur trois niveaux. 46 places de stationnement. PMR, qualitatif, proche petite périphérie de Quimper. Commerces et services à proximité.
Les informations sur les risques auxquels ce bien est exposé sont disponibles sur le site Géorisques : www.georisques.gouv.fr
Disponibilité : Immédiate
Prix de vente : 2200 / m2
Honoraires à la charge de l'acquéreur : 7 % HT
Voir plus
Afficher les consommations énergétiques
Favoris
Exporter
Appeler
Contacter
Signaler cette annonce










