L’agence CBRE Bordeaux conseille et accompagne les chefs d’entreprise dans leurs projets immobiliers quels que soient leur taille et leur secteur d’activité. Spécialistes de la transaction de burea ...
En savoir plus

166 m²
Bureau à vendre - 166 m²
Mérignac (33700)
Dernière mise à jour : Il y a 3 jours
CBRE vous propose des bureaux à la vente au sein du nouveau programme « EOLE PARK » à Mérignac.
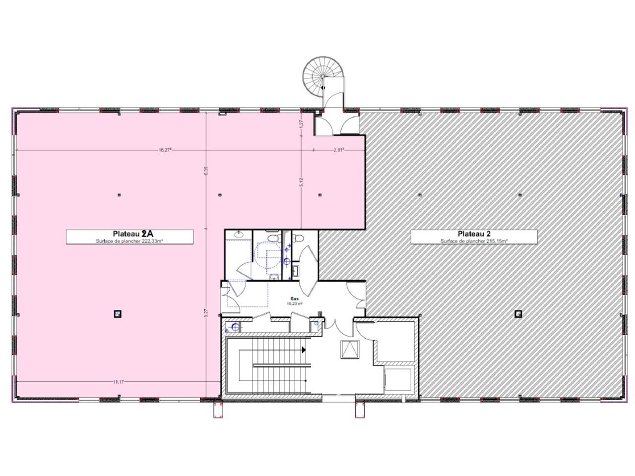
Au sein d'un terrain clos et sécurisé, la réalisation Éole Park est composée de 4 bâtiments à l'architecture contemporaine.
Les jardins partagés, les lieux de convivialité (tables de pique-nique) et les 3 000 m2 d'espaces verts garantissent une belle qualité de vie professionnelle aux employés.
Régime Fiscal : T.V.A.
Honoraires : A la charge de l'acquéreur
Prestations :
Accessibilité:
Bus Ligne 26 - Arrêt "Grande Semaine"
Bus Ligne 39 - Arrêt "Aéroparc"
Aeroport Bordeaux-Mérignac à 3,3km
Les informations sur les risques auxquels ce bien est exposé sont disponibles sur le site Géorisques : www.georisques.gouv.fr
Au sein d'un terrain clos et sécurisé, la réalisation Éole Park est composée de 4 bâtiments à l'architecture contemporaine.
Les jardins partagés, les lieux de convivialité (tables de pique-nique) et les 3 000 m2 d'espaces verts garantissent une belle qualité de vie professionnelle aux employés.
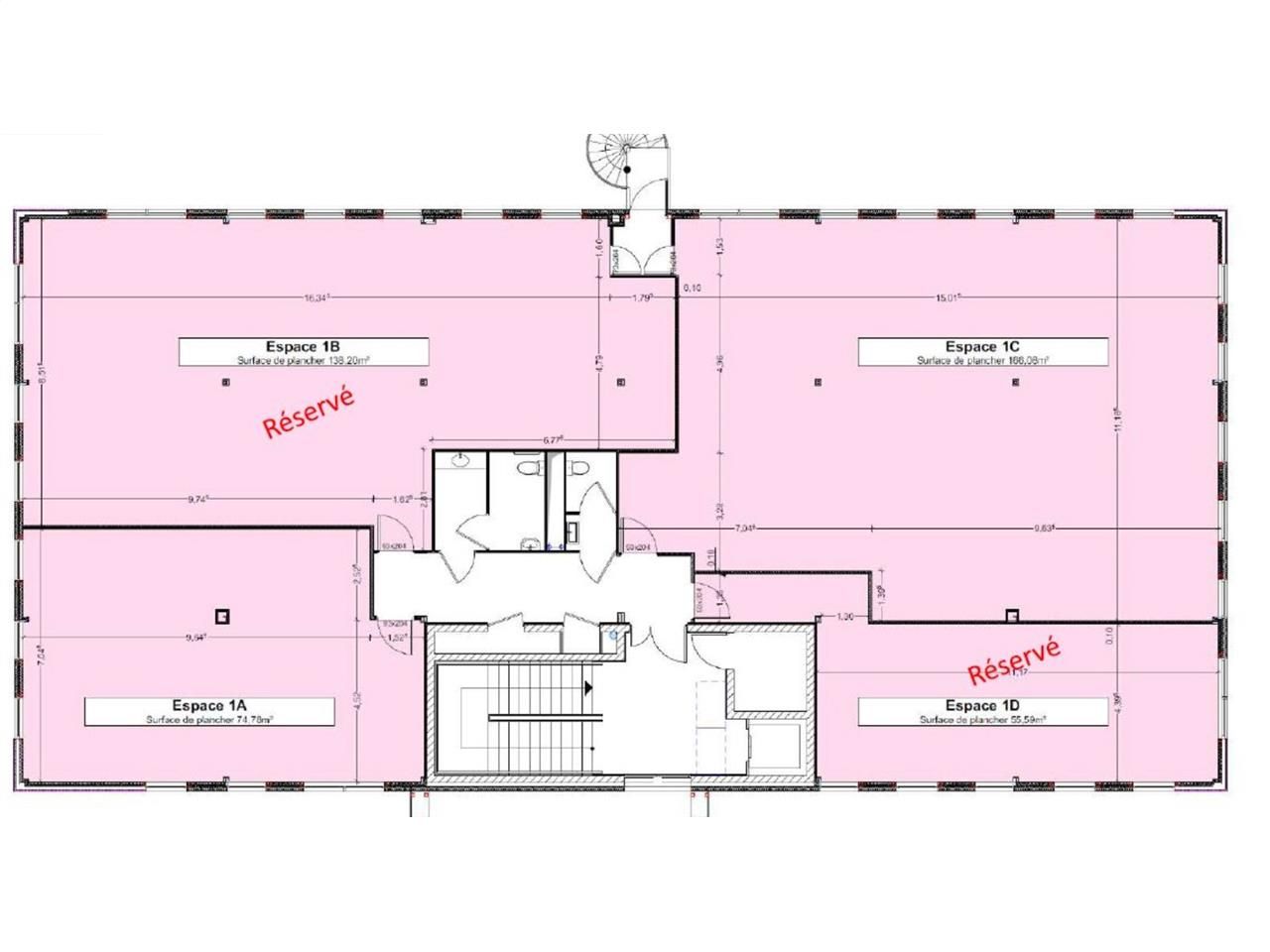
| Étage | Type | Surfaces | Dispo | Prix(m²) | Charges | Honoraires | Fiscal |
|---|---|---|---|---|---|---|---|
| 1 | Bureaux | 166,08 | Immédiate | 2525 m² HD | n.c. | A la charge de l'acquéreur | T.V.A. |
Régime Fiscal : T.V.A.
Honoraires : A la charge de l'acquéreur
Prestations :
- Fibre optique
- Climatisation réversible
- Ascenseur
- Les lots du R+1 sont mutualisables (prix de vente différents)
- Un local vélos de 42 m2
- 22 places de stationnement dont 1 place avec borne de recharge électrique
- Parkings couverts: 6.000 euros /unité HT
- Parkings aériens: 3.000 euros /unité HT
- Parking électrifié: 14.000 euros HT
Accessibilité:
Bus Ligne 26 - Arrêt "Grande Semaine"
Bus Ligne 39 - Arrêt "Aéroparc"
Aeroport Bordeaux-Mérignac à 3,3km
Les informations sur les risques auxquels ce bien est exposé sont disponibles sur le site Géorisques : www.georisques.gouv.fr
Emplacement(s) de Parking: 22 places
Voir plus
Afficher les consommations énergétiques
Favoris
Exporter
Appeler
Contacter
Signaler cette annonce










