L’agence CBRE Marseille conseille et accompagne les chefs d’entreprise dans leurs projets immobiliers quels que soient leur taille et leur secteur d’activité. Spécialistes de la transaction de bure ...
En savoir plus

234 m²
Bureau à vendre - 234 m²
Marseille 15 (13015)
Dernière mise à jour : Il y a 2 jours
BUREAUX A VENDRE OU A LOUER - CITE DE LA COSMETIQUE - 13015 MARSEILLE : CBRE vous propose une surface de bureaux située en ZFU, dans la Cité de la Cosmétique dans un immeuble de très bonne facture bâti en 2008. La plateau rationnel est actuellement cloisonné avec du vitrage d'excellente qualité et offre une vue exceptionnelle sur la rade de Marseille.
CBRE CONSEIL ET TRANSACTION vous propose en ZFU, une surface de 233.88 m² environ avec parkings.
N'hésitez pas à nous contacter pour découvrir ces bureaux.
CBRE leader mondial en Immobilier d'entreprise est à votre disposition pour vous accompagner dans tous vos projets immobiliers grâce à sa palette de métiers permettant de répondre à toutes problématiques immobilières de la valorisation, en passant par la gestion et la commercialisation à la rénovation.
Impôt Foncier : 829 €/HT/An
Régime Fiscal : Droits d'enregistrement
Dépôt de garantie : 3 mois de loyer HT/HC
Paiement Loyer : trimestriel
Honoraires : A la charge de l'acquéreur : 3 % HT du prix de vente HD + TVA 20 %
Taxe Bureau : 0,99 €/m²/an
Prestations :
Accessibilité:
Transilien St-Louis les Aygalades (SNCF)
Aeroport A 15 minutes de l'Aéroport Marseille Provence
SNCF A 10 minutes de la gare TGV St Charles
Bus à proximité
Autoroute Accès directs à l'autoroute A55 - A7
Metro à proximité
Les informations sur les risques auxquels ce bien est exposé sont disponibles sur le site Géorisques : www.georisques.gouv.fr
CBRE CONSEIL ET TRANSACTION vous propose en ZFU, une surface de 233.88 m² environ avec parkings.
N'hésitez pas à nous contacter pour découvrir ces bureaux.
CBRE leader mondial en Immobilier d'entreprise est à votre disposition pour vous accompagner dans tous vos projets immobiliers grâce à sa palette de métiers permettant de répondre à toutes problématiques immobilières de la valorisation, en passant par la gestion et la commercialisation à la rénovation.
| Étage | Type | Surfaces | Dispo | Prix(m²) | Charges | Honoraires | Fiscal |
|---|---|---|---|---|---|---|---|
| 2 | Bureaux | 233,88 | Immédiate | n.c. | 17,25 m²/an HT | A la charge de l'acquéreur : 3 % HT du prix de vente HD + TVA 20 % | Droits d'enregistrement |
| SS | Parkings | Immédiate | n.c. | n.c. | A la charge de l'acquéreur : 3 % HT du prix de vente HD + TVA 20 % | Droits d'enregistrement | |
| SS | Parkings | Immédiate | n.c. | n.c. | A la charge de l'acquéreur : 3 % HT du prix de vente HD + TVA 20 % | Droits d'enregistrement | |
| Parkings | Immédiate | n.c. | n.c. | A la charge de l'acquéreur : 3 % HT du prix de vente HD + TVA 20 % | Droits d'enregistrement |
Impôt Foncier : 829 €/HT/An
Régime Fiscal : Droits d'enregistrement
Dépôt de garantie : 3 mois de loyer HT/HC
Paiement Loyer : trimestriel
Honoraires : A la charge de l'acquéreur : 3 % HT du prix de vente HD + TVA 20 %
Taxe Bureau : 0,99 €/m²/an
Prestations :
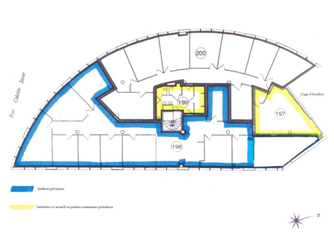
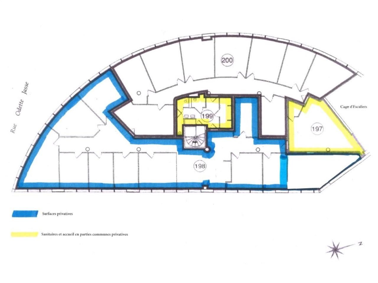
- Surface incluant 13.39 m² de QP du lot indivis N°197 (accueil) et 10.15 m² de QP du lot indivis N°199 (sanitaires et local technique)
- Ascenseur
- Accès PMR
- Salle de réunion
- Parking
- Double vitrage
- Climatisation réversible
- Faux Plafond
- Vue exceptionnelle sur la rade de Marseille depuis certains bureaux
- Site sécurisé
- jardin zen
- Restaurant sur site
- Etat du bien :
- Très bon état
- ZFU
- Espace extérieur
- Surface RDC : 0 m²
Accessibilité:
Transilien St-Louis les Aygalades (SNCF)
Aeroport A 15 minutes de l'Aéroport Marseille Provence
SNCF A 10 minutes de la gare TGV St Charles
Bus à proximité
Autoroute Accès directs à l'autoroute A55 - A7
Metro à proximité
Les informations sur les risques auxquels ce bien est exposé sont disponibles sur le site Géorisques : www.georisques.gouv.fr
Voir plus
Afficher les consommations énergétiques
Favoris
Exporter
Appeler
Contacter
Signaler cette annonce










