MALSH Realty accompagne les entreprises dans leurs projets immobiliers, qu’il s’agisse de locaux d’activités, de bureaux, de commerces, d’entrepôts ou de terrains. L’agence intervient aussi bien au ...
En savoir plus

163 m²
Bureau à vendre - 163 m²
Lyon 3 (69003)
Dernière mise à jour : Hier
Bureaux à LYON 3 - A VENDRE OU A LOUER - 163 m²
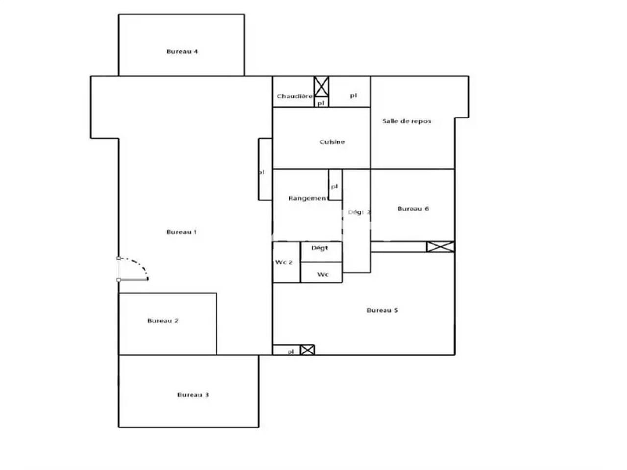
Nous vous proposons à la vente ou à la location, au pied d'une résidence calme à proximité immédiate de la gare de la Part Dieu, des bureaux d'une surface d'environ 163,40 m² avec ses 2 stationnements extérieurs privatifs.
Vente ou Location Bureaux - Lyon 3ème (69003) - 163 m²
Impôt Foncier : 2783 €/
Régime Fiscal : Droits d'enregistrement
Dépôt de garantie : 3 mois de loyer HT/HC
Honoraires : 2,5 % HT du montant de la vente HDE, à la charge de l'acquéreur
Prestations :
Accessibilité:
SNCF Lyon-Part-Dieu (France)
Métro Ligne B - Gare Part Dieu
Tram Lignes T1, T3 et T4
Bus Lignes 25, 27, 38 et 70
Les informations sur les risques auxquels ce bien est exposé sont disponibles sur le site Géorisques : www.georisques.gouv.fr
Nous vous proposons à la vente ou à la location, au pied d'une résidence calme à proximité immédiate de la gare de la Part Dieu, des bureaux d'une surface d'environ 163,40 m² avec ses 2 stationnements extérieurs privatifs.
Vente ou Location Bureaux - Lyon 3ème (69003) - 163 m²
| Étage | Type | Surfaces | Dispo | Prix(m²) | Charges | Honoraires | Fiscal |
|---|---|---|---|---|---|---|---|
| RDC | Bureaux | 163,4 | Immédiate | 3000 m² HD | n.c. | 2,5 % HT du montant de la vente HDE, à la charge de l'acquéreur | Droits d'enregistrement |
| Parkings | Immédiate | 15000 m² HD | n.c. | 2,5 % HT du montant de la vente HDE, à la charge de l'acquéreur | Droits d'enregistrement |
Impôt Foncier : 2783 €/
Régime Fiscal : Droits d'enregistrement
Dépôt de garantie : 3 mois de loyer HT/HC
Honoraires : 2,5 % HT du montant de la vente HDE, à la charge de l'acquéreur
Prestations :
- Cloisonnement vitré sur allège
- Sol moquette
- Faux plafond dalles avec pavés néons
- Climatisation réversible
- Baie de brassage, réseau déployé, Fibre
- Chauffage individuel gaz
- Volets électriques roulants sur l'ensemble des surfaces vitrées
- Locaux traversants
- Entrée directe dans le local
- Grand open space
- 4 bureaux fermés
- Kitchenette
- Sanitaires privatifs
- 2 caves en sous-sol
Accessibilité:
SNCF Lyon-Part-Dieu (France)
Métro Ligne B - Gare Part Dieu
Tram Lignes T1, T3 et T4
Bus Lignes 25, 27, 38 et 70
Les informations sur les risques auxquels ce bien est exposé sont disponibles sur le site Géorisques : www.georisques.gouv.fr
Voir plus
Afficher les consommations énergétiques
Localisation et transport aux alentours
Favoris
Exporter
Appeler
Contacter
Signaler cette annonce










