Société de conseil immobilier implantée sur Lyon et Paris, Sorovim accompagne particuliers et professionnels dans leurs projets de vente, d’acquisition, d’investissement et d’estimation de bien.Sor ...
En savoir plus

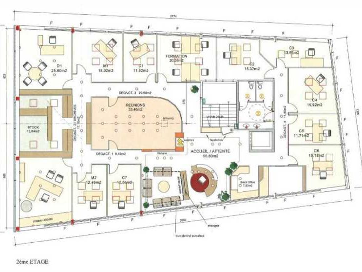
426 m² divisible dès 176 m²
LE ROND POINT - Bureau à vendre - 426 m²
Dardilly (69570)
Dernière mise à jour : Il y a 6 mois
A vendre Dardilly bureaux de 426m² divisibles à partir de 176m² avec une belle visibilité
Immeuble LE ROND POINT
A Dardilly, à proximité immédiate de l'autoroute M6, des bureaux de 426m² divisibles à partir de 176m² avec une très belle visibilité sont proposés à la vente. Ils se trouvent au dernier étage d'un immeuble sécurisé, avec un ascenseur privatif et bénéficient de prestations de qualité. Possibilité de 2 enseignes lumineuses en toiture.
Impôt Foncier : 12,6 €/m²/an
Régime Fiscal : Droits d'enregistrement
Honoraires : 2.5% HT du prix de vente HD, en sus, à la charge de l'acquéreur
Prestations :
Accessibilité:
Route Accès direct M6/TEO
SNCF Gare TGV Part-Dieu : 20 min. environ
Bus Bus au pied de l'immeuble : lignes N°6 et 89 (Techlid/gare de Vaise) arrêt Technoparc
Les informations sur les risques auxquels ce bien est exposé sont disponibles sur le site Géorisques : www.georisques.gouv.fr
Immeuble LE ROND POINT
A Dardilly, à proximité immédiate de l'autoroute M6, des bureaux de 426m² divisibles à partir de 176m² avec une très belle visibilité sont proposés à la vente. Ils se trouvent au dernier étage d'un immeuble sécurisé, avec un ascenseur privatif et bénéficient de prestations de qualité. Possibilité de 2 enseignes lumineuses en toiture.
| Étage | Type | Surfaces | Dispo | Prix(m²) | Charges | Honoraires | Fiscal |
|---|---|---|---|---|---|---|---|
| 2 | Bureaux | 250 | 2500 HD/m² | 25 HT/m²/an | 2.5% HT du prix de vente HD, en sus, à la charge de l'acquéreur | Droits d'enregistrement | |
| 2 | Bureaux | 176 | 2500 HD/m² | 25 HT/m²/an | 2.5% HT du prix de vente HD, en sus, à la charge de l'acquéreur | Droits d'enregistrement |
Impôt Foncier : 12,6 €/m²/an
Régime Fiscal : Droits d'enregistrement
Honoraires : 2.5% HT du prix de vente HD, en sus, à la charge de l'acquéreur
Prestations :
- Immeuble de bureaux de 2007 avec accès sécurisé, digicode et interphone
- Alarme anti intrusions et porte blindée
- Seul sur son palier avec ascenseur sécurisé et privatif
- Bureaux cloisonnés et aménagés, bureaux et grande salle de réunion
- Cloisons amovibles toute hauteur ou vitrées
- Accueil, salle d'archives, cuisine
- Placards sur mesure intégrés
- Faux plafonds
- Parquet
- Rafraichissement d'air réversible commun avec une gestion individuelle
- Tableau électrique neuf
- Câblage RJ45 et baie de brassage
- Fibre optique
- Fenêtres oscillo battantes avec stores électriques
- Enseignes lumineuses
- Sanitaires privatifs
- 5 places de parkings sous pilotis
- 5 places de parkings aériens
Accessibilité:
Route Accès direct M6/TEO
SNCF Gare TGV Part-Dieu : 20 min. environ
Bus Bus au pied de l'immeuble : lignes N°6 et 89 (Techlid/gare de Vaise) arrêt Technoparc
Les informations sur les risques auxquels ce bien est exposé sont disponibles sur le site Géorisques : www.georisques.gouv.fr
Voir plus
Afficher les consommations énergétiques
Localisation et transport aux alentours
Favoris
Exporter
Appeler
Contacter
Signaler cette annonce










