MCarré Conseil est une agence spécialiste de l'immobilier d’entreprise du sud de l’Île-de-France (en Essonne et dans le sud de la Seine-et-Marne et du Val-De-Marne). Elle vous accompagne à chaque é ...
En savoir plus

193 m²
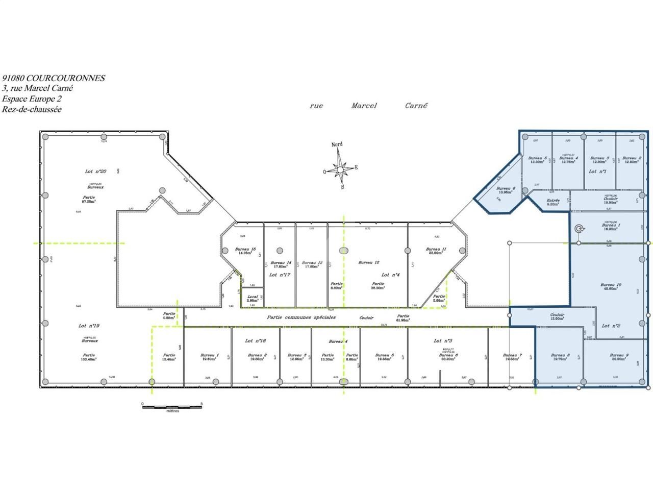
Bureau à vendre - 193 m²
Courcouronnes (91080)
Dernière mise à jour : Hier
A proximité du Centre Commercial Evry 2, dans un immeuble de bon standing, nous vous proposons à la vente un plateau de bureaux d'environ 193 m² en rez-de-chaussée.
Impôt Foncier : 5912 €/HT/an
Régime Fiscal : Droits de mutation
Prestations :
Accessibilité:
Autoroute Autoroute A6
Route Nationale 104 Francilienne
Route Nationale 7
RER Evry-Courcouronnes (Ligne D)
Tram Évry - Courcouronnes (Ligne T12)
Bus Jean Renoir (Ligne 402)
Les informations sur les risques auxquels ce bien est exposé sont disponibles sur le site Géorisques : www.georisques.gouv.fr
| Étage | Type | Surfaces | Dispo | Prix(m²) | Charges | Honoraires | Fiscal |
|---|---|---|---|---|---|---|---|
| Rdc | Bureaux | 193,45 | Immédiate | 1550,79 m² HD | 49,4 HT/m²/an | Droits de mutation | |
| Parkings | n.c. | n.c. | Droits de mutation |
Impôt Foncier : 5912 €/HT/an
Régime Fiscal : Droits de mutation
Prestations :
- Chauffage urbain
- Contrôle d'accès
- Chauffage urbain collectif
- Porte de livraison
- Surface RDC : 193,45 m²
Accessibilité:
Autoroute Autoroute A6
Route Nationale 104 Francilienne
Route Nationale 7
RER Evry-Courcouronnes (Ligne D)
Tram Évry - Courcouronnes (Ligne T12)
Bus Jean Renoir (Ligne 402)
Les informations sur les risques auxquels ce bien est exposé sont disponibles sur le site Géorisques : www.georisques.gouv.fr
Emplacement(s) de Parking: 3 extérieur(s)
Voir plus
Afficher les consommations énergétiques
Localisation et transport aux alentours
Favoris
Exporter
Appeler
Contacter
Signaler cette annonce










