Spécialiste des biens d’immobilier d’entreprise en Île-de-France Est, SERGIC Immobilier Tertiaire et Commercial propose bureaux, locaux d’activité et commerces adaptés aux besoins des entreprises e ...
En savoir plus

665 m²
Bureau à vendre - 665 m²
Champs-sur-Marne (77420)
Dernière mise à jour : Hier
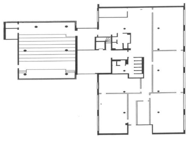
VENTE BUREAUX 665 m² AVEC AMPHITHEATRE DE 120 places A CHAMPS SUR MARNE
SERGIC IMMOBILIER TERTIAIRE ET COMMERCIAL vous propose dans un immeuble de standing, un plateau de bureaux/salle de cours et un amphithéâtre climatisé de 120 places en rez-de-chaussée avec 20 emplacements de parkings aériens. Normé PMR et ERP. Sanitaires privatifs.
Des bureaux au coeur du centre d'affaires de Marne La Vallée et du Grand Paris.
Dans un remarquable environnement boisé, le Parc Descartes Nobel accueille de nombreux établissements universitaires d'une architecture de haut niveau (école des Ponts et Chaussée, Ecole d'architecture, ESIEE...). Cette ambiance est propice à l'implantation d'entreprises dynamiques et innovantes souhaitant valoriser leur image.
Accessible en voiture par l'autoroute A4, en RER A ou en bus, sa desserte sera encore renforcée par le Grand Paris Express, dont les futures lignes 15, 16 et le prolongement de la 11 auront un arrêt à la gare de Noisy-Champs. Desservie aujourd'hui par 6 lignes de bus de la RATP : 212, 213, 220, 312, 320 et 100.
Le prix de vente s'entend en EUR HT hors frais de notaire et hors frais d'agence.
Les honoraires d'agence : 5 % du prix de vente HT à la charge de l'Acquéreur.
Pour de plus amples renseignements, merci de contacter SERGIC IMMOBILIER TERTIAIRE ET COMMERCIAL votre conseillère Sandra LEMAITRE au 01 89 43 17 81.
Prestations :
- Année de construction : 2002
- Brique et béton
-
- Accès sécurisé - digicode
- Fibre optique
- Parties communes refaits à neuf en 2019
- Restauration à proximité
-
- État des locaux : Bon état
- Bureaux lumineux,
- Plinthes en périphérique avec prises de courant et RJ45,
- Convecteurs électrique,
- Double vitrage,
- Volets roulants,
- Sanitaires privatifs,
- Fibre optique.
- Bâtiment de plain-pied
Tableau de Surfaces :
Accessibilité :
bus
SERGIC IMMOBILIER TERTIAIRE ET COMMERCIAL vous propose dans un immeuble de standing, un plateau de bureaux/salle de cours et un amphithéâtre climatisé de 120 places en rez-de-chaussée avec 20 emplacements de parkings aériens. Normé PMR et ERP. Sanitaires privatifs.
Des bureaux au coeur du centre d'affaires de Marne La Vallée et du Grand Paris.
Dans un remarquable environnement boisé, le Parc Descartes Nobel accueille de nombreux établissements universitaires d'une architecture de haut niveau (école des Ponts et Chaussée, Ecole d'architecture, ESIEE...). Cette ambiance est propice à l'implantation d'entreprises dynamiques et innovantes souhaitant valoriser leur image.
Accessible en voiture par l'autoroute A4, en RER A ou en bus, sa desserte sera encore renforcée par le Grand Paris Express, dont les futures lignes 15, 16 et le prolongement de la 11 auront un arrêt à la gare de Noisy-Champs. Desservie aujourd'hui par 6 lignes de bus de la RATP : 212, 213, 220, 312, 320 et 100.
Le prix de vente s'entend en EUR HT hors frais de notaire et hors frais d'agence.
Les honoraires d'agence : 5 % du prix de vente HT à la charge de l'Acquéreur.
Pour de plus amples renseignements, merci de contacter SERGIC IMMOBILIER TERTIAIRE ET COMMERCIAL votre conseillère Sandra LEMAITRE au 01 89 43 17 81.
Prestations :
- Année de construction : 2002
- Brique et béton
-
- Accès sécurisé - digicode
- Fibre optique
- Parties communes refaits à neuf en 2019
- Restauration à proximité
-
- État des locaux : Bon état
- Bureaux lumineux,
- Plinthes en périphérique avec prises de courant et RJ45,
- Convecteurs électrique,
- Double vitrage,
- Volets roulants,
- Sanitaires privatifs,
- Fibre optique.
- Bâtiment de plain-pied
Tableau de Surfaces :
| Etage | Type de bien | Surface | Dispo | |
| RDC | Locaux d"enseignement | 665 m² | Immédiate |
Accessibilité :
bus
20 parking(s) extérieur
Voir plus
Afficher les consommations énergétiques
Localisation et transport aux alentours
Favoris
Exporter
Appeler
Contacter
Signaler cette annonce










