L’agence CBRE Bordeaux conseille et accompagne les chefs d’entreprise dans leurs projets immobiliers quels que soient leur taille et leur secteur d’activité. Spécialistes de la transaction de burea ...
En savoir plus

1 817 m² divisible dès 238 m²
Bureau à vendre - 1817 m²
Bordeaux (33000)
Dernière mise à jour : Il y a 2 mois
Au coeur du quartier central des affaires de Bordeaux Euratlantique, l'opération EXPLORE comporte un socle de bâtiment en R+2 accueillant des bureaux sur 3 niveaux (RDC, R+1, R+2). L'ensemble des espaces fonctionnels attendus d'un immeuble de bureaux modernes et efficients sont prévus : accueil, locaux supports au RDC (local vélos, locaux techniques), plateaux de bureaux du RDC au R+2 aménageables en espaces paysagers.
Cette opération tertiaire de haute qualité bénéficie d'une certification HQE Bâtiment durable.
Impôt Foncier : 17 €/m2/an HT
Régime Fiscal : T.V.A.
Honoraires : 6% HT du prix de vente HT à la charge de l'acquéreur
Prestations :
Accessibilité:
Tramway Lignes C &D - Arrêt "Carle Vernet"
Bus Ligne 20, 35 & 54 - Arrêt "Carle Vernet"
SNCF Bordeaux Saint-Jean à 2,1km
Route Rocade sortie n° 21 à 3,1km
Les informations sur les risques auxquels ce bien est exposé sont disponibles sur le site Géorisques : www.georisques.gouv.fr
Cette opération tertiaire de haute qualité bénéficie d'une certification HQE Bâtiment durable.
| Étage | Type | Surfaces | Dispo | Prix(m²) | Charges | Honoraires | Fiscal |
|---|---|---|---|---|---|---|---|
| RDC | Bureaux | 307,09 | Immédiate | 3695,98 m² HD | n.c. | 6% HT du prix de vente HT à la charge de l'acquéreur | T.V.A. |
| 1 | Bureaux | 355,16 | Immédiate | 3688,48 m² HD | n.c. | 6% HT du prix de vente HT à la charge de l'acquéreur | T.V.A. |
| 1 | Bureaux | 293,41 | Immédiate | 3680,86 m² HD | n.c. | 6% HT du prix de vente HT à la charge de l'acquéreur | T.V.A. |
| 2 | Bureaux | 317,7 | Immédiate | 3871,58 m² HD | n.c. | 6% HT du prix de vente HT à la charge de l'acquéreur | T.V.A. |
| 2 | Bureaux | 305,78 | Immédiate | 3702,01 m² HD | n.c. | 6% HT du prix de vente HT à la charge de l'acquéreur | T.V.A. |
| 2 | Bureaux | 238,27 | Immédiate | 3693,29 m² HD | n.c. | 6% HT du prix de vente HT à la charge de l'acquéreur | T.V.A. |
Impôt Foncier : 17 €/m2/an HT
Régime Fiscal : T.V.A.
Honoraires : 6% HT du prix de vente HT à la charge de l'acquéreur
Prestations :
- Code du travail
- Norme RE 2020
- Performances et labels NF HQE Bâtiment durable
- Accès PMR
- Hall d'accueil
- Contrôle d'accès possible pour chaque lots
- Ascenseur
- Open-space
- Terrasses de 40 et 45 m² attenantes aux lots 6 et 8 (R+2)
- Sanitaires privatifs avec douche
- Chauffage sur réseau urbain
- Rafraichissement sur PAC
- Eclairage Led
- Détection de présence (circulations et zones palières)
- Sols souples Moquette
- Stores screen Intérieurs ou extérieurs selon exposition
- 17 places de parking au sein de l'îlot 8.12
- Prix parkings: 19 206 euros /unité HT en sus du prix des lots
- Local Vélos
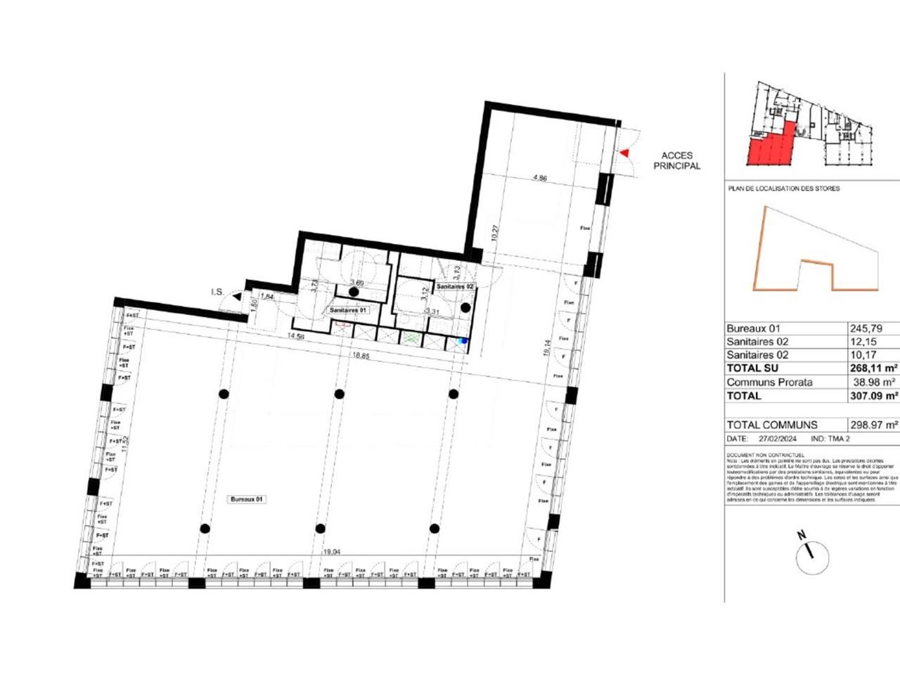
- Surface RDC : 307,09 m²
Accessibilité:
Tramway Lignes C &D - Arrêt "Carle Vernet"
Bus Ligne 20, 35 & 54 - Arrêt "Carle Vernet"
SNCF Bordeaux Saint-Jean à 2,1km
Route Rocade sortie n° 21 à 3,1km
Les informations sur les risques auxquels ce bien est exposé sont disponibles sur le site Géorisques : www.georisques.gouv.fr
Emplacement(s) de Parking: 17 places
Voir plus
Afficher les consommations énergétiques
Favoris
Exporter
Appeler
Contacter
Signaler cette annonce
