L’agence CBRE Bordeaux conseille et accompagne les chefs d’entreprise dans leurs projets immobiliers quels que soient leur taille et leur secteur d’activité. Spécialistes de la transaction de burea ...
En savoir plus

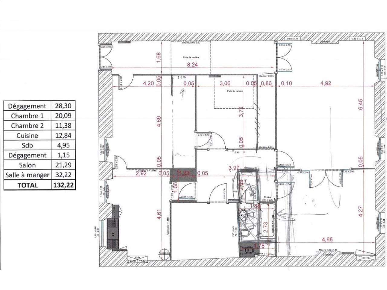
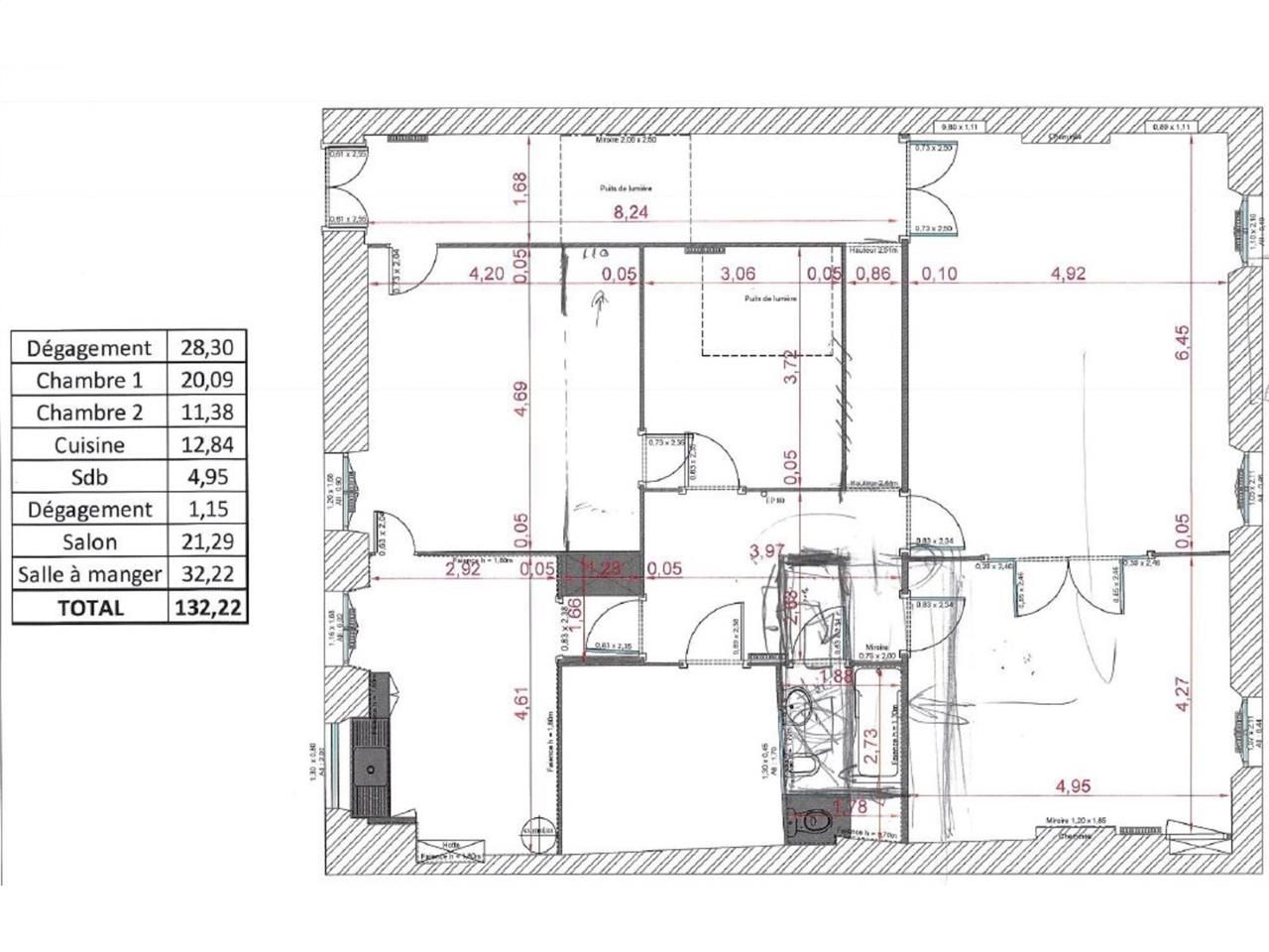
132 m²
Bureau à vendre - 132 m²
Bordeaux (33000)
Dernière mise à jour : Il y a 2 jours
CBRE vous propose une très belle opportunité à la location ou à la vente en plein centre de Bordeaux dans le triangle d'or: un plateau de bureaux de 132 m² disponible à la location. Ce bien entièrement rénové, dispose de belles prestations anciennes : parquet, moulures, belle hauteur sous plafond et cheminées. Il bénéficie également d'une excellente luminosité ainsi que d'une belle façade en pierre de taille récemment ravalée. A proximité immédiate du tramway et des commerces.
Disponible immédiatement après accord.
A visiter sans tarder !
Impôt Foncier : 15,86 €/m2/an HT
Régime Fiscal : Droits d'enregistrement
Dépôt de garantie : 3 mois de loyer HT/HC
Honoraires : A la charge de l'acquéreur
Prestations :
Accessibilité:
Bus Lignes 2, 5, 15 & 23 - Arrêt "Gambetta"
Bus Lignes G, 1, 16 & 70 - Arrêt "Gambetta-Mériadeck"
Tramway Ligne B - Arrêt "Gambetta-Madd"
Tramway Ligne A - Arrêt "Mériadeck"
SNCF Bordeaux Saint Jean à 3,5km
Route Rocade sortie n°4 à 6km
Les informations sur les risques auxquels ce bien est exposé sont disponibles sur le site Géorisques : www.georisques.gouv.fr
Disponible immédiatement après accord.
A visiter sans tarder !
| Étage | Type | Surfaces | Dispo | Prix(m²) | Charges | Honoraires | Fiscal |
|---|---|---|---|---|---|---|---|
| 3 | Bureaux | 132 | Immédiate | 6335,88 m² HD | 33,38 m²/an HT | A la charge de l'acquéreur | Droits d'enregistrement |
Impôt Foncier : 15,86 €/m2/an HT
Régime Fiscal : Droits d'enregistrement
Dépôt de garantie : 3 mois de loyer HT/HC
Honoraires : A la charge de l'acquéreur
Prestations :
- Possibilité de louer un garage fermé de 27 m² au 25 rue Gensonné et un garage fermé de 25.6 m² au 6 rue Casteja avec électricité
- Pas d'ascenseur
- Surface RDC : 0 m²
Accessibilité:
Bus Lignes 2, 5, 15 & 23 - Arrêt "Gambetta"
Bus Lignes G, 1, 16 & 70 - Arrêt "Gambetta-Mériadeck"
Tramway Ligne B - Arrêt "Gambetta-Madd"
Tramway Ligne A - Arrêt "Mériadeck"
SNCF Bordeaux Saint Jean à 3,5km
Route Rocade sortie n°4 à 6km
Les informations sur les risques auxquels ce bien est exposé sont disponibles sur le site Géorisques : www.georisques.gouv.fr
Voir plus
Afficher les consommations énergétiques
Favoris
Exporter
Appeler
Contacter
Signaler cette annonce










