L’agence CBRE Bordeaux conseille et accompagne les chefs d’entreprise dans leurs projets immobiliers quels que soient leur taille et leur secteur d’activité. Spécialistes de la transaction de burea ...
En savoir plus

2 360 m²
Bureau à vendre - 2360 m²
Bordeaux (33000)
Dernière mise à jour : Il y a 4 jours
Immeuble neuf extrêmement bien situé, à Bordeaux Bastide sur la Rive Droite, à proximité des transports (Tramway, arrêt « jardin botanique ») et commodités (hôtels, écoles, terrain de sport, commerces et services de proximité). Bâtiment indépendant de 2 360 m² disposant de nombreuses terrasses et d'un roof top accessible, ainsi que de nombreux parkings. Projet idéal pour école d'enseignement supérieur ou coworking avec une classification ERP 5 Type R visée.
Pour plus d'informations, n'hésitez pas à nous contacter au 05 33 06 27 84.
Régime Fiscal : T.V.A.
Dépôt de garantie : 3 mois de loyer HT/HC
Honoraires : inclus au prix de vente (1,5 % HT) à la charge de l'acquéreur
Prestations :
Accessibilité:
SNCF Bordeaux Saint-Jean à 3,4 km
Tramway Ligne A - Arrêt "Jardin Botanique"
Bus Lignes 25 & 61 - Arrêt "Jardin Botanique"
Les informations sur les risques auxquels ce bien est exposé sont disponibles sur le site Géorisques : www.georisques.gouv.fr
Pour plus d'informations, n'hésitez pas à nous contacter au 05 33 06 27 84.
| Étage | Type | Surfaces | Dispo | Prix(m²) | Charges | Honoraires | Fiscal |
|---|---|---|---|---|---|---|---|
| RDC | Bureaux | 165 | 24 mois ap. déb. trx | 3500 m² HD | n.c. | inclus au prix de vente (1,5 % HT) à la charge de l'acquéreur | T.V.A. |
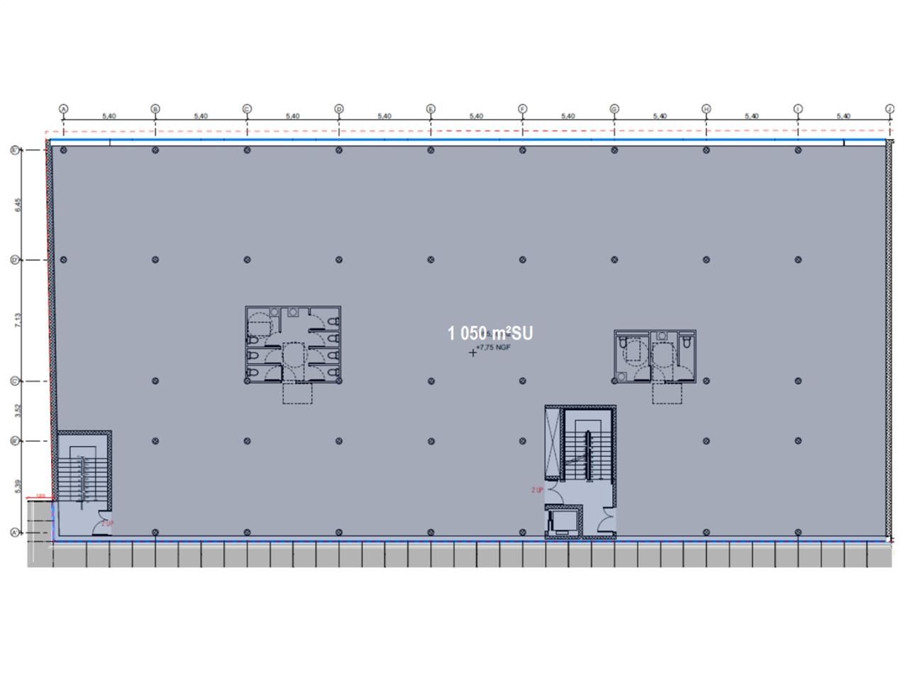
| 1 | Bureaux | 1050 | 24 mois ap. déb. trx | 3500 m² HT | n.c. | inclus au prix de vente (1,5 % HT) à la charge de l'acquéreur | T.V.A. |
| 2 | Bureaux | 744 | 24 mois ap. déb. trx | 3500 m² HD | n.c. | inclus au prix de vente (1,5 % HT) à la charge de l'acquéreur | T.V.A. |
| 3 | Bureaux | 401 | 24 mois ap. déb. trx | 3500 m² HD | n.c. | inclus au prix de vente (1,5 % HT) à la charge de l'acquéreur | T.V.A. |
Régime Fiscal : T.V.A.
Dépôt de garantie : 3 mois de loyer HT/HC
Honoraires : inclus au prix de vente (1,5 % HT) à la charge de l'acquéreur
Prestations :
- RE 2020
- Immeuble ERP 5 Type R à l'exception des toits terrasses
- Contrôle d'accès par badge
- Ascenseurs
- Escaliers
- Climatisation réversible
- Faux plafonds
- Moquette
- 642 m² d'espaces extérieurs pondérés à 30 % (192,6 m² à rajouter à la surface)
- Parking vélos
- 41 places couvertes au RDC dédiés aux bureaux
- Bornes IRVE : 10 places à prééquiper avec chemin de câbles" en fond de place + 1 borne 11 kW installée
- Vente places de parking : 19 820 euros /unité HT
- Location places de parking : 1 100 euros /unité /an HT HC
- Surface RDC : 165 m²
Accessibilité:
SNCF Bordeaux Saint-Jean à 3,4 km
Tramway Ligne A - Arrêt "Jardin Botanique"
Bus Lignes 25 & 61 - Arrêt "Jardin Botanique"
Les informations sur les risques auxquels ce bien est exposé sont disponibles sur le site Géorisques : www.georisques.gouv.fr
Voir plus
Afficher les consommations énergétiques
Favoris
Exporter
Appeler
Contacter
Signaler cette annonce










