RCG Bordeaux est un cabinet de conseil en immobilier d'entreprise est située au cœur du quartier des Chartrons au 107 cours Balguerie Stuttenberg à Bordeaux. Cette agence propose un large choix de ...
En savoir plus

830 m²
Bureau à vendre - 830 m²
Bordeaux (33000)
Dernière mise à jour : Il y a 2 jours
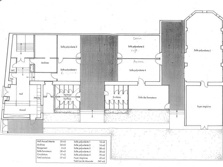
A VENDRE - BUREAUX DE 830 M² ERP 5 - BORDEAUX BARRIERE DU MEDOC
A proximité du tram D arrêt "Barrière du Médoc", RCG vous propose à la vente un immeuble de bureaux indépendant de 830 m² environ classé ERP 5.
Accueil, bureaux cloisonnés, salles de réunion.
Double vitrage, chauffage électrique et climatisation réversible sur une partie des locaux.
L'immeuble dispose également d'une dépendance exploitée en bureaux.
Espace extérieur avec double accès : possibilité de créer du parking.
Impôt Foncier : 8955 €/an
Régime Fiscal : Droits d'enregistrement
Honoraires : 5% HT du prix de vente HD à la charge de l'acquéreur
Prestations :
Accessibilité:
Bus Barrière du Médoc (Bd Pierre 1Er) (Ligne 9, Ligne 29), Labottière (Ligne 12, Ligne 26)
Tram Barrière du Médoc (Ligne D)
Les informations sur les risques auxquels ce bien est exposé sont disponibles sur le site Géorisques : www.georisques.gouv.fr
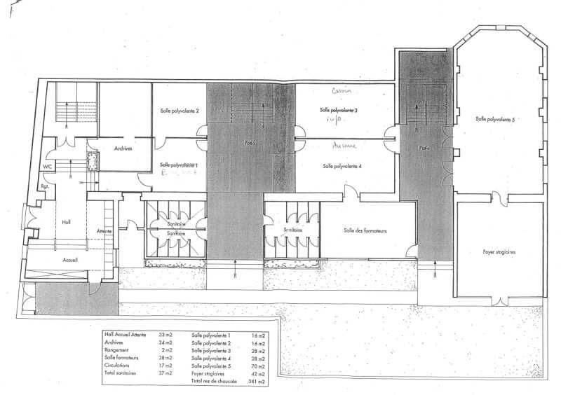
A proximité du tram D arrêt "Barrière du Médoc", RCG vous propose à la vente un immeuble de bureaux indépendant de 830 m² environ classé ERP 5.
Accueil, bureaux cloisonnés, salles de réunion.
Double vitrage, chauffage électrique et climatisation réversible sur une partie des locaux.
L'immeuble dispose également d'une dépendance exploitée en bureaux.
Espace extérieur avec double accès : possibilité de créer du parking.
| Étage | Type | Surfaces | Dispo | Prix(m²) | Charges | Honoraires | Fiscal |
|---|---|---|---|---|---|---|---|
| R+2 | Bureaux | 830 | 3 mois après accord | 2891,57 m² HD | n.c. | 5% HT du prix de vente HD à la charge de l'acquéreur | Droits d'enregistrement |
Impôt Foncier : 8955 €/an
Régime Fiscal : Droits d'enregistrement
Honoraires : 5% HT du prix de vente HD à la charge de l'acquéreur
Prestations :
- Immeuble indépendant
- ERP catégorie 5
- Accueil
- Bureaux cloisonnés
- Salles de réunion
- Baie de brassage
- Câblage RJ45
- Double vitrage
- Climatisation réversible sur une partie du bâtiment
- Chauffage électrique
- Sol moquette
- Faux plafonds
- Espace extérieur avec accès voiture
Accessibilité:
Bus Barrière du Médoc (Bd Pierre 1Er) (Ligne 9, Ligne 29), Labottière (Ligne 12, Ligne 26)
Tram Barrière du Médoc (Ligne D)
Les informations sur les risques auxquels ce bien est exposé sont disponibles sur le site Géorisques : www.georisques.gouv.fr
Voir plus
Afficher les consommations énergétiques
Favoris
Exporter
Appeler
Contacter
Signaler cette annonce










