L’agence CBRE Bordeaux conseille et accompagne les chefs d’entreprise dans leurs projets immobiliers quels que soient leur taille et leur secteur d’activité. Spécialistes de la transaction de burea ...
En savoir plus

555 m² divisible dès 156 m²
Bureau à vendre - 555 m²
Artigues-près-Bordeaux (33370)
Dernière mise à jour : Il y a 1 an
A VENDRE, plateaux de bureaux neufs au sein d'un immeuble idéalement situé sur Artigues-près-Bordeaux, avec accès immédiat à la rocade bordelaise. Espaces livrés bruts, à aménager selon les besoins de l'acquéreur. Environnement professionnel dynamique, places de parking privatives pour chaque lot. Frais de notaire réduits.
Régime Fiscal : T.V.A.
Honoraires : 5% HT du prix de vente HT à la charge de l'acquéreur
Prestations :
Accessibilité:
Bus Lignes n° 27 et 54
Tramway Ligne A arrêt "Marègue"
Les informations sur les risques auxquels ce bien est exposé sont disponibles sur le site Géorisques : www.georisques.gouv.fr
| Étage | Type | Surfaces | Dispo | Prix(m²) | Charges | Honoraires | Fiscal |
|---|---|---|---|---|---|---|---|
| 3 | Bureaux | 212 | Immédiate | 2100,31 m² HT | n.c. | 5% HT du prix de vente HT à la charge de l'acquéreur | T.V.A. |
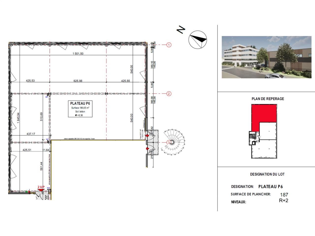
| 2 | Bureaux | 187 | Immédiate | 2081,02 m² HT | n.c. | 5% HT du prix de vente HT à la charge de l'acquéreur | T.V.A. |
| 2 | Bureaux | 156 | Immédiate | 2176,92 m² HT | n.c. | 5% HT du prix de vente HT à la charge de l'acquéreur | T.V.A. |
Régime Fiscal : T.V.A.
Honoraires : 5% HT du prix de vente HT à la charge de l'acquéreur
Prestations :
- Bâtiment de bureaux en R+4
- Classement en code du travail
- Bureaux vendus buts, fluides en attente
- Sol béton
- Fibre optique
- Châssis vitrés
- Site clos avec portail coulissant motorisé
- Entrée via digicode
- Ascenseur
- Abris vélos
- Eclairage extérieur
- Places de parking privatives pour chaque lot
Accessibilité:
Bus Lignes n° 27 et 54
Tramway Ligne A arrêt "Marègue"
Les informations sur les risques auxquels ce bien est exposé sont disponibles sur le site Géorisques : www.georisques.gouv.fr
Voir plus
Afficher les consommations énergétiques
Favoris
Exporter
Appeler
Contacter
Signaler cette annonce



