L’agence CBRE Lille conseille et accompagne les chefs d’entreprise dans leurs projets immobiliers quels que soient leur taille et leur secteur d’activité. Spécialistes de la transaction de bureaux, ...
En savoir plus

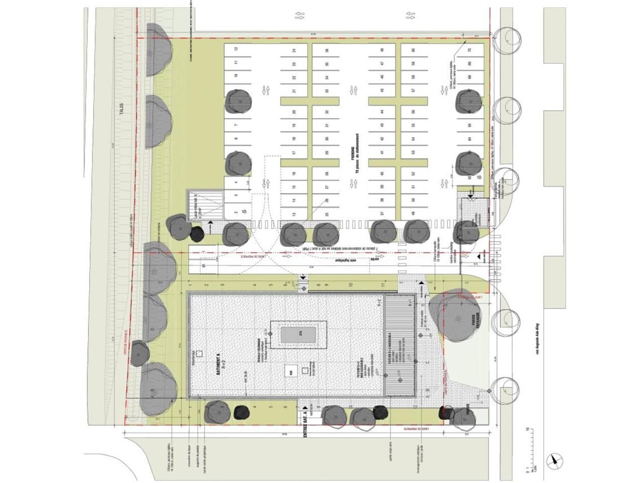
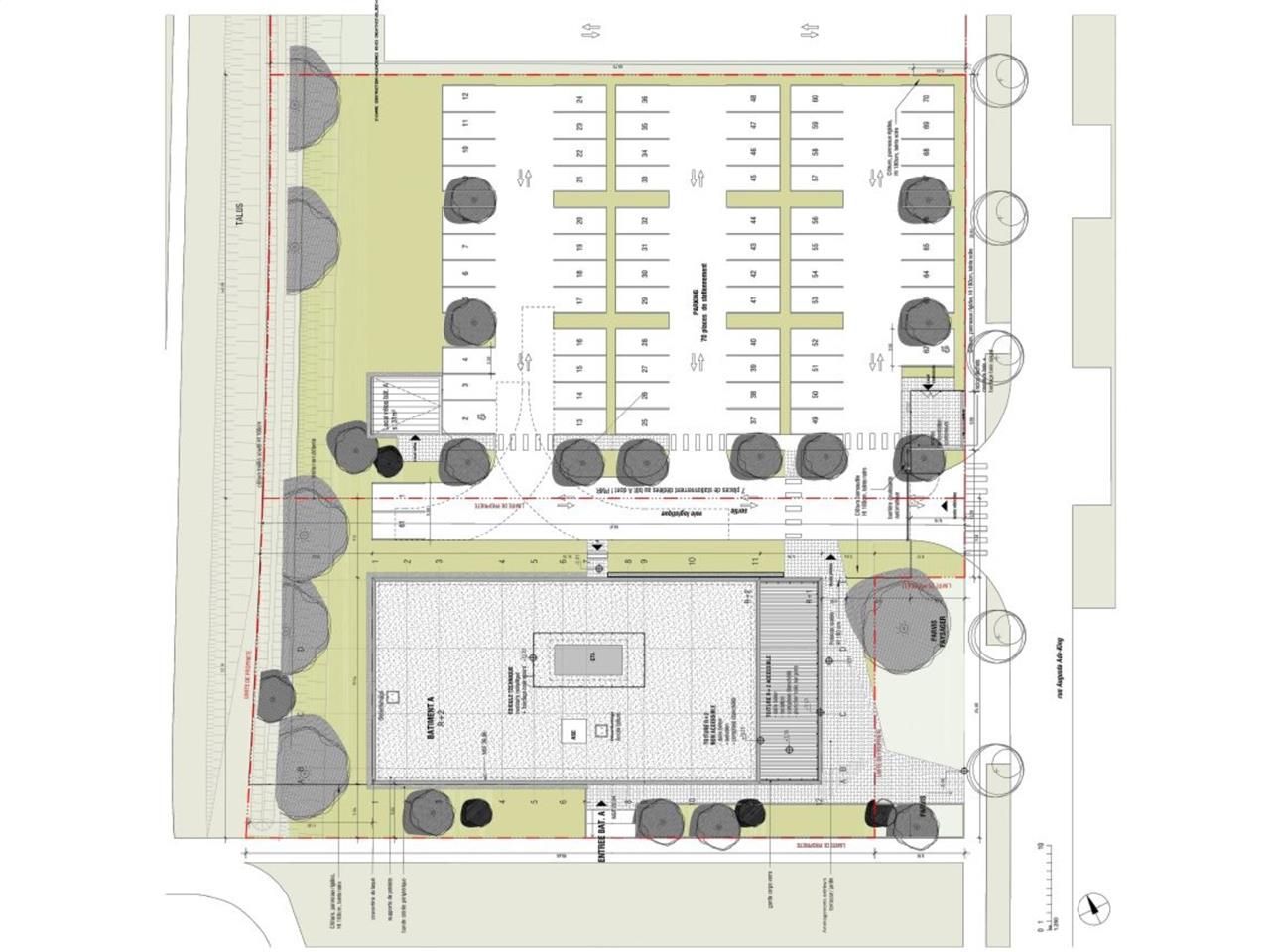
1 682 m² divisible dès 299 m²
Bureau à vendre - 1682 m²
Anzin (59410)
Dernière mise à jour : Il y a 9 mois
Découvrez une opportunité au coeur de la zone des Rives Créatives à Anzin, avec un immeuble de bureaux neufs, idéalement situé au pied du tramway. Offrant des espaces lumineux, de magnifiques terrasses, et une flexibilité de location ou d'achat, cet espace est divisible à partir de 299 m². L'immeuble sera disponible au premier semestre 2024. De nombreuses places de parkings sont disponibles.
Régime Fiscal : T.V.A.
Dépôt de garantie : 3 mois de loyer HT/HC
Honoraires : 5% HT du prix de vente HT à la charge de l'acquéreur
Prestations :
Accessibilité:
Transilien Valenciennes (SNCF)
Les informations sur les risques auxquels ce bien est exposé sont disponibles sur le site Géorisques : www.georisques.gouv.fr
| Étage | Type | Surfaces | Dispo | Prix(m²) | Charges | Honoraires | Fiscal |
|---|---|---|---|---|---|---|---|
| RDC | Bureaux | 702 | 3 mois ap. acc. | 2400 m² HD | n.c. | 5% HT du prix de vente HT à la charge de l'acquéreur | T.V.A. |
| 1 | Bureaux | 299 | 3 mois ap. acc. | 2400 m² HD | n.c. | 5% HT du prix de vente HT à la charge de l'acquéreur | T.V.A. |
| 2 | Bureaux | 681 | 3 mois ap. acc. | 2400 m² HD | n.c. | 5% HT du prix de vente HT à la charge de l'acquéreur | T.V.A. |
Régime Fiscal : T.V.A.
Dépôt de garantie : 3 mois de loyer HT/HC
Honoraires : 5% HT du prix de vente HT à la charge de l'acquéreur
Prestations :
- Ascenseur
- Accès PMR-ERP
- Contrôle d'accès
- Climatisation réversible
- Faux plafond
- Fibre optique
- Open-Space
- Certification RT2012 -30%
- Terrasses :
- 15 m² au R+1
- 102 m² au R+2
- Parking : 57 places
- Loyer : 500 euros HT/U/an
- Prix de vente : 5 500 euros HT/U
- Frais de gestion : 4% du loyer annuel HT à la charge du preneur
- Surface RDC : 702 m²
Accessibilité:
Transilien Valenciennes (SNCF)
Les informations sur les risques auxquels ce bien est exposé sont disponibles sur le site Géorisques : www.georisques.gouv.fr
Voir plus
Afficher les consommations énergétiques
Favoris
Exporter
Appeler
Contacter
Signaler cette annonce



