Size Real Estate est une société de conseil en immobilier d’entreprise. Nous vous accompagnons dans tous vos projets immobiliers à Paris ou en première couronne. De la recherche de bureaux à la loc ...
En savoir plus

65 m²
Bureau à vendre - 65 m²
Paris 18 (75018)
Dernière mise à jour : Il y a 5 jours
Bureaux à vendre de 65m2
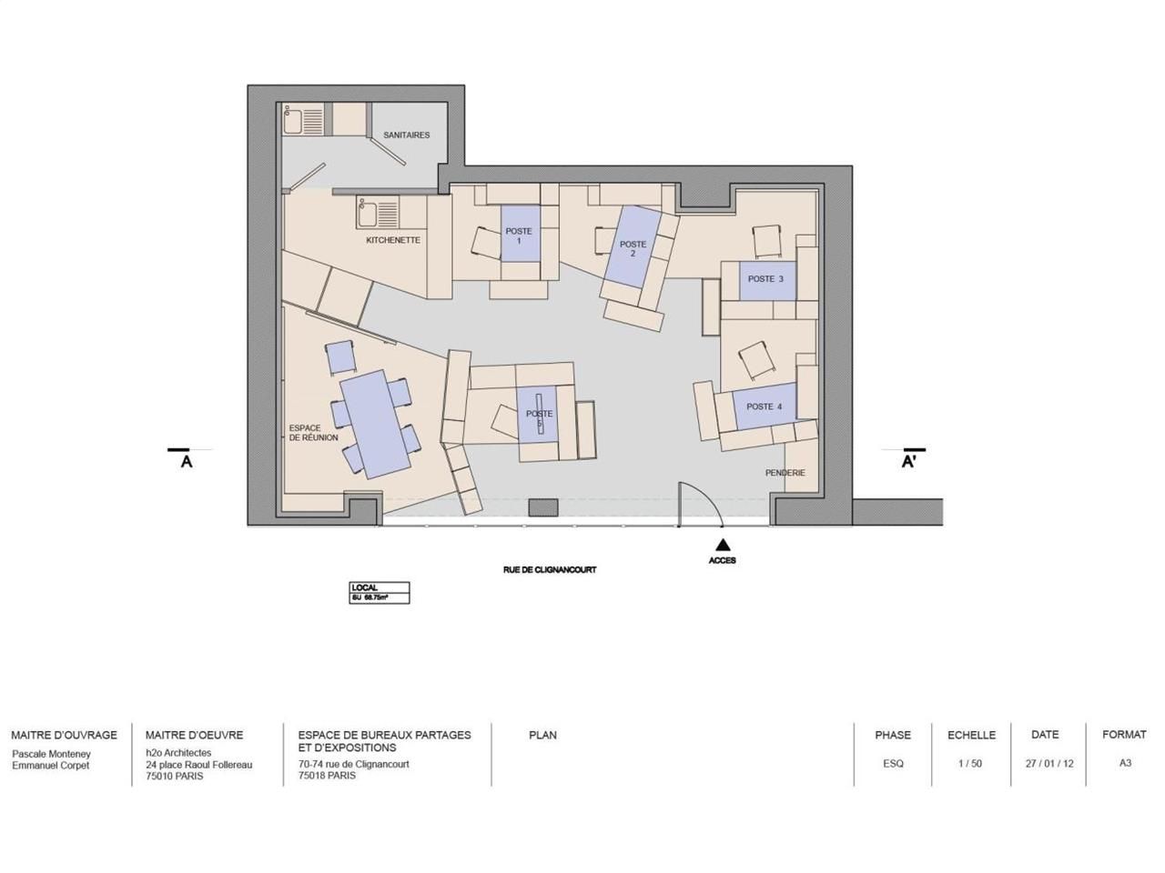
En plein coeur du 18e arrondissement, SIZE RE vous propose une belle surface de bureaux de 65m² donnant sur rue.
Avec ses 8 mètres de linéaire de vitrine, ces locaux conviendront à tout commerce de proximité idéalement situés dans un quartier dynamique et vivant.
Contactez Nicolas PILLIARD au 06.86.21.83.74 ou par mail sur [email protected]
Construction :
Date (dernière mise à jour) : 2026-03-02
Bail : Commercial 3 6 9
Honoraires / Vente: À la charge de l'acquéreur
Prestations :
- Locaux en excellent état
- 5 postes avec table et étagères intégrées / fauteuils bureau
- 1 salle de réunion de 12 m2 avec table et chaises et espaces de rangement
- 1 kitchenette avec micro-onde, frigidaire, machine à café.
- Internet fibre
- Local à vélos
- Pas d'activité avec extraction possible
Tableau de Surfaces :
Accessibilité :
Marcadet-Poissonnière (Lignes 4 et 12)
- Jules Joffrin (Ligne 12)
En plein coeur du 18e arrondissement, SIZE RE vous propose une belle surface de bureaux de 65m² donnant sur rue.
Avec ses 8 mètres de linéaire de vitrine, ces locaux conviendront à tout commerce de proximité idéalement situés dans un quartier dynamique et vivant.
Contactez Nicolas PILLIARD au 06.86.21.83.74 ou par mail sur [email protected]
Construction :
Date (dernière mise à jour) : 2026-03-02
Bail : Commercial 3 6 9
Honoraires / Vente: À la charge de l'acquéreur
Prestations :
- Locaux en excellent état
- 5 postes avec table et étagères intégrées / fauteuils bureau
- 1 salle de réunion de 12 m2 avec table et chaises et espaces de rangement
- 1 kitchenette avec micro-onde, frigidaire, machine à café.
- Internet fibre
- Local à vélos
- Pas d'activité avec extraction possible
Tableau de Surfaces :
| Etage | Type de bien | Surface | Dispo | |
| RDC | Bureaux | 65 m² | 01/04/2026 |
Accessibilité :
Marcadet-Poissonnière (Lignes 4 et 12)
- Jules Joffrin (Ligne 12)
Voir plus
Afficher les consommations énergétiques
Localisation et transport aux alentours
Favoris
Exporter
Appeler
Contacter
Signaler cette annonce










