Arthur Loyd Bretagne est une société de conseil en immobilier d'entreprise de la métropole brestoise. Spécialiste de l’immobilier d’entreprise sur le Finistère, les Côtes-d’Armor, l’Ille et Vilaine ...
En savoir plus

65 m²
Prix sur demande
Bureau à vendre - 65 m²
Auray (56400)
Dernière mise à jour : Il y a 4 jours
A VENDRE - BUREAUX DE 65 M - AURAY
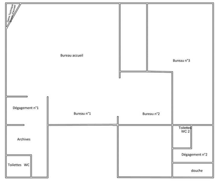
L'agence Arthur Loyd vous propose de découvrir ce bureau d'environ 65 m², idéalement situé à Auray, sur un axe passant et proche du centre-ville, avec des stationnements à proximité. Ce local, intégré dans un ensemble immobilier à usage professionnel et d'habitation, offre un cadre de travail agréable et fonctionnel, parfait pour les professionnels en quête d'un espace central, lumineux et pratique.
Surface Totale : 65 m², répartis en :
Une entrée ouvrant sur un bureau principal d'environ 20 m².
3 bureaux d'environ 10 m² chacun, ouverts sur une cour extérieure, offrant un cadre de travail lumineux et apaisant.
Un espace sanitaire pour le confort de vos équipes ou clients.
Accès : Deux accès (non PMR à ce jour, mais possibilité d'aménagement pour les rendre accessibles).
Pour plus d'informations ou pour organiser une visite, contactez-nous dès aujourd'hui !
Nous serons ravis de vous accompagner dans la découverte de ce bureau aux multiples atouts.
Impôt Foncier : 840 €/en 2024
Prestations :
Les informations sur les risques auxquels ce bien est exposé sont disponibles sur le site Géorisques : www.georisques.gouv.fr
L'agence Arthur Loyd vous propose de découvrir ce bureau d'environ 65 m², idéalement situé à Auray, sur un axe passant et proche du centre-ville, avec des stationnements à proximité. Ce local, intégré dans un ensemble immobilier à usage professionnel et d'habitation, offre un cadre de travail agréable et fonctionnel, parfait pour les professionnels en quête d'un espace central, lumineux et pratique.
Surface Totale : 65 m², répartis en :
Une entrée ouvrant sur un bureau principal d'environ 20 m².
3 bureaux d'environ 10 m² chacun, ouverts sur une cour extérieure, offrant un cadre de travail lumineux et apaisant.
Un espace sanitaire pour le confort de vos équipes ou clients.
Accès : Deux accès (non PMR à ce jour, mais possibilité d'aménagement pour les rendre accessibles).
Pour plus d'informations ou pour organiser une visite, contactez-nous dès aujourd'hui !
Nous serons ravis de vous accompagner dans la découverte de ce bureau aux multiples atouts.
| Étage | Type | Surfaces | Dispo | Prix(m²) | Charges | Honoraires | Fiscal |
|---|---|---|---|---|---|---|---|
| RDC | Bureaux | 65 | Nous consulter | n.c. | n.c. |
Impôt Foncier : 840 €/en 2024
Prestations :
- Surface RDC : 65 m²
Les informations sur les risques auxquels ce bien est exposé sont disponibles sur le site Géorisques : www.georisques.gouv.fr
Voir plus
Afficher les consommations énergétiques
Favoris
Exporter
Appeler
Contacter
Signaler cette annonce


