Pôle Implantation Entreprises est un service opérationnel dans toutes les régions de France pour accompagner les dirigeants d’entreprises dans leurs recherches immobilières, mais aussi sur l’ensemb ...
En savoir plus

60 000 m² divisible dès 1 500 m²
Prix sur demande
Terrain à vendre - 60000 m²
Jouy-le-Moutier (95280)
Dernière mise à jour : Il y a 11 mois
Vente terrains industriels à Cergy-Pontoise (95)
Les informations sur les risques auxquels ce bien est exposé sont disponibles sur le site Géorisques : www.georisques.gouv.fr
Accessibilité :
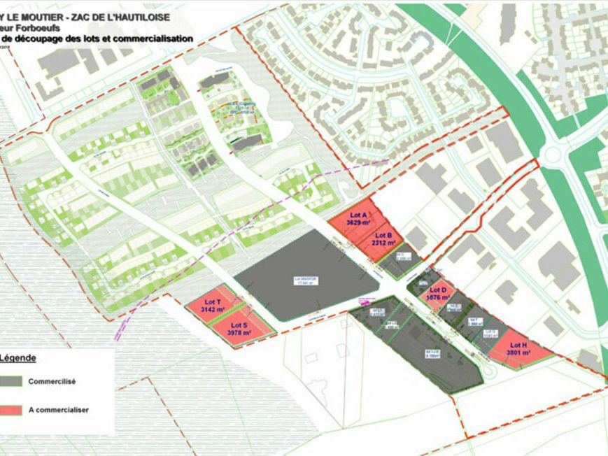
ZAC de l'Hautiloise secteur Forboeufs, en prolongement de la rue Denis PapinAccessibilité :RER A et Transilien (ligne L) Neuville-UniversitéBus 48
Disponibilité : Immédiate
Prestations :
Constructibilité : PLU zone 1AUI et 1AUMEmprise au sol : non réglementéHauteur maximale de construction : 10 mètres
6 hectares divisibles à partir de 1 500 m²lot a : 3629 m²lot b : 2312 m²lot d2 : 1876 m²lot h : 3801 m²lot s : 3978 m²lot t : 3143 m²
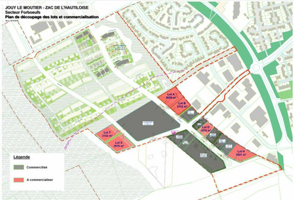
Plusieurs lots de terrains industriels sont à vendre, et disponible immédiatement, secteur Forboeufs à Jouy-le-Moutier tout près de Cergy. Une surface totale de 6 ha divisible à partir de 1500 m² pour l'implantation de votre entreprise du secteur de l'industrie, l'artisanat ou de services.
Les informations sur les risques auxquels ce bien est exposé sont disponibles sur le site Géorisques : www.georisques.gouv.fr
Accessibilité :
ZAC de l'Hautiloise secteur Forboeufs, en prolongement de la rue Denis PapinAccessibilité :RER A et Transilien (ligne L) Neuville-UniversitéBus 48
Disponibilité : Immédiate
Prestations :
Constructibilité : PLU zone 1AUI et 1AUMEmprise au sol : non réglementéHauteur maximale de construction : 10 mètres
6 hectares divisibles à partir de 1 500 m²lot a : 3629 m²lot b : 2312 m²lot d2 : 1876 m²lot h : 3801 m²lot s : 3978 m²lot t : 3143 m²
Voir plus
Afficher les consommations énergétiques
Favoris
Exporter
Appeler
Contacter
Signaler cette annonce
