MALSH Realty accompagne les entreprises dans leurs projets immobiliers, qu’il s’agisse de locaux d’activités, de bureaux, de commerces, d’entrepôts ou de terrains. L’agence intervient aussi bien au ...
En savoir plus

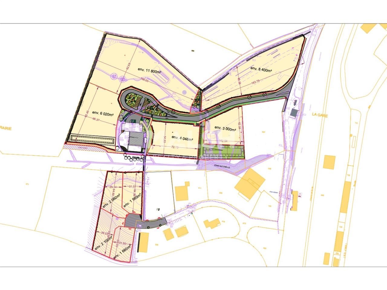
41 073 m² divisible dès 1 660 m²
Terrain à vendre - 41073 m²
La Clayette (71800)
Dernière mise à jour : Il y a 26 jours
Terrains à BAUDEMONT / LA CLAYETTE - A VENDRE - 41 073 m² divisibles à partir de 1660 m²
EXCLUSIVITÉ !
Nous vous proposons à la vente, 9 terrains d'une surface totale de plus de 41 000 m² pour la construction de locaux d'activités.
À destination artisanale, de stockage ou de production, les parcelles, vendues viabilisées et réseaux en attente, sont divisibles selon les besoins des acheteurs.
Vente Terrains - Baudemont / La Clayette (71800) - 41 073 m² divisibles à partir de 1660 m²
Régime Fiscal : TVA
Honoraires : Inclus dans le prix de vente
Prestations :
Accessibilité:
Route Accès par la route N79 (à 20 min) et en façade de la D985
SNCF Gare de la Clayette - Baudemont à 1 min
La Clayette à 2 min
Les informations sur les risques auxquels ce bien est exposé sont disponibles sur le site Géorisques : www.georisques.gouv.fr
EXCLUSIVITÉ !
Nous vous proposons à la vente, 9 terrains d'une surface totale de plus de 41 000 m² pour la construction de locaux d'activités.
À destination artisanale, de stockage ou de production, les parcelles, vendues viabilisées et réseaux en attente, sont divisibles selon les besoins des acheteurs.
Vente Terrains - Baudemont / La Clayette (71800) - 41 073 m² divisibles à partir de 1660 m²
| Étage | Type | Surfaces | Dispo | Prix(m²) | Charges | Honoraires | Fiscal |
|---|---|---|---|---|---|---|---|
| Terrain | 2100 | Après accord | 30 HT/m² | n.c. | Inclus dans le prix de vente | TVA | |
| Terrain | 2060 | Après accord | 30 HT/m² | n.c. | Inclus dans le prix de vente | TVA | |
| Terrain | 1985 | Après accord | 30 HT/m² | n.c. | Inclus dans le prix de vente | TVA | |
| Terrain | 1660 | Après accord | 30 HT/m² | n.c. | Inclus dans le prix de vente | TVA | |
| Terrain | 11800 | Après accord | 30 HT/m² | n.c. | Inclus dans le prix de vente | TVA | |
| Terrain | 8400 | Après accord | 30 HT/m² | n.c. | Inclus dans le prix de vente | TVA | |
| Terrain | 6020 | Après accord | 30 HT/m² | n.c. | Inclus dans le prix de vente | TVA | |
| Terrain | 4048 | Après accord | 30 HT/m² | n.c. | Inclus dans le prix de vente | TVA | |
| Terrain | 3000 | Après accord | 30 HT/m² | n.c. | Inclus dans le prix de vente | TVA |
Régime Fiscal : TVA
Honoraires : Inclus dans le prix de vente
Prestations :
Accessibilité:
Route Accès par la route N79 (à 20 min) et en façade de la D985
SNCF Gare de la Clayette - Baudemont à 1 min
La Clayette à 2 min
Les informations sur les risques auxquels ce bien est exposé sont disponibles sur le site Géorisques : www.georisques.gouv.fr
Voir plus
Afficher les consommations énergétiques
Localisation et transport aux alentours
Favoris
Exporter
Appeler
Contacter
Signaler cette annonce
