Pôle Implantation Entreprises est un service opérationnel dans toutes les régions de France pour accompagner les dirigeants d’entreprises dans leurs recherches immobilières, mais aussi sur l’ensemb ...
En savoir plus
135 000 m² divisible dès 5 397 m²
Prix sur demande
Terrain à vendre - 135000 m²
Saint-Ouen-l'Aumône (95310)
Dernière mise à jour : Il y a 11 mois
Terrains industriels à vendre à Saint Ouen l'Aumône (95)
Les informations sur les risques auxquels ce bien est exposé sont disponibles sur le site Géorisques : www.georisques.gouv.fr
Accessibilité :
Par la route :A proximité immédiate de l'A15 et de la Francilienne. Par les transports en commun : Gare de Saint-Ouen l'Aumône -Liesse : ligne C du RER et ligne H du Transilien.Les lignes de bus 58 et 59 pour accès au pôle gare du Grand Centre de Cergy-Pontoise (RER A et ligne L du Transilien).
Disponibilité : Immédiate
Prestations :
Emprise au sol : non réglementée
Hauteur maximale des constructions non réglementée
Calendrier viabilisation : mi 2024
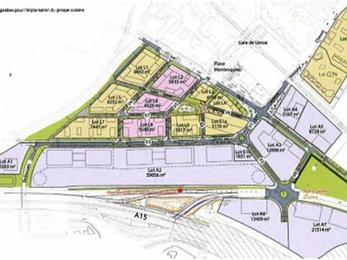
les terrains à vocation économique représentent une surface totale de 13.5 hectares, répartie en 7 lots de 5 397 m² à 61 643 m².
La ZAC Liesse 2 est un programme mixte comprenant parc d'activités économiques et commerces, en pied de gare RER et Transilien et à proximité immédiate de l'A15 et de la Francilienne. Elle occupe une surface totale de 45.6 ha, dont 13.5 ha seront consacrés aux activités économiques. Les secteurs d'activités ciblés sont : les services tertiaires, sièges sociaux industriels, bureaux d'études, centres de R&D, unité de production.
Les terrains à vocation économique sont répartis en 7 lots de 5 397 m² à 61 643 m².
A proximité se trouvent:
- Parc d'activités des Bellevues (200 entreprises et 4 500 salariés)
- Entreprises implantées : Sagem Défense Sécurité,Weiss Teknik France, Renault, La Poste, Weber France
Les informations sur les risques auxquels ce bien est exposé sont disponibles sur le site Géorisques : www.georisques.gouv.fr
Accessibilité :
Par la route :A proximité immédiate de l'A15 et de la Francilienne. Par les transports en commun : Gare de Saint-Ouen l'Aumône -Liesse : ligne C du RER et ligne H du Transilien.Les lignes de bus 58 et 59 pour accès au pôle gare du Grand Centre de Cergy-Pontoise (RER A et ligne L du Transilien).
Disponibilité : Immédiate
Prestations :
Emprise au sol : non réglementée
Hauteur maximale des constructions non réglementée
Calendrier viabilisation : mi 2024
les terrains à vocation économique représentent une surface totale de 13.5 hectares, répartie en 7 lots de 5 397 m² à 61 643 m².
Voir plus
Afficher les consommations énergétiques
Localisation et transport aux alentours
- Saint-Ouen-l'Aumône130m (2min à pied)CH
Favoris
Exporter
Appeler
Contacter
Signaler cette annonce

