Pôle Implantation Entreprises est un service opérationnel dans toutes les régions de France pour accompagner les dirigeants d’entreprises dans leurs recherches immobilières, mais aussi sur l’ensemb ...
En savoir plus

40 000 m²
Prix sur demande
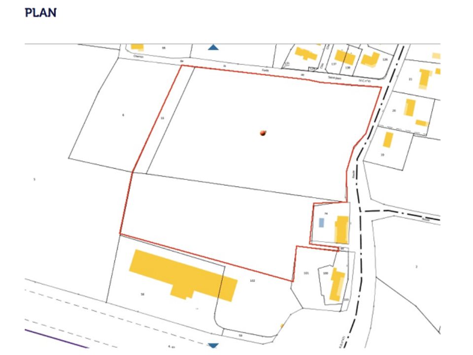
Terrain à vendre - 40000 m²
Saint-Genis-sur-Menthon (01380)
Dernière mise à jour : Il y a 2 jours
Terrain à vendre entre Mâcon et Bourg-en-Bresse (01)
Les informations sur les risques auxquels ce bien est exposé sont disponibles sur le site Géorisques : www.georisques.gouv.fr
Le site bénéficie d'une localisation idéale près de la sortie n°4 de l'autoroute, situé à égale distance entre Mâcon et Bourg-en-Bresse, chacune de ces villes disposant d'une gare TGV.
Disponibilité : Immédiate
Le terrain, d'une belle superficie, se trouve dans un secteur en tension. Il est situé en bordure d'autoroute, offrant ainsi une facilité d'accès optimale.
le terrain s''étend sur 4ha.
À Saint-Genis-sur-Menthon (01), situé à égale distance de Mâcon et Bourg-en-Bresse, un terrain privé de 4 hectares est disponible à la vente pour des activités économiques hors logistique. Celui-ci se trouve en bordure de l'A40. La surface exacte sera confirmée par un géomètre.
Les informations sur les risques auxquels ce bien est exposé sont disponibles sur le site Géorisques : www.georisques.gouv.fr
Le site bénéficie d'une localisation idéale près de la sortie n°4 de l'autoroute, situé à égale distance entre Mâcon et Bourg-en-Bresse, chacune de ces villes disposant d'une gare TGV.
Disponibilité : Immédiate
Le terrain, d'une belle superficie, se trouve dans un secteur en tension. Il est situé en bordure d'autoroute, offrant ainsi une facilité d'accès optimale.
le terrain s''étend sur 4ha.
Voir plus
Afficher les consommations énergétiques
Localisation et transport aux alentours
Favoris
Exporter
Appeler
Contacter
Signaler cette annonce


