Pôle Implantation Entreprises est un service opérationnel dans toutes les régions de France pour accompagner les dirigeants d’entreprises dans leurs recherches immobilières, mais aussi sur l’ensemb ...
En savoir plus
20 300 m²
Prix sur demande
Terrain à vendre - 20300 m²
Pipriac (35550)
Dernière mise à jour : Il y a 2 jours
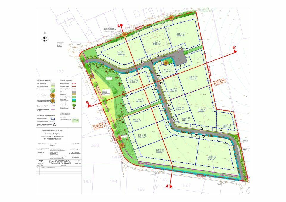
Terrain industriels à vendre - PA Les Vallées du Couchant - Redon
Les informations sur les risques auxquels ce bien est exposé sont disponibles sur le site Géorisques : www.georisques.gouv.fr
Accessibilité :
Gare SNCF à 27 min (23 km)
Port de Redon à 27 min (23 km)
Port de Saint-Nazaire à 57 min (63 km)
Nantes à 55 min (65 km)
Rennes à 53 min (67 km)
Vannes à 1h12 (88 km)
Disponibilité : Immédiate
Viabilisation : Réseau électricité, eau et eaux usées. Eau pluviale : gestion à la parcelle.
Guichet unique par Redon Agglomération : Instruction des autorisations d'occupation des sols ;
Mission architecte conseil en sobriété foncière à disposition
d''une surface totale de 21,3 ha, 2,3ha de terrain industriel et artisanal sont encore disponibles.la taille des terrains est divisible à la demande.
Terrains à acheter à Pipriac (35) : Le parc d'activités Les Vallées du Couchant propose des parcelles adaptées aux besoins des entreprises industrielles et artisanales.
Les informations sur les risques auxquels ce bien est exposé sont disponibles sur le site Géorisques : www.georisques.gouv.fr
Accessibilité :
Gare SNCF à 27 min (23 km)
Port de Redon à 27 min (23 km)
Port de Saint-Nazaire à 57 min (63 km)
Nantes à 55 min (65 km)
Rennes à 53 min (67 km)
Vannes à 1h12 (88 km)
Disponibilité : Immédiate
Viabilisation : Réseau électricité, eau et eaux usées. Eau pluviale : gestion à la parcelle.
Guichet unique par Redon Agglomération : Instruction des autorisations d'occupation des sols ;
Mission architecte conseil en sobriété foncière à disposition
d''une surface totale de 21,3 ha, 2,3ha de terrain industriel et artisanal sont encore disponibles.la taille des terrains est divisible à la demande.
Voir plus
Afficher les consommations énergétiques
Localisation et transport aux alentours
Favoris
Exporter
Appeler
Contacter
Signaler cette annonce
