Desaulles Immobilier, est un cabinet de conseil en immobilier d'entreprise membre du réseau CBRE. Implanté à Mulhouse depuis plus de 60 ans, Desaulles Immobilier a répond aux attentes des entrepris ...
En savoir plus

Activité/Entrepôt à vendre - 274 m²
Située au coeur de Colmar, cette résidence de 103 appartements (studios et 2 pièces) représente une opportunité d'investissement haut de gamme. Colmar, réputée pour son patrimoine historique, ses marchés de Noël et sa position stratégique à proximité de l'Allemagne et de la Suisse, garantit une demande locative constante. Ce projet est idéal pour un rendement stable et une valorisation patrimoniale. Avec des surfaces optimisées de 26 m² pour les T1 et 38 m² pour les T2, des équipements haut de gamme et un classement 4 étoiles, elle est concue pour attirer une clientèle tant touristique que professionnelle. La résidence propose des services premium (réception, salle de petit-déjeuner, espace fitness, buanderie et salles de réunion) ainsi que des stationnements extérieurs et en sous-sol.
Les informations sur les risques auxquels ce bien est exposé sont disponibles sur le site Géorisques : www.georisques.gouv.fr
Accessibilité :
Avenue de la République
- Bus République (52m) et Préfecture (214m)
- Gare de Colmar (496m)
Disponibilité : 4ème trimestre 2028
Prestations :
Normes RE 2020 et BBC
Régime de la vente: VEFA
Standing haut
Type de bail/baux en place commercial loués meublés
Prix de vente : 1372000 € HT HF
| batiment - lot | etage | type | surface en m² | prix vente avec mobilier ht | parking ht | loyer annuel | rentabilité brute |
| a 211 | r+2 | studio | 24.79 | 134 000 € | 7 200 € | 6 700 € | 5% |
| a 305 | r+3 | studio | 24.79 | 135 000 € | 7 260 € | 6 750 € | 5% |
| a 307 | r+3 | studio | 24.79 | 135 000 € | 7 260 € | 6 750 € | 5% |
| a 404 | r+4 | studio | 24.64 | 133 000 € | 7 140 € | 6 650 € | 5% |
| a 405 | r+4 | studio | 24.79 | 137 000 € | 7 380 € | 6 850 € | 5% |
| a 411 | r+4 | studio | 24.79 | 137 000 € | 7 380 € | 6 850 € | 5% |
| a 501 | r+5 | studio | 23.96 | 136 000 € | 7 320 € | 6 800 € | 5% |
| b 231 | r+2 | t2 | 34.09 | 181 000 € | 9 840 € | 9 050 € | 5% |
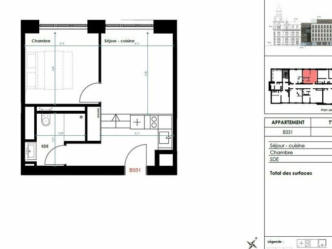
| b 331 | r+3 | t2 | 35.09 | 191 000 € | 10 440 € | 9 550 € | 5% |
| b 333 | r+ 3 | t2 | 32.09 | 190 000 € | 10 380 € | 9 500 € | 5% |






