L’agence CBRE Bordeaux conseille et accompagne les chefs d’entreprise dans leurs projets immobiliers quels que soient leur taille et leur secteur d’activité. Spécialistes de la transaction de burea ...
En savoir plus

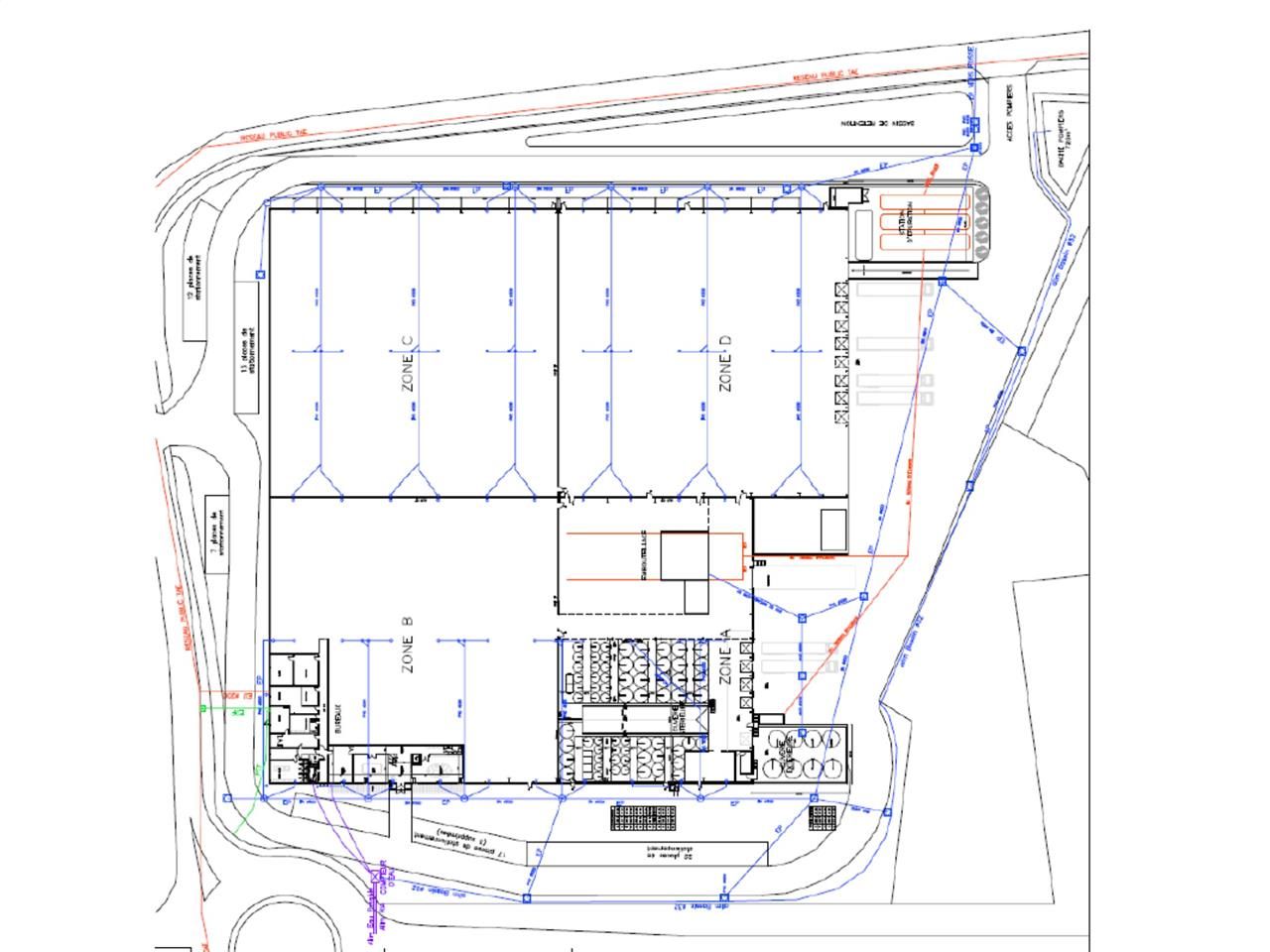
13 862 m²
Activité/Entrepôt à vendre - 13862 m²
Ambarès-et-Lagrave (33440)
Dernière mise à jour : Hier
OPPORTUNITÉ EXCEPTIONNELLE : Plateforme Logistique Classe A de 13 862 m2 à Ambarès et Lagrave (33) - Votre Futur Hub Stratégique ! Saisissez l'opportunité de vous implanter au coeur d'un axe logistique majeur et de bénéficier d'infrastructures de pointe ! Nous vous proposons à l'acquisition une plateforme logistique, située stratégiquement au Nord-est de Bordeaux (sortie autoroute), offrant un positionnement idéal sur l'axe Poitiers-Bordeaux, le long de l'A10.
Un actif logistique d'exception : . Classe A : Conçu pour répondre aux exigences les plus élevées en matière de stockage et de distribution. . 4 Cellules Logistiques : Adaptabilité et modularité pour répondre à vos besoins spécifiques.
. Bureaux et locaux sociaux d'accompagnement : espaces de travail modernes et fonctionnels pour vos équipes.
. Emplacement stratégique : accès direct à l'autoroute A10, facilitant vos flux de marchandises et votre connexion aux grands centres urbains.
. Seule offre de qualité à l'acquisition : Positionnez-vous en pionnier sur un marché prometteur.
. Positionnement stratégique : bénéficiez d'une localisation privilégiée sur un axe logistique clé.
. Image et Notoriété : associez votre entreprise à un projet d'envergure et à des standards de qualité élevés.
Ne manquez pas cette occasion unique de sécuriser votre futur développement logistique ! Contactez-nous dès aujourd'hui pour plus d'informations.
Régime Fiscal : Droits d'enregistrement
Honoraires : 3% HT du prix de vente HD à la charge de l'acquéreur
Prestations :
Accessibilité:
Bus Lignes n° 7, 29, 31 et 69
Bus Cars régionaux n° 431 et 432
Autoroute Accès A10 à 2 km sortie n° 42
SNCF Gare de La Grave-d'Ambarès (SNCF) à 2,3 km
Route Accès rocade à 5,8 km
Route Accès N89 à 9,5 km
Les informations sur les risques auxquels ce bien est exposé sont disponibles sur le site Géorisques : www.georisques.gouv.fr
Un actif logistique d'exception : . Classe A : Conçu pour répondre aux exigences les plus élevées en matière de stockage et de distribution. . 4 Cellules Logistiques : Adaptabilité et modularité pour répondre à vos besoins spécifiques.
. Bureaux et locaux sociaux d'accompagnement : espaces de travail modernes et fonctionnels pour vos équipes.
. Emplacement stratégique : accès direct à l'autoroute A10, facilitant vos flux de marchandises et votre connexion aux grands centres urbains.
. Seule offre de qualité à l'acquisition : Positionnez-vous en pionnier sur un marché prometteur.
. Positionnement stratégique : bénéficiez d'une localisation privilégiée sur un axe logistique clé.
. Image et Notoriété : associez votre entreprise à un projet d'envergure et à des standards de qualité élevés.
Ne manquez pas cette occasion unique de sécuriser votre futur développement logistique ! Contactez-nous dès aujourd'hui pour plus d'informations.
| Étage | Type | Surfaces | Dispo | Prix(m²) | Charges | Honoraires | Fiscal |
|---|---|---|---|---|---|---|---|
| RDC | Entrepôts | 12925 | Décembre 2025 | n.c. | n.c. | 3% HT du prix de vente HD à la charge de l'acquéreur | Droits d'enregistrement |
| R1 | Bureaux | 937 | Décembre 2025 | n.c. | n.c. | 3% HT du prix de vente HD à la charge de l'acquéreur | Droits d'enregistrement |
Régime Fiscal : Droits d'enregistrement
Honoraires : 3% HT du prix de vente HD à la charge de l'acquéreur
Prestations :
- Site clôturé et sécurisé avec contrôle d'accès par badge
- Alarme et vidéosurveillance
- Zone de stockage extérieur
- Cour camion voirie lourde
- 12 quais PL et 2 portes d'accès plain-pied
- 71 places de parking
- ENTREPOT:
- ICPE
- Bardage métallique double peau
- Dalle béton quartz, 5T /m²
- Hauteur de stockage entre 10 et 11 m
- Bureaux répartis en RDC et R+1, climatisés, cloisonnés et bien entretenus
- Salle de repos et salles de réunion
- Surface RDC : 12925 m²
- Surface terrain : 27486
Accessibilité:
Bus Lignes n° 7, 29, 31 et 69
Bus Cars régionaux n° 431 et 432
Autoroute Accès A10 à 2 km sortie n° 42
SNCF Gare de La Grave-d'Ambarès (SNCF) à 2,3 km
Route Accès rocade à 5,8 km
Route Accès N89 à 9,5 km
Les informations sur les risques auxquels ce bien est exposé sont disponibles sur le site Géorisques : www.georisques.gouv.fr
Voir plus
Afficher les consommations énergétiques
Favoris
Exporter
Appeler
Contacter
Signaler cette annonce
