A l’appui d’un réseau leader à l’international, I&L Solutions est une équipe de plus de 70 professionnels spécialisés en immobilier Logistique et Industriel au service des investisseurs, des propri ...
En savoir plus

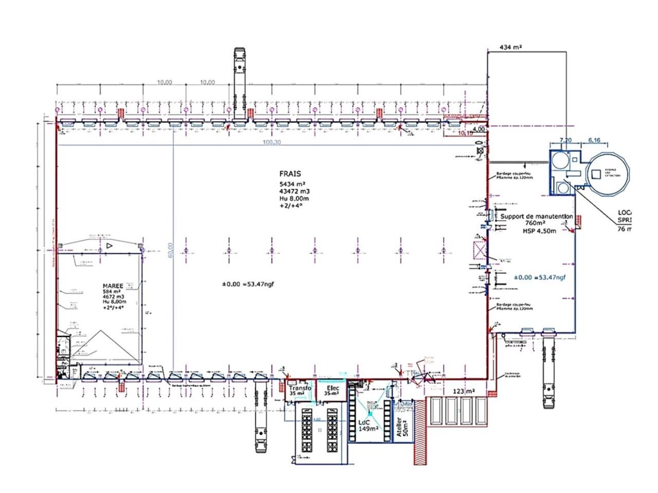
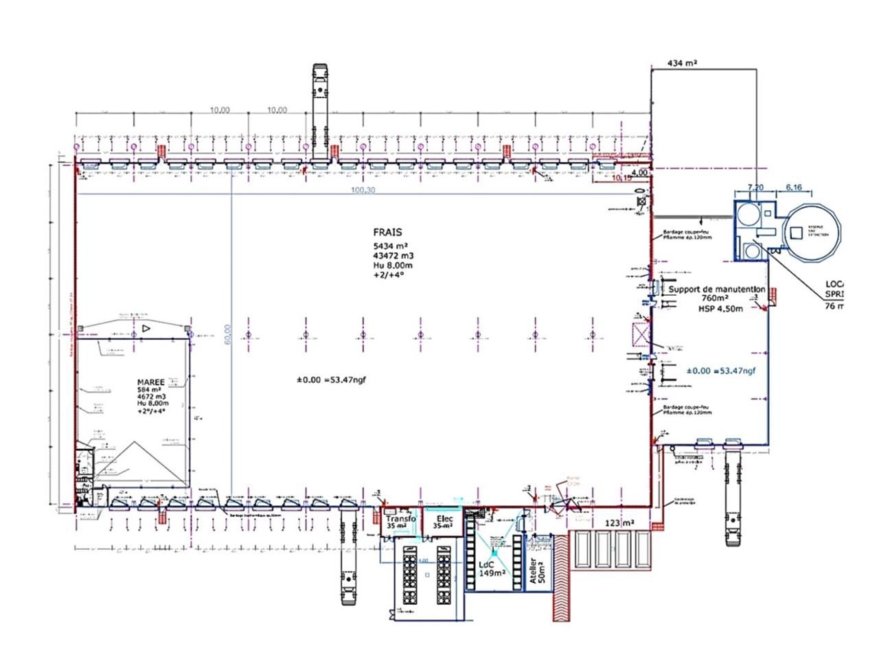
7 986 m² divisible dès 740 m²
HT HC
Location activité/entrepôt - 7986 m²
Saint-Ouen-l'Aumône (95310)
Dernière mise à jour : Il y a 8 mois
A 35 kms de Paris, CBRE vous propose une messagerie indépendante développant une surface totale de 7 986 m² sur un terrain de 33 710 m². Selon vos besoins, le bâtiment peut être loué en froid positif (2/4°) avec une installation entièrement rénovée ou en sec. Le site bénéficie de la proximité de l'A15 et de la N184.
Le Parc de Saint-Ouen l'Aumône est idéalement situé au coeur de Val d'Oise, au carrefour du Grand Paris et à la confluence Seine Oise.
Régime Fiscal : T.V.A.
Dépôt de garantie : 3 mois de loyer HT/HC
Honoraires : 15 % HT d'un loyer annuel HT/HC à la charge du preneur
Information sur le Bail :
Loyer entrepôt en sec : 95,00 euros/m²/an HT HC Si : Loyer entrepôt en froid positif 2/4° : 150,00 euros/m²/an HT HC
Prestations :
Accessibilité:
Autoroute A15/A115
Route N184
Route D14 - D191
Les informations sur les risques auxquels ce bien est exposé sont disponibles sur le site Géorisques : www.georisques.gouv.fr
Le Parc de Saint-Ouen l'Aumône est idéalement situé au coeur de Val d'Oise, au carrefour du Grand Paris et à la confluence Seine Oise.
| Étage | Type | Surfaces | Dispo | Loyer | Charges | Type de bailRév. annuelle |
|---|---|---|---|---|---|---|
| Entrepôts | 7246 | Immédiate | 95 m²/an HT HC | PrécaireIndice ILAT | ||
| Entrepôts | 740 | Immédiate | 95 m²/an HT HC | PrécaireIndice ILAT |
Régime Fiscal : T.V.A.
Dépôt de garantie : 3 mois de loyer HT/HC
Honoraires : 15 % HT d'un loyer annuel HT/HC à la charge du preneur
Information sur le Bail :
Loyer entrepôt en sec : 95,00 euros/m²/an HT HC Si : Loyer entrepôt en froid positif 2/4° : 150,00 euros/m²/an HT HC
Prestations :
- SPECIFICATIONS :
- Terrain : 33 710 m²
- Bâtiment développant une surface totale de 7 986 m²
- Messagerie
- Année de construction 2004
- Sec ou température dirigée
- Hauteur de 8 m
- EQUIPEMENTS :
- 30 portes à quai
- Capacité de stockage 48 144 m3
- Cour de débord
- Parking VL 73 emplacements
- Attentes PL 4 emplacements
- Immeuble indépendant
- Surface RDC : 0 m²
- Surface terrain : 0
- ICPE :
- Autorisations : 1185,1511
- Déclarations : 2925
Accessibilité:
Autoroute A15/A115
Route N184
Route D14 - D191
Les informations sur les risques auxquels ce bien est exposé sont disponibles sur le site Géorisques : www.georisques.gouv.fr
Voir plus
Afficher les consommations énergétiques
Favoris
Exporter
Appeler
Contacter
Signaler cette annonce










