Acteur en immobilier d’entreprise, Norman Taylor intervient sur les territoires de Montpellier, Béziers, Narbonne, Perpignan, Aix en Provence, Marseille et Lyon.Nous vous accompagnons dans l'élabor ...
En savoir plus

5 199 m² divisible dès 200 m²
Activité/Entrepôt à vendre - 5199 m²
Montpellier (34000)
Dernière mise à jour : Il y a 4 mois
Programme neuf - Locaux d'activités à vendre - Montpellier Près d'Arènes
Les informations sur les risques auxquels ce bien est exposé sont disponibles sur le site Géorisques : www.georisques.gouv.fr
Équipements :
Quai de déchargement mutualisé
Porte sectionnelle de 3,50 m x 3,50 m
3 places de parking privatives par lot
Autoroute A9/A709 a 3 min
Gare Montpellier Saint-Roch à 8 min
Gare Montpellier Sud de France à 10 min
Aéroport Montpellier Méditerranée à 13 min
Disponibilité : 4T 2025
Prix de vente : 1570 € HT HF / m2
Honoraires à la charge de l'acquéreur : 3 % HT
NOUVEAU ! À vendre : Locaux d'activités sur Lattes/Montpellier Sud
Nous vous proposons des locaux d'activités à la vente dans un ensemble immobilier exceptionnel, idéalement situé à proximité de l'autoroute.
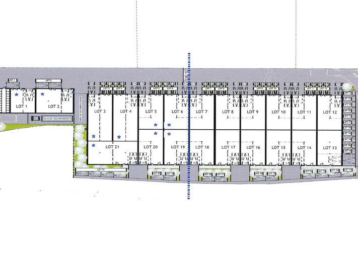
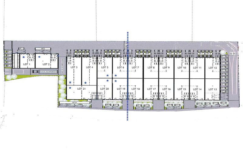
Détails des lots :
- Surface : À partir de 200 m², avec une surface totale disponible de 5 200 m².
- Hauteur sous plafond (HSP) : 7 m (4 m sous mezzanine et 3 m au-dessus de la mezzanine).
- Accès : Accès semi-remorque pour faciliter les opérations de chargement et déchargement.
- Équipements :
- Quai de déchargement mutualisé
- Porte sectionnelle de 3,50 m x 3,50 m
- 3 places de parking privatives par lot
Flexibilité : Possibilité de division à partir de 200 m² avec option de fusion de plusieurs lots pour une superficie plus grande.
Emplacement : Autoroute à seulement 3 minutes.
Parking aérien devant les locaux
Quelques lots encore disponibles ! Ne manquez pas cette opportunité unique. Contactez-nous pour plus d'informations ou pour organiser une visite.
www.normantaylor.fr
Les informations sur les risques auxquels ce bien est exposé sont disponibles sur le site Géorisques : www.georisques.gouv.fr
Équipements :
Quai de déchargement mutualisé
Porte sectionnelle de 3,50 m x 3,50 m
3 places de parking privatives par lot
Autoroute A9/A709 a 3 min
Gare Montpellier Saint-Roch à 8 min
Gare Montpellier Sud de France à 10 min
Aéroport Montpellier Méditerranée à 13 min
Disponibilité : 4T 2025
Prix de vente : 1570 € HT HF / m2
Honoraires à la charge de l'acquéreur : 3 % HT
| batiment - lot | surface rdc m² | surface mezzanine m² | surface totale m² | prix vente ht/hf | parkings | disponibilité |
| 3 | 190,44 | 99,13 | 289,57 | 452 656,40 € | 3 | disponible |
| 4 | 194,41 | 99,13 | 293,54 | 458 862,31 € | 3 | réservé |
| 5 | 145,45 | 98,17 | 243,62 | 380 827,27 € | 3 | réservé |
| 6 | 145,45 | 98,17 | 243,62 | 380 827,27 € | 3 | disponible |
| 7 | 143,82 | 96,54 | 240,36 | 375 731,23 € | 3 | réservé |
| 8 | 143,82 | 96,54 | 240,36 | 375 731,23 € | 3 | réservé |
| 9 | 145,45 | 98,17 | 243,62 | 380 827,27 € | 3 | disponible |
| 10 | 145,45 | 98,17 | 243,62 | 380 827,27 € | 3 | disponible |
| 11 | 145,45 | 98,17 | 243,62 | 380 827,27 € | 3 | disponible |
| 12 | 142,48 | 97,17 | 239,65 | 374 621,36 € | 3 | réservé |
| 13 | 142,48 | 95,92 | 238,40 | 376 394,03 € | 3 | réservé |
| 14 | 145,45 | 98,17 | 243,62 | 384 635,54 € | 3 | disponible |
| 15 | 145,45 | 98,17 | 243,62 | 384 635,54 € | 3 | réservé |
| 16 | 145,45 | 98,17 | 243,62 | 384 635,54 € | 3 | disponible |
| 17 | 143,82 | 96,54 | 240,36 | 379 488,54 € | 3 | disponible |
| 18 | 143,82 | 96,54 | 240,36 | 379 488,54 € | 3 | disponible |
| 19 | 145,45 | 98,17 | 243,62 | 384 635,54 € | 3 | disponible |
| 20 | 145,45 | 98,17 | 243,62 | 384 635,54 € | 2 | disponible |
| 21 | 192,94 | 96,45 | 289,39 | 456 898,78 € | 3 | option |
Voir plus
Afficher les consommations énergétiques
Favoris
Exporter
Appeler
Contacter
Signaler cette annonce










