L’agence CBRE Marseille conseille et accompagne les chefs d’entreprise dans leurs projets immobiliers quels que soient leur taille et leur secteur d’activité. Spécialistes de la transaction de bure ...
En savoir plus

4 061 m² divisible dès 235 m²
Activité/Entrepôt à vendre - 4061 m²
La Bouilladisse (13720)
Dernière mise à jour : Il y a 7 mois
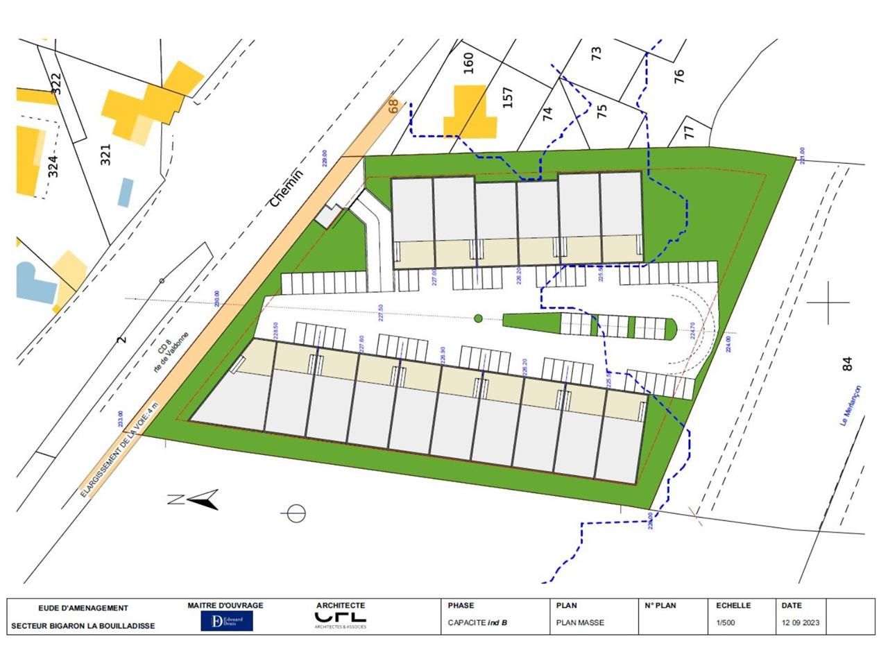
LOCAUX D'ACTIVITES A VENDRE - LA BOUILLADISSE. Programme neuf à vendre : Nous vous proposons à la vente un parc d'activités composé de 16 cellules de 264 m², sur deux bâtiments en R+1. Chaque lot est composé d'une porte sectionnelle de plain-pied, de 200 m² de stockage en rez-de-chaussée, de 64 m² de mezzanine et de 4 places de stationnement VL privatives. Situé à proximité immédiate de la sortie d'autoroute, le site bénéficie d'une accessibilité optimale.
Programme neuf de 4 006 m² environ divisibles à partir de 264 m².
N'hésitez pas à nous contacter pour découvrir ces locaux.
CBRE leader mondial en Immobilier d'entreprise est à votre disposition pour vous accompagner dans tous vos projets immobiliers grâce à sa palette de métiers permettant de répondre à toutes problématiques immobilières de la valorisation, en passant par la gestion et la commercialisation à la rénovation.
Régime Fiscal : T.V.A.
Honoraires : A la charge de l'acquéreur : 4 % HT du prix de vente HT + TVA 20 %
Prestations :
Accessibilité:
Autoroute A52
Les informations sur les risques auxquels ce bien est exposé sont disponibles sur le site Géorisques : www.georisques.gouv.fr
Programme neuf de 4 006 m² environ divisibles à partir de 264 m².
N'hésitez pas à nous contacter pour découvrir ces locaux.
CBRE leader mondial en Immobilier d'entreprise est à votre disposition pour vous accompagner dans tous vos projets immobiliers grâce à sa palette de métiers permettant de répondre à toutes problématiques immobilières de la valorisation, en passant par la gestion et la commercialisation à la rénovation.
| Étage | Type | Surfaces | Dispo | Prix(m²) | Charges | Honoraires | Fiscal |
|---|---|---|---|---|---|---|---|
| RDC | Activités | 290 | 18 mois ap. déb. trx | 1800 m² HT | n.c. | A la charge de l'acquéreur : 4 % HT du prix de vente HT + TVA 20 % | T.V.A. |
| RDC | Activités | 264 | 18 mois ap. déb. trx | 1800 m² HT | n.c. | A la charge de l'acquéreur : 4 % HT du prix de vente HT + TVA 20 % | T.V.A. |
| RDC | Activités | 264 | 18 mois ap. déb. trx | 1800 m² HT | n.c. | A la charge de l'acquéreur : 4 % HT du prix de vente HT + TVA 20 % | T.V.A. |
| RDC | Activités | 264 | 18 mois ap. déb. trx | 1800 m² HT | n.c. | A la charge de l'acquéreur : 4 % HT du prix de vente HT + TVA 20 % | T.V.A. |
| RDC | Activités | 317 | 18 mois ap. déb. trx | 1800 m² HT | n.c. | A la charge de l'acquéreur : 4 % HT du prix de vente HT + TVA 20 % | T.V.A. |
| RDC | Activités | 264 | 18 mois ap. déb. trx | 1800 m² HT | n.c. | A la charge de l'acquéreur : 4 % HT du prix de vente HT + TVA 20 % | T.V.A. |
| RDC | Activités | 264 | 18 mois ap. déb. trx | 1800 m² HT | n.c. | A la charge de l'acquéreur : 4 % HT du prix de vente HT + TVA 20 % | T.V.A. |
| RDC | Activités | 264 | 18 mois ap. déb. trx | 1800 m² HT | n.c. | A la charge de l'acquéreur : 4 % HT du prix de vente HT + TVA 20 % | T.V.A. |
| RDC | Activités | 264 | 18 mois ap. déb. trx | 1800 m² HT | n.c. | A la charge de l'acquéreur : 4 % HT du prix de vente HT + TVA 20 % | T.V.A. |
| RDC | Activités | 304 | 18 mois ap. déb. trx | 1800 m² HT | n.c. | A la charge de l'acquéreur : 4 % HT du prix de vente HT + TVA 20 % | T.V.A. |
| RDC | Activités | 275 | 18 mois ap. déb. trx | 1800 m² HT | n.c. | A la charge de l'acquéreur : 4 % HT du prix de vente HT + TVA 20 % | T.V.A. |
| RDC | Activités | 264 | 18 mois ap. déb. trx | 1800 m² HT | n.c. | A la charge de l'acquéreur : 4 % HT du prix de vente HT + TVA 20 % | T.V.A. |
| RDC | Activités | 264 | 18 mois ap. déb. trx | 1800 m² HT | n.c. | A la charge de l'acquéreur : 4 % HT du prix de vente HT + TVA 20 % | T.V.A. |
| RDC | Activités | 264 | 18 mois ap. déb. trx | 1800 m² HT | n.c. | A la charge de l'acquéreur : 4 % HT du prix de vente HT + TVA 20 % | T.V.A. |
| RDC | Activités | 235 | 18 mois ap. déb. trx | 1800 m² HT | n.c. | A la charge de l'acquéreur : 4 % HT du prix de vente HT + TVA 20 % | T.V.A. |
Régime Fiscal : T.V.A.
Honoraires : A la charge de l'acquéreur : 4 % HT du prix de vente HT + TVA 20 %
Prestations :
- Sol : dalle béton
- Toiture : charpente métallique
- Bac acier isolé
- Surcharge au sol : 3 T/m² et 500 Kg/m² pour la mezzanine
- Puissance électrique : 36 KVA - Tarif bleu + Triphasé
- Livraison brute / Fluides en attente
- Accès moyens porteurs
- Eclairage zénithal
- Tous les lots comprennent une surface de stockage de 64 m² environ en mezzanine (incluse dans la superficie annoncée)
- Surface RDC : 4061 m²
- Accès bâtiment : aire de manoeuvre : 1 de 0 à 20 m
- Equipements entrepôts : 69 places de parking extérieures
Accessibilité:
Autoroute A52
Les informations sur les risques auxquels ce bien est exposé sont disponibles sur le site Géorisques : www.georisques.gouv.fr
Voir plus
Afficher les consommations énergétiques
Favoris
Exporter
Appeler
Contacter
Signaler cette annonce
