Conseil en immobilier d'entreprise, Cushman & Wakefield est un acteur incontournable au rayonnement international. Cushman & Wakefield offre des solutions dans toutes les étapes que comporte un p ...
En savoir plus

3 254 m² divisible dès 1 627 m²
HT HC
Location activité/entrepôt - 3254 m²
Ozoir-la-Ferrière (77330)
Publiée : Il y a 23 jours
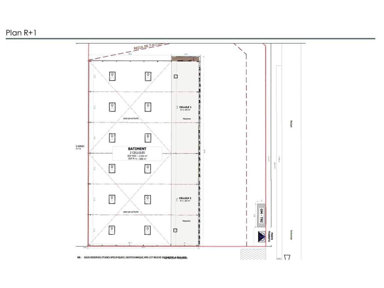
Locaux d'activité neufs à louer sur Ozoir (77)
À 2?Rue Robert Schuman, programme mixte industrie / entrepôt / bureaux totalisant 3?254?m², divisible en 2 cellules de 1?627?m². Livraison?: septembre?2026.
Chaque cellule bénéficie d'env. 1?042?m² d'industrie, 260?m² d'entrepôt, 325?m² de bureaux, 2 quais et 2 portes sectionnelles. Site clos, 60 places de stationnement.
Loyer?: 130? euros/m²/an.
Accessibilité premium?: proximité RER?E et axes A4 / A104 / N104, à 25?min de Paris. Idéal monolocataire ou preneurs par cellule.
Intéressé(e)?? Contactez-moi pour la documentation complète et organiser une visite du site.
Régime Fiscal : T.V.A.
Honoraires : 15 % HT du loyer annuel HT/HC à la charge du preneur.
Prestations :
Accessibilité:
Bus ZI Chevalier (5, 200)
RER Ozoir-la-Ferrière (E)
Les informations sur les risques auxquels ce bien est exposé sont disponibles sur le site Géorisques : www.georisques.gouv.fr
À 2?Rue Robert Schuman, programme mixte industrie / entrepôt / bureaux totalisant 3?254?m², divisible en 2 cellules de 1?627?m². Livraison?: septembre?2026.
Chaque cellule bénéficie d'env. 1?042?m² d'industrie, 260?m² d'entrepôt, 325?m² de bureaux, 2 quais et 2 portes sectionnelles. Site clos, 60 places de stationnement.
Loyer?: 130? euros/m²/an.
Accessibilité premium?: proximité RER?E et axes A4 / A104 / N104, à 25?min de Paris. Idéal monolocataire ou preneurs par cellule.
Intéressé(e)?? Contactez-moi pour la documentation complète et organiser une visite du site.
| Étage | Type | Surfaces | Dispo | Loyer | Charges | Type de bailRév. annuelle |
|---|---|---|---|---|---|---|
| R+1 | Bureaux | 325 | Sur l'indice ILAT | |||
| RdC | Activités | 1042 | Sur l'indice ILAT | |||
| RdC | Entrepôts | 260 | Sur l'indice ILAT | |||
| Total Cellule 1 | Activités | 1627 | 130 HT/HC/m²/an | 3-6-9 ansSur l'indice ILAT | ||
| R+1 | Bureaux | 325 | Sur l'indice ILAT | |||
| RdC | Activités | 1042 | Sur l'indice ILAT | |||
| RdC | Entrepôts | 260 | Sur l'indice ILAT | |||
| Total Cellule 2 | Activités | 1627 | 130 HT/HC/m²/an | 3-6-9 ansSur l'indice ILAT |
Régime Fiscal : T.V.A.
Honoraires : 15 % HT du loyer annuel HT/HC à la charge du preneur.
Prestations :
- 2 quais et 2 portes sectionnelles
- 60 places de parking
- Surface RDC : 2604 m²
Accessibilité:
Bus ZI Chevalier (5, 200)
RER Ozoir-la-Ferrière (E)
Les informations sur les risques auxquels ce bien est exposé sont disponibles sur le site Géorisques : www.georisques.gouv.fr
Voir plus
Afficher les consommations énergétiques
Localisation et transport aux alentours
Favoris
Exporter
Appeler
Contacter
Signaler cette annonce










