Leader mondial des services dédiés à l'immobilier d'entreprise, Cushman & Wakefield accompagne ses clients dans la transformation de leurs modes de travail, de consommation et de vie. Nos 43 000 co ...
En savoir plus

270 m²
Activité/Entrepôt à vendre - 270 m²
Scherwiller (67750)
Dernière mise à jour : Il y a 2 jours
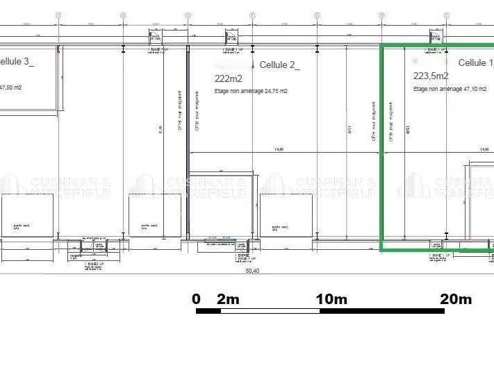
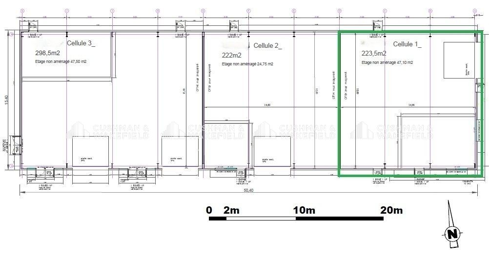
Local d'activité, disponible à la vente, au sein d'un btiment neuf divisé en 3 lots au coeur d'un parc d'activité industel idéalement situé le long de l'A35. Chaque local d'activité est pourvu d'une porte sectionnelle et d'une porte de plain pied. N'hésitez pas à contacter le département Activité de Cushman & Wakefield Strasbourg pour tout complément d'information. Local d'activité destiné aux activités artisanales et de services. Locaux livrés bruts, fluides en attente PRESTATIONS CLOS COUVERT : . Bardage double peau . Toiture isolée et recouverte de panneaux photovoltaiques . Hauteur 8 m au faitage . Dallage béton quartzé 5 Parkings extérieurs dont 1 PMR . Accès à chaque lot par 1 porte sectionnelle motorisée et 1 porte de plain pied . Mezzanine non aménagée . Bureaux : finition brut de béton Accès routier : A35, sortie 16 Sélestat
Voir plus
Afficher les consommations énergétiques
Localisation et transport aux alentours
Favoris
Exporter
Appeler
Contacter
Signaler cette annonce



