BNP Paribas Immobilier à Nancy accompagne ses clients dans tous leurs projets immobiliers à Nancy et sa région. Présente dans la métropole depuis près de 40 ans, notre équipe possède une connaissan ...
En savoir plus

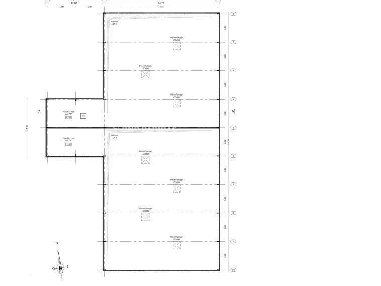
Activité/Entrepôt à vendre - 650 m²
Implanté au cœur du Grand Est, à 13 Km de Nancy, le Parc d'industries Moselle Rive Gauche est à proximité immédiate des autoroutes (à 5 Km de l’autoroute axe Luxembourg – Dijon et Paris – Strasbourg - A33, A330, A31) et du canal de l'Est.
Consciente des enjeux environnementaux actuels, la communauté de communes Moselle et Madon a aménagé ce parc dans le respect des principes de développement durable.
En mode doux, on y accède par plusieurs moyens
- Par le bus : Ligne de bus CC Moselle et Madon: 3 lignes régulières et gratuites, avec une desserte du parc industriel
- Par le train : Gare de Pont-saint-Vincent à 1,5 Km à pied.
Restauration à proximité : Parc d’activités du Breuil, Xeuilley, Neuves-Maisons… de la restauration rapide à la gastronomie Lorraine.
Vous avez un projet d'implantation dans ce secteur ? Appelez-nous pour l'étudier ensemble.
Disponibilité: 30/06/2026Honoraires: 5% HT du prix HT/HD. à la signature de l'acte
| Fiche technique du bien | |
|---|---|
| Climatisation | Simple flux froid |
| Bureau(x) cloisonné(s) | Oui |
| Faux plafond | Oui |
| Revêtement mural | Fibre de verre |
| Eclairage Bureaux | Luminaires encastrés LED sur détection automatique de présence et seuil de luminosité |
| Sol bureaux | Carrelage |
| Plinthes techniq.périphériques | Oui |
| Autre élément bureau | Panneaux rayonnants pour chauffage |
| Autre élément bureau | chauffage système air/air réversible |
| Charpente | Métallique double peau |
| Couverture | Bac acier isolé |
| Porte(s) d'accès plain-pied | 1 |
| Eclairage intérieur | LED + 2 zones d'allumage |










