Avec près de 80 implantations en France, Arthur Loyd est le premier réseau National de professionnels de Conseil en Immobilier d’Entreprise. Nous vous accompagnons dans vos projets sur l’ensemble d ...
En savoir plus

5 313 m² divisible dès 780 m²
Loyer sur demande
Location activité/entrepôt - 5313 m²
Val-de-Reuil (27100)
Dernière mise à jour : Il y a 4 mois
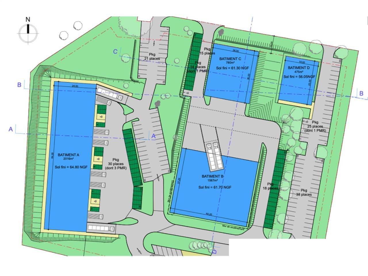
Situé au pied de l'A13, dans un site sécurisé, vos futurs locaux d'activité et bureaux neufs, adaptés sur mesure de 340 m2 à 2 000 m2
Régime Fiscal : T.V.A.
Dépôt de garantie : 1 terme de loyer HT et HC
Honoraires : 15% HT du loyer annuel HT / HC à la charge du Preneur
Prestations :
Les informations sur les risques auxquels ce bien est exposé sont disponibles sur le site Géorisques : www.georisques.gouv.fr
| Étage | Type | Surfaces | Dispo | Loyer | Charges | Type de bailRév. annuelle |
|---|---|---|---|---|---|---|
| RDC | Activités | 2016 | 8 mois après accord | 6,5 /m2/an HT | BEFA 6 ans fermesILC Indice des Loyers Commerciaux | |
| RDC | Activités | 1567 | 8 mois après accord | 6,5 /m2/an HT | BEFA 6 ans fermesILC Indice des Loyers Commerciaux | |
| RDC | Activités | 780 | 8 mois après accord | 6,5 /m2/an HT | BEFA 6 ans fermesILC Indice des Loyers Commerciaux | |
| RDC | Bureaux | 950 | 8 mois après accord | 6,5 /m2/an HT | BEFA 6 ans fermesILC Indice des Loyers Commerciaux |
Régime Fiscal : T.V.A.
Dépôt de garantie : 1 terme de loyer HT et HC
Honoraires : 15% HT du loyer annuel HT / HC à la charge du Preneur
Prestations :
- Au sein d'un parc sécurisé, divers bâtiments mixtes Activité et Bureau neufs modulable selon les besoins, conforme à la norme RE2020, composé de:
- Bâtiment A: 2.016 m2 au sol divisible à partir de 340 m2
- Bâtiment B: 1.567 m au sol modulable
- Bâtiment C: 780 m2 au sol modulable
- Bâtiment D: 950 m2 de bureaux en R+1 non modulable
- Résistance aux sols:
- RDC: 3 tonnes / m2
- R+1: plancher béton 500kg / m2
- Hauteurs:
- Sous charpente: 8,50 m
- Sous toiture: 9 m
- Sous mezzanine: entre 4,33 m et 4,66 m
- Sous plafond: 2,80 m pour des bureaux lumineux et spacieux.
- Portes sectionnelles prévues pour les poids lourds:
- Plain-pied: 3,50 x 4,40 m
- Quai: 3,00 x 3,50 m
- 161 places de stationnement sur site réparties à proximité des bâtiments
- Site clos avec portail électrique (10 m), ouverture sécurisée par digicode ou téléphone.
- Personnalisation des matériaux intérieurs possible (sols, cloisons, escaliers)
- Accompagnement sur mesure pour une livraison de locaux adaptée à vos besoins.
- Immeuble indépendant
- Surface RDC : 5313 m²
Les informations sur les risques auxquels ce bien est exposé sont disponibles sur le site Géorisques : www.georisques.gouv.fr
Voir plus
Afficher les consommations énergétiques
Localisation et transport aux alentours
Favoris
Exporter
Appeler
Contacter
Signaler cette annonce










