L'équipe de G2B Real Estate est agence immobilière spécialiste de l'immobilier d'entreprise partout en Île-de-France depuis plus de 13 ans. Hasan Gulbol (Associé), Frédéric Bazil (Associé), Philipp ...
En savoir plus

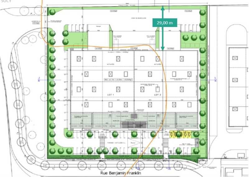
4 728 m² divisible dès 2 364 m²
Loyer sur demande
Location activité/entrepôt - 4728 m²
Sucy-en-Brie (94370)
Dernière mise à jour : Il y a 10 mois
A proximité de Créteil et de l'A86, G2B REAL ESTATE vous propose la location de locaux d'activité et de bureaux dans un site sécurisé neuf.
Impôt Foncier : 10,21 €/m²/an
Régime Fiscal : TVA
Dépôt de garantie : 3 mois de loyer HT HC
Honoraires : 15% HT du loyer annuel HT HC à la charge du preneur.
Taxe Bureau : 8,04 €/m²/an
Prestations :
Accessibilité:
Autoroute A86 à proximité
Bus ATELIERS RATP (104)
RER Sucy Bonneuil (A, E)
Les informations sur les risques auxquels ce bien est exposé sont disponibles sur le site Géorisques : www.georisques.gouv.fr
| Étage | Type | Surfaces | Dispo | Loyer | Charges | Type de bailRév. annuelle |
|---|---|---|---|---|---|---|
| 1 | Bureaux | 234 | Immédiate | 180 | Indice ILAT | |
| Rdc | Activités | 2057 | Immédiate | 130 | Indice ILAT | |
| Rdc | Bureaux | 73 | Immédiate | 180 | Indice ILAT | |
| Total Cellule Lot 4.1 | Activités | 2364 | Immédiate | 6/9/12 ansIndice ILAT | ||
| 1 | Bureaux | 234 | 180 m²/an HT HC | Indice ILAT | ||
| Rdc | Activités | 2057 | 130 | Indice ILAT | ||
| Rdc | Bureaux | 73 | 180 m²/an HT HC | Indice ILAT | ||
| Total Cellule Lot 4.2 | Activités | 2364 | Immédiate | 6/9/12 ansIndice ILAT | ||
| Rdc | Parkings | 450 place/an HT HC | Indice ILAT |
Impôt Foncier : 10,21 €/m²/an
Régime Fiscal : TVA
Dépôt de garantie : 3 mois de loyer HT HC
Honoraires : 15% HT du loyer annuel HT HC à la charge du preneur.
Taxe Bureau : 8,04 €/m²/an
Prestations :
- Site clos, contrôle d'accès sur portails
- Voirie lourde
- Espaces verts
- Eclairage extérieur
- Sol moquette
- Faux plafond
- Sanitaires
- Climatisation
- Surface RDC : 4260 m²
- Résistance sol : 3 T/m²
- Nbr de portes à quai : 4
- Equipements entrepôts : Hauteur sous charpente : 8.50 m
3 portes de plain-pied par lot : 4.20 x 3.5 m
2 portes à quai équipées de niveleurs par lots : 3 x 3.3 m - Chauffage : Aérothermes gaz
Accessibilité:
Autoroute A86 à proximité
Bus ATELIERS RATP (104)
RER Sucy Bonneuil (A, E)
Les informations sur les risques auxquels ce bien est exposé sont disponibles sur le site Géorisques : www.georisques.gouv.fr
Emplacement(s) de Parking: 66 places
Voir plus
Afficher les consommations énergétiques
Localisation et transport aux alentours
Favoris
Exporter
Appeler
Contacter
Signaler cette annonce










