Conseil en immobilier d'entreprise, Cushman & Wakefield est un acteur incontournable au rayonnement international. Cushman & Wakefield offre des solutions dans toutes les étapes que comporte un p ...
En savoir plus

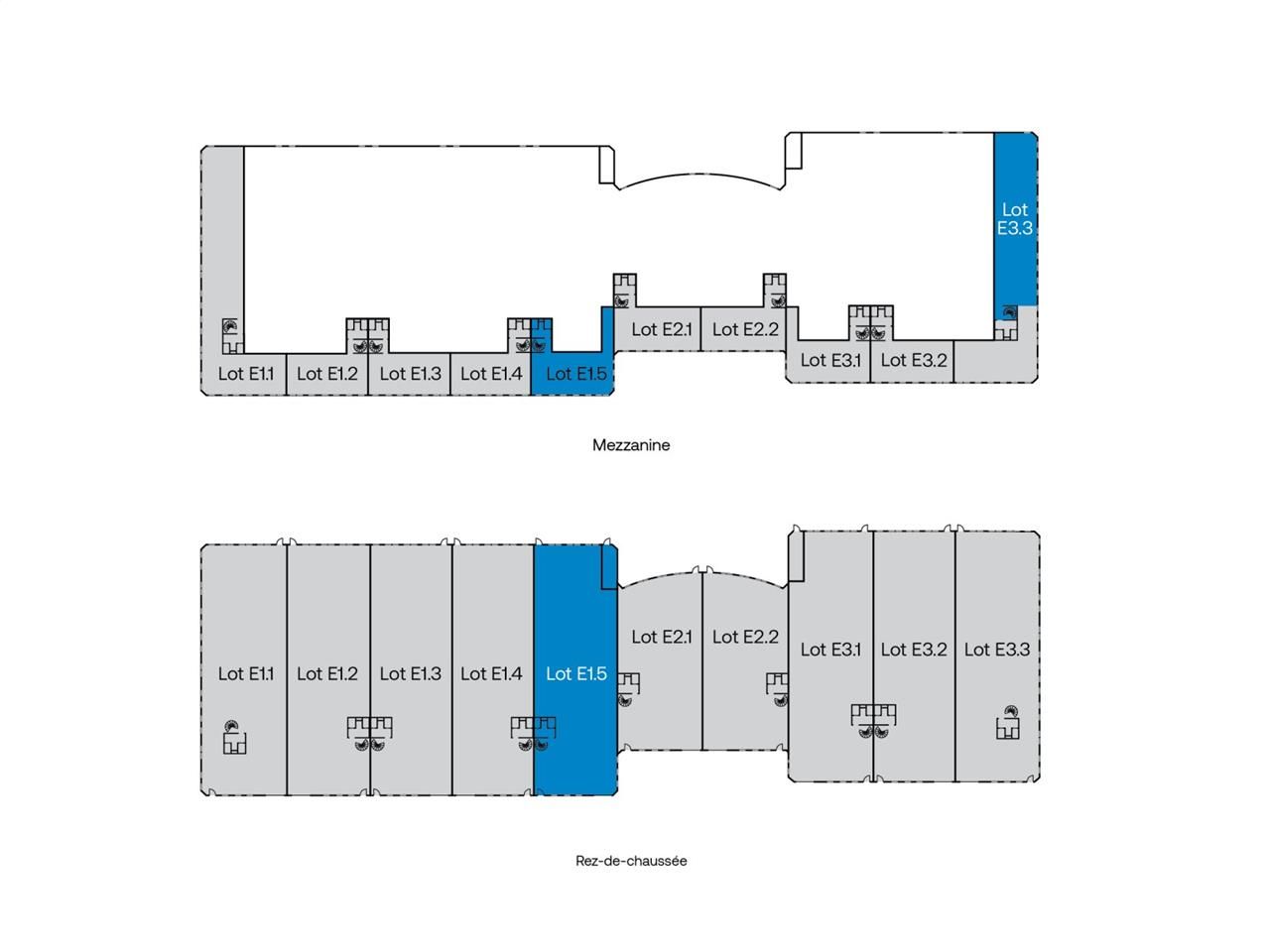
3 082 m² divisible dès 140 m²
HT HC
Location activité/entrepôt - 3082 m²
Fresnes (94260)
Dernière mise à jour : Il y a 11 jours
Parc Médicis
Nous vous proposons à la location un ensemble de locaux d'activité et bureaux situés à Fresnes, d'une surface totale de 2 791 m², divisibles à partir de 140 m². Ces espaces modulables sont parfaitement adaptés à une large gamme d'activités professionnelles telles que le stockage, les ateliers, les bureaux ou encore les showrooms. Le bâtiment dispose d'une hauteur sous plafond permettant l'optimisation de l'espace de travail.
Le site bénéficie d'une accessibilité idéale, avec une situation stratégique à proximité des principaux axes routiers tels que l'A6, l'A86, et à quelques minutes des zones commerciales et industrielles dynamiques. Ces locaux sont également situés à quelques kilomètres de l'aéroport d'Orly, ce qui renforce leur attractivité pour les entreprises à rayonnement régional ou international.
Le parc immobilier est sécurisé, bien entretenu, et vous offre un environnement de travail agréable et fonctionnel. Les locaux sont livrés prêts à l'emploi, avec un aménagement flexible pour répondre à vos besoins spécifiques. De plus, le site bénéficie d'une très bonne desserte en transport, facilitant l'accès pour vos équipes et visiteurs.
Que vous soyez à la recherche d'un espace de stockage, de bureaux modernes ou d'un site mixte, ces locaux peuvent répondre à toutes vos exigences. La division possible en plusieurs lots vous permet de choisir l'espace qui correspond à votre activité.
Pour organiser une visite ou obtenir plus d'informations sur cette offre, contactez-nous dès aujourd'hui ! C'est une opportunité à ne pas manquer pour implanter votre activité dans un environnement dynamique et stratégique.
Régime Fiscal : T.V.A.
Honoraires : 15 % HT du loyer annuel HT/HC à la charge du preneur.
Taxe Bureau : 10,9 €/m²/an
Information sur le Bail :
Autres taxes de 3.3 à 3,4 euros/m²/an
Prestations :
Accessibilité:
Accès routier A6-A86
Bus TVM Lignes N62-396
RER Rungis-La-Fraternelle (RER C)
Aéroport Orly à 4 kms
Les informations sur les risques auxquels ce bien est exposé sont disponibles sur le site Géorisques : www.georisques.gouv.fr
Nous vous proposons à la location un ensemble de locaux d'activité et bureaux situés à Fresnes, d'une surface totale de 2 791 m², divisibles à partir de 140 m². Ces espaces modulables sont parfaitement adaptés à une large gamme d'activités professionnelles telles que le stockage, les ateliers, les bureaux ou encore les showrooms. Le bâtiment dispose d'une hauteur sous plafond permettant l'optimisation de l'espace de travail.
Le site bénéficie d'une accessibilité idéale, avec une situation stratégique à proximité des principaux axes routiers tels que l'A6, l'A86, et à quelques minutes des zones commerciales et industrielles dynamiques. Ces locaux sont également situés à quelques kilomètres de l'aéroport d'Orly, ce qui renforce leur attractivité pour les entreprises à rayonnement régional ou international.
Le parc immobilier est sécurisé, bien entretenu, et vous offre un environnement de travail agréable et fonctionnel. Les locaux sont livrés prêts à l'emploi, avec un aménagement flexible pour répondre à vos besoins spécifiques. De plus, le site bénéficie d'une très bonne desserte en transport, facilitant l'accès pour vos équipes et visiteurs.
Que vous soyez à la recherche d'un espace de stockage, de bureaux modernes ou d'un site mixte, ces locaux peuvent répondre à toutes vos exigences. La division possible en plusieurs lots vous permet de choisir l'espace qui correspond à votre activité.
Pour organiser une visite ou obtenir plus d'informations sur cette offre, contactez-nous dès aujourd'hui ! C'est une opportunité à ne pas manquer pour implanter votre activité dans un environnement dynamique et stratégique.
| Étage | Type | Surfaces | Dispo | Loyer | Charges | Type de bailRév. annuelle |
|---|---|---|---|---|---|---|
| R+1 | Bureaux | 577 | 155 HT/HC/m²/an | 21,5 HT/m²/an | Sur l'indice ILAT | |
| RdC | Activités | 607 | 155 HT/HC/m²/an | 21,5 HT/m²/an | Sur l'indice ILAT | |
| 3 | Activités | 1184 | 155 HT/HC/m²/an | 21,5 HT/m²/an | 3-6-9 ansSur l'indice ILAT | |
| R+1 | Bureaux | 352 | 160 HT/HC/m²/an | 30,9 HT/m²/an | 3-6-9 ansSur l'indice ILAT | |
| RdC | Activités | 550 | 160 HT/HC/m²/an | 30,9 HT/m²/an | 3-6-9 ansSur l'indice ILAT | |
| RdC | Activités | 217 | 160 HT/HC/m²/an | 30,9 HT/m²/an | 3-6-9 ansSur l'indice ILAT | |
| 1 | Bureaux | 140 | 120 HT/HC/m²/an | 32,3 HT/m²/an | 3-6-9 ansSur l'indice ILAT | |
| R+1 | Bureaux | 253 | 160 HT/HC/m²/an | 26,9 HT/m²/an | Sur l'indice ILAT | |
| RdC | Activités | 386 | 160 HT/HC/m²/an | 26,9 HT/m²/an | Sur l'indice ILAT | |
| Total Cellule Lot 8.1 | Activités | 639 | 160 HT/HC/m²/an | 26,9 HT/m²/an | 3-6-9 ansSur l'indice ILAT |
Régime Fiscal : T.V.A.
Honoraires : 15 % HT du loyer annuel HT/HC à la charge du preneur.
Taxe Bureau : 10,9 €/m²/an
Information sur le Bail :
Autres taxes de 3.3 à 3,4 euros/m²/an
Prestations :
- Clos, sécurisé et gardienné 24h/24h, le parc Médicis est un parc d'activité proposant des surfaces à usage mixte d'activité et de bureaux. Les lots d'activités disposent d'une porte sectionnelle, d'un monte-charge, et offre une hauteur sous poutre de 4,10 m.
- Gardiennage
- Lot D73/D74 : 2 portes sectionnelles
- HSP : 5 m
- Ascenseur
- Patio à l'étage
- Bureaux climatisés
- Les lots seront refaits à neufs
- Surface RDC : 1760 m²
Accessibilité:
Accès routier A6-A86
Bus TVM Lignes N62-396
RER Rungis-La-Fraternelle (RER C)
Aéroport Orly à 4 kms
Les informations sur les risques auxquels ce bien est exposé sont disponibles sur le site Géorisques : www.georisques.gouv.fr
Voir plus
Afficher les consommations énergétiques
Localisation et transport aux alentours
Favoris
Exporter
Appeler
Contacter
Signaler cette annonce










