Conseil en immobilier d'entreprise, Cushman & Wakefield est un acteur incontournable au rayonnement international. Cushman & Wakefield offre des solutions dans toutes les étapes que comporte un p ...
En savoir plus



1 090 m² divisible dès 545 m²
HT HC
Location activité/entrepôt - 1090 m²
Créteil (94000)
Dernière mise à jour : Il y a 6 mois
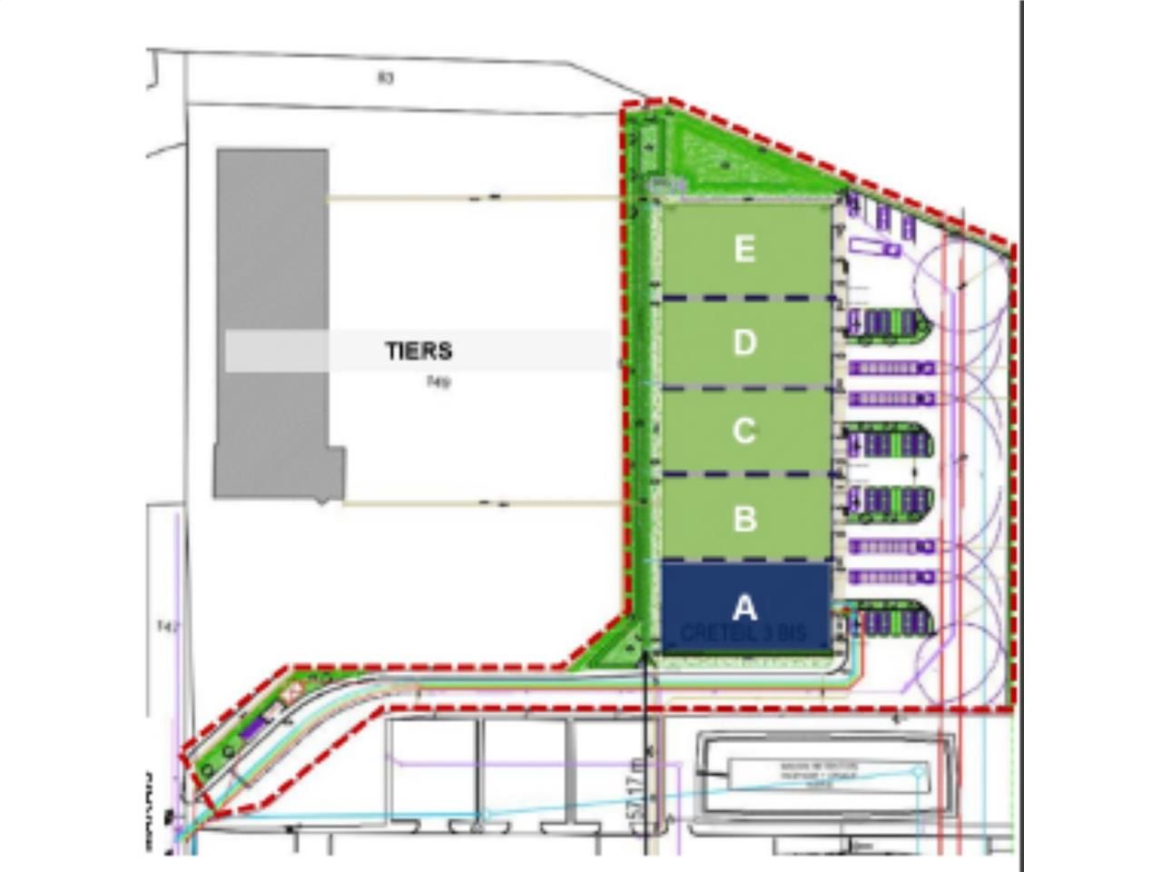
Créteil 3bis
Cushman & Wakefield propose à la location des locaux d'activité idéalement situés à proximité immédiate de l'autoroute A86 et de la N6. Cet ensemble immobilier peut être divisé en 4 cellules de 530 m² chacune, offrant une hauteur libre de 4,7 mètres. De plus, il dispose de 22 places de stationnement pour véhicules légers, dont 4 sont réservées aux personnes à mobilité réduite, ainsi que 3 places dédiées aux poids lourds devant les portes sectionnelles.
Cet actif bénéficie de la certification BREEAM Very Good, qui garantit des normes élevées en termes de performances environnementales et énergétiques. De plus, il est également certifié Biodivercity, soulignant son engagement en faveur de la biodiversité.
Cette offre constitue une excellente opportunité pour les entreprises à la recherche d'espaces d'activité bien situés et répondant à des critères de qualité et de durabilité élevés. Pour plus d'informations ou pour planifier une visite, veuillez contacter Cushman & Wakefield.
Impôt Foncier : 20 €//m²/an
Régime Fiscal : T.V.A.
Paiement Loyer : Trimestriel
Honoraires : 15 % HT du loyer annuel HT/HC à la charge du preneur.
Information sur le Bail :
Taxe bureau : 11,87 euros/m² Taxe aire de stationnement : 1,58 euros/m² Taxe additionnelle sur surfaces de stationnement (TASS) : 1,47 euros/m² Honoraires de gestion technique : 3% Assurance : 5,5 euros/m² Parkings : 770 euros HT HC / U / an
Prestations :
Accessibilité:
Accès routier A86
RER RER D
Les informations sur les risques auxquels ce bien est exposé sont disponibles sur le site Géorisques : www.georisques.gouv.fr
Cushman & Wakefield propose à la location des locaux d'activité idéalement situés à proximité immédiate de l'autoroute A86 et de la N6. Cet ensemble immobilier peut être divisé en 4 cellules de 530 m² chacune, offrant une hauteur libre de 4,7 mètres. De plus, il dispose de 22 places de stationnement pour véhicules légers, dont 4 sont réservées aux personnes à mobilité réduite, ainsi que 3 places dédiées aux poids lourds devant les portes sectionnelles.
Cet actif bénéficie de la certification BREEAM Very Good, qui garantit des normes élevées en termes de performances environnementales et énergétiques. De plus, il est également certifié Biodivercity, soulignant son engagement en faveur de la biodiversité.
Cette offre constitue une excellente opportunité pour les entreprises à la recherche d'espaces d'activité bien situés et répondant à des critères de qualité et de durabilité élevés. Pour plus d'informations ou pour planifier une visite, veuillez contacter Cushman & Wakefield.
| Étage | Type | Surfaces | Dispo | Loyer | Charges | Type de bailRév. annuelle |
|---|---|---|---|---|---|---|
| RdC | Activités | 545 | Immédiate | 165 HT/HC/m²/an | 28 HT/m²/an | 3-6-9 ansSur l'indice ILAT |
| RdC | Activités | 545 | Immédiate | 165 HT/HC/m²/an | 28 HT/m²/an | 3-6-9 ansSur l'indice ILAT |
Impôt Foncier : 20 €//m²/an
Régime Fiscal : T.V.A.
Paiement Loyer : Trimestriel
Honoraires : 15 % HT du loyer annuel HT/HC à la charge du preneur.
Information sur le Bail :
Taxe bureau : 11,87 euros/m² Taxe aire de stationnement : 1,58 euros/m² Taxe additionnelle sur surfaces de stationnement (TASS) : 1,47 euros/m² Honoraires de gestion technique : 3% Assurance : 5,5 euros/m² Parkings : 770 euros HT HC / U / an
Prestations :
- Créteil 3 : entrepôt de classe A
- Créteil 3bis : certification BREEAM Very Good
- Hauteur libre : 6,7 m
- Résistance au sol : 3T/m²
- 10 places VL dont 2 PMR
- 2 places PL devant portes sectionnelles (3,6 m x H 3,3 m )
- Entrepôt - 480 m²
- Charge au sol : 3T/m²
- Sols : Dalle portée finition béton quartz
- Murs : Agglots bruts rejointoyés
- Plateaux métalliques prélaquées blanc lumière
- Plafonds : Bac métalliques prélaqués blanc lumière
- 13 places de stationnement vélos sous abri
- (commun
- Bureau/locaux sociaux- 36 m²
- Bureaux climatisés à l'étage
- HSFP : 2,4 m
- Charge au sol : 250kg/m
- Surface RDC : 1090 m²
Accessibilité:
Accès routier A86
RER RER D
Les informations sur les risques auxquels ce bien est exposé sont disponibles sur le site Géorisques : www.georisques.gouv.fr
Voir plus
Afficher les consommations énergétiques
Localisation et transport aux alentours
Favoris
Exporter
Appeler
Contacter
Signaler cette annonce










