MALSH Realty accompagne les entreprises dans leurs projets immobiliers, qu’il s’agisse de locaux d’activités, de bureaux, de commerces, d’entrepôts ou de terrains. L’agence intervient aussi bien au ...
En savoir plus

2 480 m² divisible dès 160 m²
HT HC
Location activité/entrepôt - 2480 m²
Chassieu (69680)
Dernière mise à jour : Aujourd'hui
Locaux d'activités à CHASSIEU - A LOUER - 2480 m² divisibles à partir de 160 m²
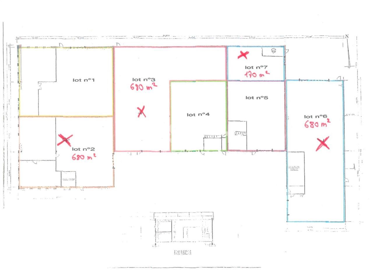
Au sein d'un parc d'activités dans la ZI Mi-Plaine à Chassieu, nous vous proposons à la location, des locaux d'activités d'une surface totale d'environ 2 480 m² divisibles en 4 lots à partir de 160 m². Ces locaux disposent de stationnements extérieurs.
Location Locaux d'activités - Chassieu (69680) - 2 480 m² divisibles à partir de 160 m²
Régime Fiscal : T.V.A. (20%)
Dépôt de garantie : 3 mois de loyer HT/HC
Honoraires : 15 % HT du loyer annuel HT/HC à la charge du preneur, payables à la signature du bail
Prestations :
Accessibilité:
Route Accès par la Rocade Est (A46) et l'A43
Bus Bus TCL lignes 76 et Zi5
Les informations sur les risques auxquels ce bien est exposé sont disponibles sur le site Géorisques : www.georisques.gouv.fr
Au sein d'un parc d'activités dans la ZI Mi-Plaine à Chassieu, nous vous proposons à la location, des locaux d'activités d'une surface totale d'environ 2 480 m² divisibles en 4 lots à partir de 160 m². Ces locaux disposent de stationnements extérieurs.
Location Locaux d'activités - Chassieu (69680) - 2 480 m² divisibles à partir de 160 m²
| Étage | Type | Surfaces | Dispo | Loyer | Charges | Type de bailRév. annuelle |
|---|---|---|---|---|---|---|
| R+1 | Bureaux | 258 | ILAT Indice des Loyers des Activités Tertiaires | |||
| RDC | Activités | 315 | ILAT Indice des Loyers des Activités Tertiaires | |||
| RDC | Bureaux | 233 | ILAT Indice des Loyers des Activités Tertiaires | |||
| Total Cellule 2 | Activités | 806 | Immédiate | 74,44 HT/HC/m²/an | 11952 HT/an | commercial 3-6-9 ansILAT Indice des Loyers des Activités Tertiaires |
| Activités | 661 | ILAT Indice des Loyers des Activités Tertiaires | ||||
| Bureaux | 103 | ILAT Indice des Loyers des Activités Tertiaires | ||||
| Total Cellule 3 | Activités | 764 | Immédiate | 77,39 HT/HC/m²/an | 11350 HT/an | commercial 3-6-9 ansILAT Indice des Loyers des Activités Tertiaires |
| Activités | 610 | ILAT Indice des Loyers des Activités Tertiaires | ||||
| Bureaux | 140 | ILAT Indice des Loyers des Activités Tertiaires | ||||
| Total Cellule 6 | Activités | 750 | Immédiate | 72,01 HT/HC/m²/an | 11082 HT/an | commercial 3-6-9 ansILAT Indice des Loyers des Activités Tertiaires |
| Activités | 160 | ILAT Indice des Loyers des Activités Tertiaires | ||||
| Total Cellule 7 | Activités | 160 | Immédiate | 88,07 HT/HC/m²/an | 2670 HT/an | commercial 3-6-9 ansILAT Indice des Loyers des Activités Tertiaires |
Régime Fiscal : T.V.A. (20%)
Dépôt de garantie : 3 mois de loyer HT/HC
Honoraires : 15 % HT du loyer annuel HT/HC à la charge du preneur, payables à la signature du bail
Prestations :
- Accès de plain-pied / Accès semi
- 1 porte sectionnelle pour chaque lot
- Stockage extérieur
- Stationnements extérieurs
- Bureaux
- Sanitaires
- Vestiaires
Accessibilité:
Route Accès par la Rocade Est (A46) et l'A43
Bus Bus TCL lignes 76 et Zi5
Les informations sur les risques auxquels ce bien est exposé sont disponibles sur le site Géorisques : www.georisques.gouv.fr
Voir plus
Afficher les consommations énergétiques
Localisation et transport aux alentours
Favoris
Exporter
Appeler
Contacter
Signaler cette annonce
